
赶在2020年春节前夕,北至云岩南抵花溪的大道们顺利贯通。
人民大道南段完工,与北段接续全线通车,并连通改造提升过后的花溪大道。至此,贵阳南北向重要干道汇聚城市动脉持续造血。
这两年,主城交通建设水平跃升。算上2018年改造升级的花冠路通车,再加上最早通行的甲秀南路(花二道),复工复产复学稳步推进中,这些骨干型路网共同造就而来的“贵阳大道”,拓展城市框架,延伸产城发展新能级。
贵阳楼市新开场,快速通道不仅拉近时空距离,而且对于区域间的置业互通而言,正可谓是价值连城。

开车行驶过人民大道南段与新花溪大道。从筑城广场到花溪公园,一路车行平峰时期实测20分钟左右,大大缩短城区通勤成本。
此处应有老司机的“贵阳大道”三连:大城市,都市范,时代感。

而这两条大道的三大功能性,城市大道、景观大道、产业大道目标先来了2/3。
大道两旁的平房、矮楼还是容易让人出戏,但是人民大道沿线全面改造呼之欲出,还有新花溪大道土地盘活,另外的那1/3可都是再改造的增量。
新花溪区域楼盘,也是抢鲜一步,自造亮点。花溪大道沿途,居然还有地的陈年老盘腾龙湾,也真是久等多年深藏不露。

从老大道一路熬到新大道,弧形阳台撑起沿线住区脸面。此次背后沿河区域低密组团公示,流露出一颗刚需向改善性的心。

约200米酒店商业,点燃新花溪大道的天际线,满足区域旅居需求。伴随地铁3号线建设,沿途改造价值也才将将启程。
改造升级后通车,无论能为甲秀南路减压几成,都不太妨碍金竹板块龙湖效应持续。进入贵阳两年多,单凭低密大盘托起一片天地,区域开发集结产品系列大成。
延续以往稳扎稳打,同样也是低密度组团上线,与现在经开(原小河)的数字产业园区的“学霸弟”融创大城相比,也还有望持续吸引人气。
瞬移到孟关方向,深耕花冠路的碧桂园几近收官,总能又挤出点货源,但终究为一段传奇渐落句点。而再往东不远处的孟关大道沿途,蓝光雍锦府落子于此。
项目用地系2019年4月成交的G(19)006号地块,成交楼面地价1306元/平米,竞得人为贵阳光溪房地产开发有限公司,于2019年2月由四川蓝光集团与贵州德坤集团共同合资成立。

当时的出让文件显示,G(19)006号地成交面积为6.18万平米,规划指标:1≤容积率≤1.25、建筑密度≤30%、绿地率≥30%,建筑限高100米。

地块位于孟关大道东侧,与贵阳传化智能公路港隔街相望。其和当代MOMA未来城,虽然相隔不远,但是一步之隔,后者也是一脚跨出边界。好在周边产业群体汇集,中小体量的品质项目,将继续充实所需。

此地,也是够得等待成熟的龙溪先导布局区域。这样不问西东的选择下,蓝光也是赶到大学城方向,高调的在贵安排上了号。
2020楼市开场,新花溪的亮点,足够说道。
/ 以下是详细内容 /
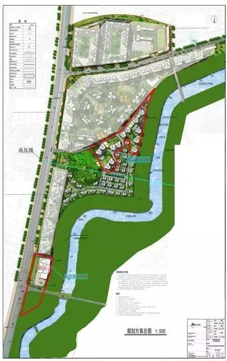
花溪大道旁腾龙湾地标规划出炉!
日前,贵阳市自然资源和规划局发布腾龙湾A3区5#至13#、A3区地下车库及酒店行政许可批前公示,花溪大道旁将新建一栋200米地标。
据悉,腾龙湾A3区及酒店项目总建筑规模为227461.28平方米,计容建筑面积183441.78㎡,其中住宅157313.05㎡,商场26128.74㎡。
项目总停车位1139个,总户数1052户,总建筑栋数10栋,建筑编号为A3-(5~13)栋、A3区地下车库、酒店,其中酒店建筑高度199.95米,层数为55层。 具体规划指标和规划平面图如下。


龙湖景粼天著三、四组团部分规划出炉!
日前,贵阳市自然资源和规划局发布“金竹甲秀南路棚改项目三组团二期、四组团二期B地块”规划方案行政审批批前公示,龙湖景粼天著项目三、四期部分规划曝光。

金竹甲秀南路棚改项目三组团二期、四组团二期B地块项目总用地面积61647.71㎡,总建筑面积105930.98㎡,计入容积率面积72596.66㎡,其中商品住宅67083.94㎡,公建配套4065.74㎡,商业设施1446.98㎡。

项目容积率1.52,建筑密度21.3%,绿地率33.33%,建筑总栋数35栋,总户数692户,总停车位836个,其中室外车位64个,室内平面停车位772个。
公建配套设施方面,包括一所幼儿园,建筑面积2299.09㎡,一个养老所,建筑面积575.68㎡,一个体育活动场地,占地面积2500.66㎡。 具体规划平面图及效果图如下:


规划631户,蓝光•雍锦府项目出炉!
位于花溪区的蓝光·雍锦府已于近日申报建设工程规划设计方案审查及《建设工程规划许可证》,现进行批前公示,申报单位为贵阳灿崇置业有限公司。
文件显示,项目主要为居住用地,兼容商业服务设施用地。 总用地面积约7.64万平米,可计容用地面积约6.18万平米,不可计容用地面积约1.46万平米,绿地面积约1.86万平米,绿地率30.01%。

建筑规模: 总建筑面积约10.06万平米,计入容积率面积约7.72万平米,不计入容积率面积约2.33万平米; 建筑密度19.73%,容积率1.25; 总停车位768个,其中室内693个,室外75个; 最高建筑高度26.7米,最高建筑层数9层,建筑总栋数24栋,总户数631户。
其中,计入容积率分项建筑包含商品住宅约6.77万平米,公建配套3404.65平米,商业设施2520.05平米,保障住房3565.65平米; 不计入容积率分项建筑包含停车场约2.33万平米,人防设施4664.4平米。
公建配套设施总建筑面积3404.65平米,包括幼儿园、文化图书馆、文体活动室、多功能室、快递服务站、物业用房等。 24栋建筑中,1-18#为住宅楼,19-21#为商住楼,22#为幼儿园。