设计风格:新中式 建筑面积:260
设计时间:2016年
设计师:田俊杰
摄影师:张攀 兔子
设计说明:在这个飞速发展的时代,为了不被甩的太远,我们每个人都在紧赶、慢赶的奔跑着...
然而,想在这个繁华的时间找一处心静之地,难!
既然不好找,就来创造吧!
本案在选色上,除女儿房外其他色调均选用柚木色调,以此来匹配业主的沉稳与内敛。
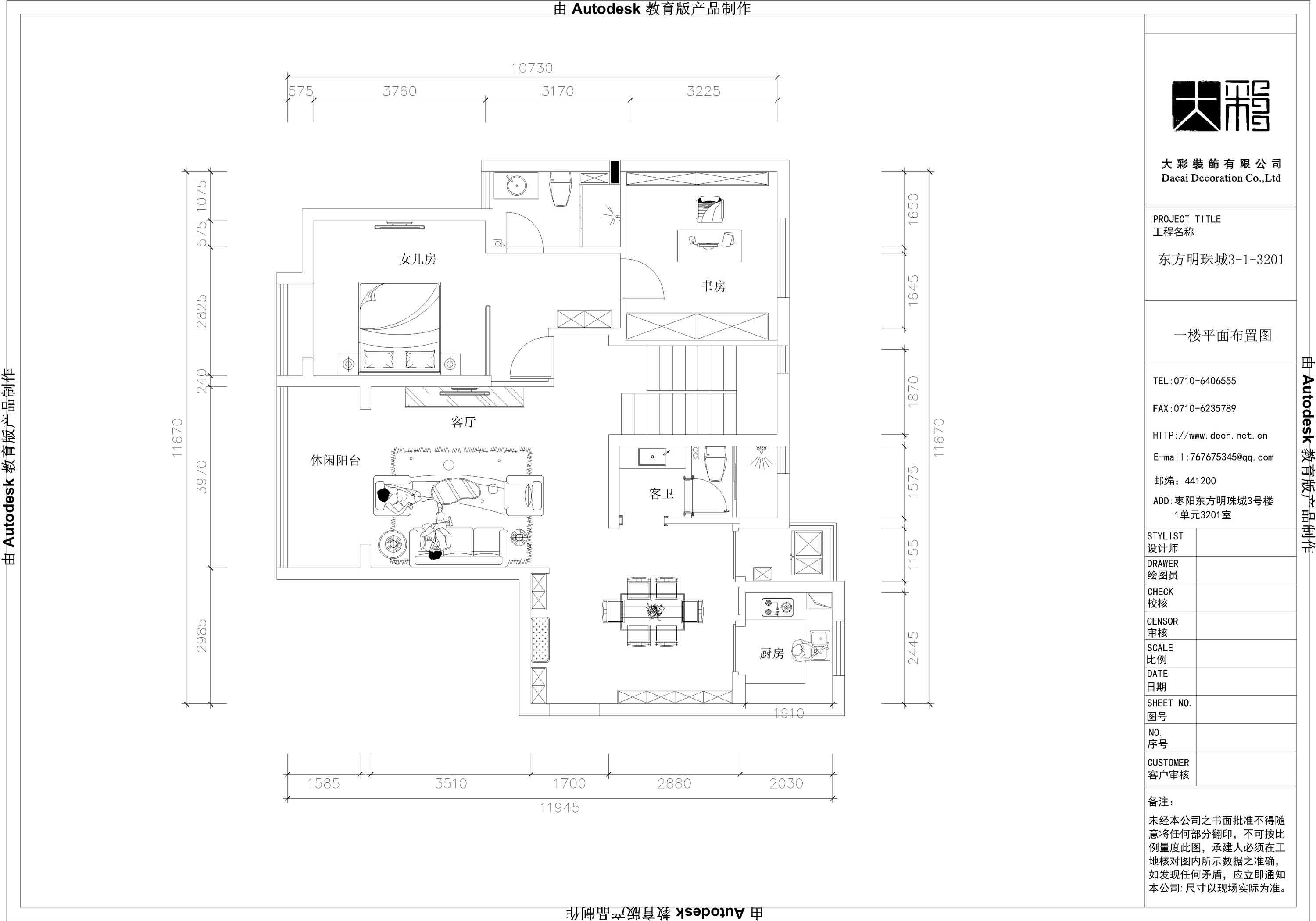
进门处,两处柜子相对称,营造出一种对称感,而柜子中间的挂画运用的恰到好处,为进门处增加了一份朦胧的美感。
中式风格讲究对称感,讲究阴阳平衡。这点在本案多处展现,如:进门处鞋柜的对称,厨房和小阳台推拉门的对称,鞋柜和厨房推拉门亦是对称。
本案在购选物件时,下了一番大功夫,在每个小物件的外表上都能展现出中式的元素而且与整个空间相呼应,如:花瓶上的莲蓬图案,沙发上的祥云图案,过道的挂画上的竹叶图案等等。
沙发背景墙和客厅灯具都由设计师手绘稿定制而成。
业主的每个卧室都由之前的单独卧室改造为套房。
改造前的卧室都是单独而成,改造后全部改为套房,在卧室进门处小做改动,增加了业主生活隐私。


























东方明珠城3-1-3201-Model

东方明珠城33-1-3201-Model
