
郑州金水区庙李中小学建设项目是郑州城市更新改造的重点工程。设计以期利用城村改造的契机,在此片区植入一所新理念、高标准的中小学,借此引入先进的教育资源,从而促进优质教育资源共享,改善片区生活环境。设计于2020年由哈尔滨工业大学建筑设计研究院中原分院完成,预计于2022年9月竣工。
01 项目概况
金水区的庙李村是郑州历史上最有情怀的城中村, 20世纪90年代,这里以高密度的私建住宅和低廉的房租吸引了大量的外来人口,众多租客和密集人流造就了这里曾经的繁华,那些在这里奋斗过的人们,称它“小香港”。然而,交通拥堵、居住条件恶劣也成为了这片异乡人聚集地中难以解决的问题。

△ 2015年前的庙李地区聚集了大量外来人口
为了从根本改变庙李地区混乱落后的现状,2017年政府开启了城村提升改造工程,庙李中小学正是此次城村改造中的重要节点。

△ 项目区位图
郑州市金水区庙李中小学建设项目位于庙李城村改造工程的中心区域,基地由索菱路、博卉路、庙李南路、普庆路四条道路围合。基地东侧用地50.6亩,建设48班中学,基地西侧用地51.45亩,建设60班小学。

△ 项目的用地范围
02 设计构思
在素质教育全面开展的今天,学校不再只是学生学习的场所,我们期望在这片城中村中植入一座生机勃勃的中小学,使其成为学习的学园、活动的花园、成长的乐园,我们期待学校和孩童一样,保留着过往的记忆,又有能力去面对未来,他们共同在这片土地中茁壮成长。
花开少季、绿谷怡园
阳光少年是我们对每个孩子的共同期待,我们期望阳光洒满校园;绿色象征着蓬勃的生命力,我们想象校园中绿意盎然。基地周边是高密度的居住用地,设计通过日照分析,确定了最大化争取阳光的布局形式,使教室和活动场地均能获得充足的阳光。

△ 规划概念生成分析

△ 方案生成分析
为顺应有限的建设用地,设计放弃了传统校园南北向的鱼骨式布局,而是将建筑扭转45°以获取更多的教室用房,扭转围合后的布局形式恰好提供了院落空间,结合立体化的绿化景观,营造了绿意盎然的阳光院落,课间休息时,学生们仿佛在花园中嬉戏追逐。

△ 校园布局的四种形式


△ 设计理念
03 建筑设计

△ 东南方向鸟瞰效果图
立体交通、功能复合
设计立足面向未来,为学生提供尽可能多样化的教学、活动空间。设计将音乐教室、美术教室、书法教室、舞蹈教室、兼具礼堂功能的学术报告厅、各类实验室以及文体活动中心纳入建筑中。并充分利用地下空间,设计了一处下沉式绿谷花园,将泳池、食堂、图书馆、风雨操场等空间环绕绿谷花园布置,营造了功能复合、景观相融的现代化校园。

△ 中学主要交通系统分析

△ 中学效果图

△ 小学主要交通系统分析

△ 小学效果图
底层架空、屋顶绿化
为增加更多的活动空间,设计采用了底层架空和屋顶平台相结合的复合化空间处理手法。打造地下、地面以及空中立体化的活动空间体系,营建多维、便捷、安全的人行交通体系,为师生们创造丰富多样的户外活动空间。

△ 中学建筑一层主要功能分析

△ 小学建筑一层主要功能分析
地下接送、无忧出行
庙李地区拥堵的交通是影响片区生活环境的重要问题,在学生上下学时的接送无疑加剧拥堵现象。设计将中学、小学的主要出入口分别设置于基地的三条道路上,均匀分散设置,并将小学分为高年级部和低年级部两部分。通过让学生分区域上学,可以充分缓解交通压力。
为进一步缓解瞬时交通压力,设计将学生的接送地点从校门口转移至地下。在地下接送系统中,设置家长等候区和学生排队出入区。南向道路上设置接送车辆入口,北向道路设置接送车辆出口,接送车辆可便捷达到或驶出地下接送区。

△ 中小学生上学流线设计


△ 交通分析
04 技术图纸

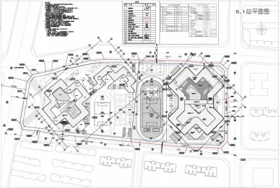
△ 总平面图

△ 中学地下一层平面图

△ 中学一层平面图

△ 中学二层平面图

△ 中学三层平面图

△ 中学四层平面图

△ 中学五层平面图

△ 小学地下一层平面图

△ 小学一层平面图
05 结语
少年儿童是祖国的明天、民族的希望,是国家未来的主人,让每一个少年儿童都能接受到良好的教育,在健康的环境中茁壮成长,是社会共同的责任。设计方案以人性化、创新性的视角重新定义中小学校园环境,期待每一个在此度过童年的孩子花开少季、成长无限。
项目概况
项目名称|郑州市金水区庙李中小学建设项目建设地点|河南省郑州市功能内容|48班初中、60班小学(普通教室、专科教室、报告厅、风雨操场、图书管、地下接送区域、学生宿舍、浴室、游泳馆等)用地面积|中学用地50.6亩,小学用地51.45亩项目规模|中学地上建筑面积32200平方米,地下建筑面积26600平方米;小学地上建筑面积26700平方米,地下建筑面积21700平方米设计时间|2019年6月—2020年2月建成时间|建设中
设计团队
项目总负责人|张井岩、周峰主创建筑师|左刚、富永亮、冯国松、吴迪、邱泊铭、张利楠项目负责人 | 左刚建筑专业|左刚、邱泊铭、张利楠、朱显慧、由玉臣、王细亚、张蕾结构专业|李志刚、刘磊给排水专业 | 李弘、董贺、解航暖通专业 | 尹彦超、蒋明刚电气专业|田成森、于波
编辑| 品牌运营管理办公室
资料来源、版权所有: 哈尔滨工业大学建筑设计研究院