石家庄作为铁路拉来的城市,之所以能从一个村庄变成一个城市,变成一个省会级别的城市,就是因为东西南北都有铁路经过,其铁路枢纽的地位是自然而然的。随着2017年年底石家庄东站的开通运行,石家庄作为一个铁路拉来的城市就更显突出。之所以在这个区域设立东站,是因为该区域的交通已然成熟,而交通的成熟也是为东站商圈的行成奠定了扎实的基础。这也为石家庄东北板块楼市添砖加瓦。而“同祥城”作为这个版块中唯一的一个有着成熟实景加持的楼盘,在近两年的楼市格外突出。小编先简单为大家介绍下同祥城的情况:东至昆仑大街,南至海河道,西至天山大街,北至和平路。由58栋住宅楼和14栋别墅组成。目前一期至三期已交房,社区实景可见。五期新房“同祥四季”获预售证,即将开盘入市,户型区间在84-110㎡。接下来,小编就把采盘的实际情况为大家奉上,满满的一手资料。
一、交通
同祥四季交通线路比较发达:项目西接天山大街,北靠和平路、南临中山路,东临昆仑大街。市内99路、103路、516路、519路、525路、536路等公交车直达,另外地铁1号线“石家庄东站”距离项目约500米直线距离。值得一提的是石家庄的高铁东站距离社区仅5分钟车程,出入市更变便利。

公共交通图
除了地铁和公交,同祥城的周边路网,小编也是有认真考察:北侧为和平路,贯穿石家庄东西,且近两年还有拓宽工程,出行更加便利。向东3公里有太行大街,双向12车道,南至栾城区北至正定新区,也是南北贯穿石家庄的交通主干道。驾车出行便利。 另外紧邻项目的祁连街、昆仑大街及天山大街,均为近期新修通的主干道,交通路网相当发达。
推荐指数:★★★★★
交通小结:项目周边公交线路众多,路网也比较发达,不管是乘坐公交还是自驾出行,都比较便利。地铁1号线及高铁东站均已通车,市内市外出行都相当方便。
二、配套
同祥城地处高铁东站商圈,周边成熟社区众多,如柠檬郡、赵村新村等,生活配套一应俱全。并且项目一期、二期及三期新房均已投用,且入住率较高,沿街商铺较为繁华。值得一提的是:社区自建石家庄外国语学校小学部,目前已投用,教学口碑较好。社区内的森尼生态幼儿园也已投用。学校与家一路之隔,站在阳台上就能目送孩子走进校门,而且可以和名师为邻,书香氛围很浓厚。

会所实景图
项目在海河道北侧及社区内部沿祁连街规划的8.6万平米的商业街及商业办公楼,均已投用,而且“永辉超市”已入驻开业。极大的方便了住户的生活需求。最让人眼前一亮的是小区内部设有1.5万平米多功能会所:包括游泳池、运动健身中心、瑜伽馆、*诺斯**克球馆等集康乐、休闲、运动、健身于一体,足不出社区,即可享受休闲建设之乐,方便时尚,大大提高生活品质。

配套示意图
再来说说周边配套:项目周边有眼科医院、河北慈佑医院、长城医院、省四院东院、省三院东院等大型省市级医疗卫生机构,保障居民的紧急就医。
同祥城目前施工进展顺利,一期至三期已交付,四期新房封顶做外装,五期基本封顶。项目五期样板间即将开放。
推荐指数:★★★★★
配套小结:项目一期二期及三期新房已投用,且永辉超市已进驻,生活配套已完善。项目自建幼儿园及小学配套最是难得,不出小区即可入学,这是很多购房者最为看重的。
三、户型
同祥四季规划户型区间在84-110㎡,2梯5户设计,涵盖两室及三室产品。其中两室户型有84㎡两室、85㎡两室、89㎡两室、91㎡两室;三室户型是110㎡三室。小编给大家推荐两个,可以作为参考。
三室两厅两卫 面积约110㎡

此户型整体来看方正全明、动静分区。客厅朝南连接大面积阳台,保证通风及采光,与餐厅厨房连成一线,增大使用面积,视野更开阔。明厨设计,L型台面更实用便利,与餐厅相连方便备餐与用餐。主卧朝南带飘窗,保证视野及通风的同时增大活动空间。进门卧室后期可当做书房或者客房,达到动静分区,同时保证主人的私密性。
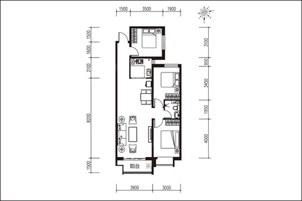
两室两厅一卫 面积约85㎡

该户型为两室两厅一卫设计,建筑面积约85㎡。整体来看户型方正:客厅朝东连接大面积落地窗,保证通风及采光,与餐厅相连,增大活动空间。主卧朝南带飘窗,北侧次卧的朝东大窗户保证采光。明厨设计且朝阳,更实用便利。
推荐指数:★★★★
户型小结:同祥四季户型面积区间段较广,可满足不同人群的生活需求。