芙蓉区原来是整个楼市里较微弱的存在,因为是早期长沙主城扩展的区域,所以近年来供应量是较少的,在整体份额占比较小。芙蓉区最出名的还是芙蓉CBD,这也是长沙唯一挂牌的CBD区域,有专门的楼宇经济管委会,芙蓉广场附近工商银行、农业银行、中国银行、建设银行密集分布,这是原来的金融CBD,因为这里的存在,让河西的滨江金融中心都失去了颜色。
芙蓉区囿于浏阳河西岸,跨江发展是区域发展壮大的必然。沿远大路那里就是汽车东站区域,沿人民路那里是隆平科技园,两条过江通道中间包裹的区域正是芙蓉区未来发展的腹地。
最初芙蓉区一直在努力跨江,在远大路那里也曾有过几个项目,如辉煌国际城、恒大江湾、卓越皇后道等,应该说区域发展不怎么给力,要不然卓越皇后道也不会将项目转让给当代MOMA了。沿人民路的中房瑞致国际,对的,以前是中房的品牌,现在中房已经被中交收购了,改名叫中交中央公园,已经开发了很多年,仍在舞台中央唱主角。
2017年2月10日,龙湖地产在经过134轮竞价之后,以约14.53亿元摘获芙蓉区浏阳河东岸057地块,楼面价8588.2元/平方米,溢价率168.4%。突然就让人们把目光投放至浏阳河东。
彼时,这里叫东岸街道东屯村,周边以建材市场居多,像东岸建材城、大汉建材城等,据我所知有些建材城的土地还只是租赁的集体用地,周遭环境很是一般。
后来的故事我们都知道了,龙湖地产引入碧桂园合作,项目案名龙湖碧桂园天宸原著,产品规划为叠加与高层的高低配,高层产品规划了复式与平层的组合,凭借着产品给力,这个项目用时不到两年就基本清盘。

龙湖碧桂园天宸天著鸟瞰图
龙湖的大胆,引来了各大房企纷纷入驻,金茂、时代两块地限价11800元/平米,佳兆业限价12000元/平米,而南益那块地在2016年就已获得了,只不过一直没有动作,虽然这块地不限价,但是从项目销售价格来看,还是参考了周边的价格的,在10500元/平米左右。这个项目卖毛坯,价格是四个盘里最便宜的。
南益这个公司不熟悉,名士豪庭这个项目是进入长沙的第一个项目,从网上信息得知,几个老板也是福建人,地产这块做的规模并不太大。官网上介绍,依托香港,立足深圳,布局全国,以专业化运作模式,实现连续跨越式发展。开发版图分布在福建、山东、天津、湖北、黑龙江、广东、四川、重庆、吉林、江西、湖南等15个核心省市,开发项目遍及泉州、济南、天津、武汉等多个国内重点城市,已形成全国性战略布局。
多年来,南益地产把“追求卓越品质、打造优质品牌”的经营理念,贯彻于项目的规划设计、开发建设和消费者服务等过程,致力于打造高端低密度住宅、中高端住宅、城市综合体、产业地产、休闲旅游地产等物业,已具备综合型多品类开发的强大实力。其中,所开发的泉州宝珊花园、济南名士豪庭、武汉巴黎豪庭、天津名士华庭等项目,均在当地享有盛誉。
以前我把曾在广西某地工作时有个地产项目叫盛世江南的开发商记错成了南益地产,当时还想,那个不是地方上一个小开发商么,开发商老板就是本地人,在当地做得不错,价格也是当地卖得最高的,口碑也不错,好像也是个福建商会中的人吧。那个项目现在已进入大考,因为需要做一个购物中心,去年已经开业,但是经营状况很不好,这综合商业有可能会把开发商的利润全吃掉的,未来到底怎么样,还真不知道。我在网上查了查,那个开发商叫南兴地产,不是南益。

南益名士豪庭鸟瞰图
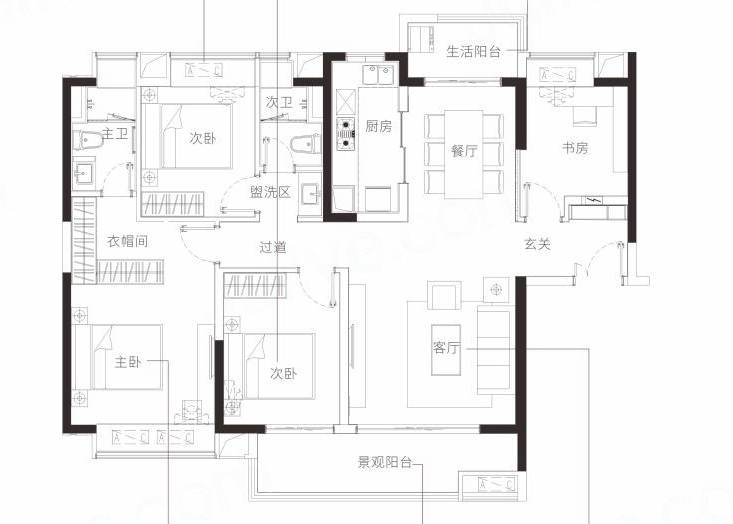
我们把这个项目的141平米的户型拿出来跟其他项目的对比下。

南益名士豪庭141平米户型
这个户型应该称之为3+1户型,应该是新规范出来之前的户型,赠送面积还是比较大的,书房有部分空间做成了阳台,以达到偷面积的目的,在验收通过后,业主后期交房后可以改造成房间。
附上这个房间的尺寸跟我们原来设想的140平米面积段尺寸进行对比。

我们从上面的面积对比看,南益名士豪庭141平米户型由于赠送更多面积,在尺寸上面还是比较舒适的。除了在客餐厅、厨房的面积上面稍有缩小外,其他空间尺寸都是非常优秀的。当然我们所设想的尺寸上次我们也说了可能达到150平米左右了,南益如果把客厅、餐厅、厨房的尺寸做大,应该跟我们的面积差不多了。

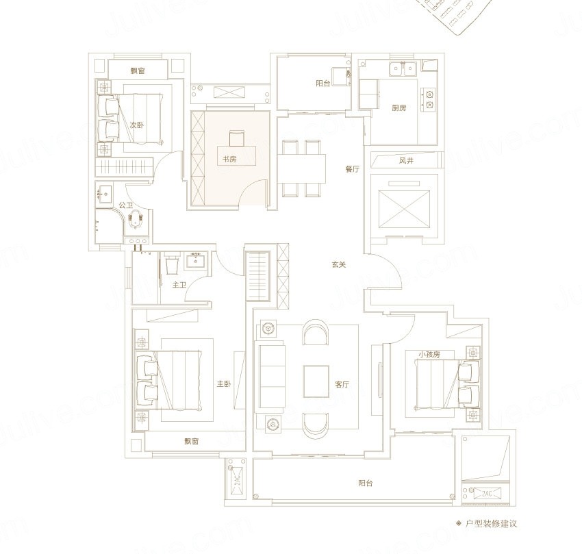
金茂建发观悦142平米户型

时代印记142平米户型

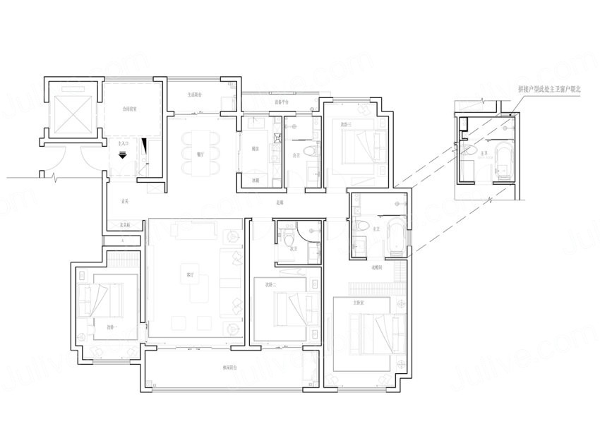
保利东郡144平米

建发电建江山悦140平米户型
其他项目的140平米段中,保利东郡的户型也是比较优秀的,餐客厅横厅设计,可以说是四间朝南,各个空间的面宽进深都比较好,这跟项目是18层的小高层得房率比较高有关系,如果是做到高层里面,这个面积应该在150平米左右了。
说到面积较大的户型,现在即将推盘的正荣滨江紫阙台有个165平米的户型,双套房设计,但是有一个套房的卫生间是暗卫,不能采光通光,而在浏阳河边的上时代印记168平米的户型双套房的卫生间都是全明的,而同一片区的金茂建发观悦的套房也没有做到全明,思路大体一致,但是卫生间还是摆在了卧室的北侧,仍是暗卫。包括洋湖的中海凯旋门的171平米的户型,套房只做了一个。

正荣滨江紫阙台165平米

金茂建发观悦170平米户型

中海阅麓山171平米户型

时代印记168平米户型
最后我们把南益名士豪庭的94平米和129平米户型尺寸放在下面,供买房参考。
