品牌案例 | 3600㎡的著名送礼网办公空间设计,让你不再为七夕情人节送礼发愁
原创: 尚泰君 尚泰装饰 今天

尚泰装饰
— 探讨办公生态 | 还原商业本质 —
过几天又快七夕节了,
不知道你们身边有没有他(她)一起过节日呢?
又或者你在为七夕这天送什么礼物发愁?
像这一类的节日啊,男生如果送错礼物,那就是送命的分数。

几天前深夜
小编刚睡下
突然闺蜜发来一条消息
“我要跟他分手!”
出于小编本能的关(八)爱(卦)询问
才得知原来竟是情人节送礼惹的祸!
(直男送礼,你懂的

据说情人节的分手率是平时的2.5倍
很大原因可能就是送礼造成的
好(zuo)学(si)的小编在上周
做了关于情人节礼物的小调查
感觉像是发现了新大陆





所以要怎样避免惨烈的分手事故发生呢,还得找好送礼的门道!
“礼意久久送礼网”上市以来,为全球华人提供了一站式送礼服务,普遍得到用户的广泛欢迎,解决了用户送礼过程中的各种头痛问题。礼意久久的客户遍布全球30余个国家和地区,是当前服务全球华人最大的送礼网。
■CCTV-2特别报道了中国首家送礼网。
总部设于北京,上海、广州分别设立分公司。全国北京、上海、广州三地各设有“专业礼品包装厂”、 “仓储中心”以及“配送中心”。完善的售后是维护消费者好的权益。
礼意久久还推出两大“30天退换货保障”,真正为每个出去的礼品负责。那么这家深圳市礼意久久网络有限公司成立于2004年9月,由招商局蛇口工业区有限公司(51%)和招商局地产控股股份有限公司(49%)投资组建,注册资金5亿元人民币,主要承担招商局智慧城1.4平方公里范围内的基础设施及园区配套服务设施建设与经营、高新技术与现代服务业项目的引进、投资与经营等业务。公司致力于成为“优秀的园区综合运营商”,经营面积达1.4平方公里。
— 礼意久久网络科技公司&办公空间装饰设计 —
就是这样一家优秀的为广大青年男女老少解决送礼难题的网络科技服务公司,从打造一站式送礼服务到走向互联网前沿,不断扩大和创新。在2018年5月,礼意久久邀请深圳尚泰装饰集团为其打造科技与潮流并存,服务与办公于一体的一站式空间,开启互联网崛起的新时代。

尚泰装饰集团设计团队与礼意久久的客户进行了充分的了解及沟通,总结出客户的基本装饰需求。
■进户大堂

■13f现场照片、电梯厅

■14楼现场照片

■过道、卫生间部分

× 发现问题:
1,为毛坯房,无任何设计
2,吊顶简单无规划
3,采光不足
√ 解决问题:
1,更新材料;
2,根据平面方案重新设计空间
3,改造空间使用
4,新建阳台护栏,水电到位。
1
设计定位
■提高工作效率。提供一个适合员工舒适的办公空间环境,激发员工创意潜能,催生工作动力,让员工能够保持一个良好的工作状态与舒适的休闲生活。
■进行功能空间分类。合理规划空间,将空间的功能最大化,规划空间与空间的连接,保证一个办公流程的连贯性,动线的灵活性,让空间功能更加完善,增强空间的创造性与现代感。
■对于混乱的视觉识别系统进行整改,提升公司整体形象定位,增强品牌辨识度色彩组合
关键词:国际化、科技感、年轻活力
2
色彩组合


3
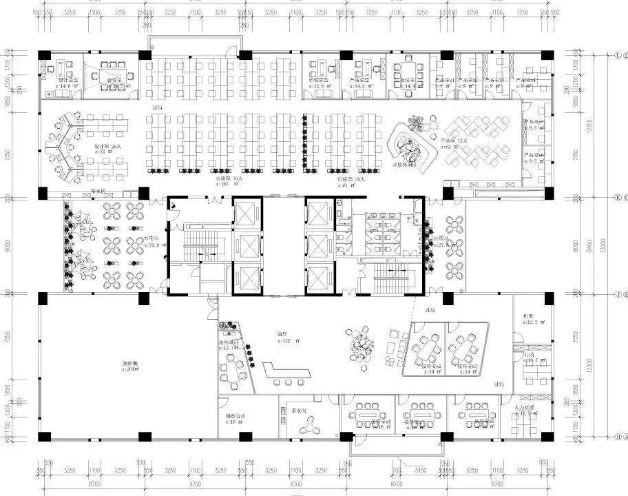
平面规划
■14楼平面规划

■13楼平面规划

4
动线分析
■13楼动线

■14楼动线

5
意向方案
■前厅
前厅的设计突出现代高效简洁的特点,同时反映出办公空间的人文气质。避免繁琐,空间大气,简单,明快,符合现代人的心理需求。


▲效果图


▲参考图
■总监办公室
总监办公室在设计时就非易事,因为其为管理高层,色彩主要采用灰白黑,让整个空间干净利落,在设计上体现出企业文化、企业形象,在设计上凸显出企业的实力。

▲14楼总监办公室效果图


▲参考图
■会议室
会议室,平时是为了公司的召开会议,只要是对问题的解决和讨论,设计师使用了大量的活跃色,来提升员工在开会的激情,焕发设计人员对公司的管理和设计方案的创新思维,地面使用灰色的地毯来稳定空间的作用和减低在开会时候人员的出入的声音,把投影藏在天花上面,在需要使用的时候才放下来,因为靠窗的采光和使用的大量的玻璃装饰使整个空间都相互连接在一起,但是又能相互的分隔这空间,因此装饰较为简单。

▲17楼高级会议室效果图


▲14楼大会议室效果图


▲参考图
■开放式办公区
开放办公区是脑力劳动的场所,企业的创造性大都来源于该场所的个人创造性的发挥。因此,尚泰设计师重视个人环境兼顾集体空间,借以活跃人们的思维,努力提高办公效率,这就成为提高企业生产效率的重要手段。

▲17楼市场部效果图


▲14楼设计部效果图

▲14楼产品部效果图


▲14楼宣发部效果图



▲参考图
■休闲区
忙碌的工作后,这不是仅为员工提供食饮的场所,更是让员工体会到温馨,舒适和轻松的地方。正是体现公司家文化的场所之一。尚泰设计师在设计上相对自由,轻松,随意些,配色大胆,多处点缀暖彩色,增强食欲。采用暖灯光,线条柔和。在靠窗位置设计了几个餐桌,午餐期间可以让部分员工放松视野,缓解视疲劳。

▲14楼休闲区效果图


▲13楼休闲区效果图


▲参考图
■茶水间
茶水间相对就设计上要温馨一些,暖黄色的座椅会让人放松下来,不规则的镂空吊顶更是充满时尚感,地面干净整洁,给人一舒适的体验,丝毫不亚于咖啡厅!


▲13、14楼茶水间效果图
■卫生间
卫生间明亮优雅,蹼泳大理石瓷砖,让人感觉置身于高级酒店的体验感,透视玻璃和充满设计感的收纳柜,更是五星级才有的待遇。


▲13、14楼卫生间效果图
一
本案以现代风格为设计主题,主要适用于80、90后的一些年轻人的办公场所,主要以灰白黑为主,以现代风格为基调,运用了平面分割的设计手法,让空间设计富有灵动性、舒适。
整个空间色调活波,让整个空间更加灵活是设计的关键,开放式茶水间的设计能助于员工间的交流,舒适的家具能放松职员绷紧的神经,轻松、自在的办公氛围正是尚泰设计师们设计的目的。
而对于礼意久久办公空间而言,更承载着企业运营、企业文化、客户合作等重要价值。尚泰设计团队秉持可持续创造价值的设计原则,为礼意久久公司打造了充满国际化,走在时尚前端,温馨与高效并存的办公空间设计。