本方案是位于哈尔滨市道外区南直路370号柏悦星城小区,房子是建筑面积90平两室一厅一卫户型。业主是一对新婚小夫妻,房子是做为婚房居住,喜欢美式风格。两个人平常都上班,结婚以后就打算要孩子,所以想留出一间房给宝宝。希望家里干净整洁,一定要有足够的储物空间。
简约美式设计的装饰性为多种风格的融合提供了一个多样化的环境,使不同的风貌并存,以这种共享关系贴近居住者的意义和习惯。方案中的美式电视柜和美式茶几是亮点,让整个空间的美式元素更加浓厚。淡蓝色小碎花沙发背景墙干净、清新。
设计师:哈尔滨实创装饰李夺
小区名称:柏悦星城
建筑面积:90平
房屋结构:两室一厅一卫
设计风格:美式风格
所属套系:实创装饰“理想装”套餐
工程总造价:70859元
哈尔滨实创装饰柏悦星城主卧装修效果图设计理念:
卧室是每天休息的地方,最好是不要让人有眼花缭乱的感觉,简单的米黄色墙漆和衣柜,搭配美式家具,简单中又不失奢华。
哈尔滨实创装饰柏悦星城次卧装修效果图设计理念:
次卧是留给未来宝宝住的儿童房,还是以美式风格为主,未来孩子的玩具、衣服比较多,所以打了很多柜子,增大了储物空间。


哈尔滨实创装饰柏悦星城餐厅装修效果图设计理念:
餐厅处也打了好多壁柜,增大了储物空间,美式风格的餐桌和客厅茶几、电视柜浑然一体的美式风格。
哈尔滨实创装饰柏悦星城客厅装修效果图设计理念:
吧台起到了划分空间的作用,新婚的小两口在闲暇时候,可以备上几样小食,喝点红酒,浪漫至极。

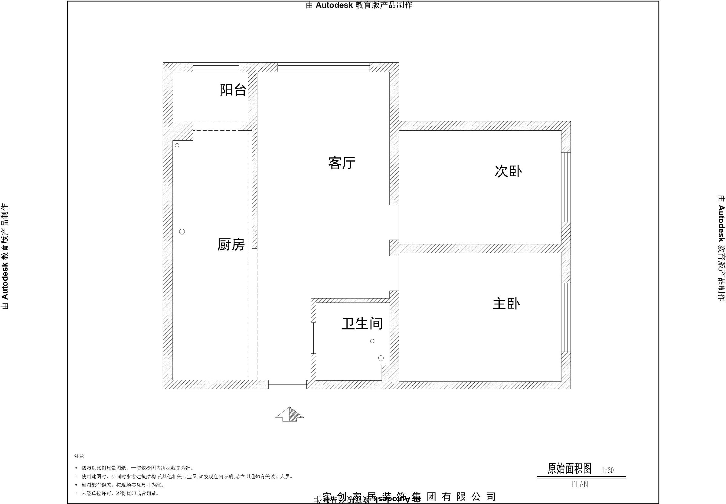
哈尔滨实创装饰柏悦星城装修原始平面图

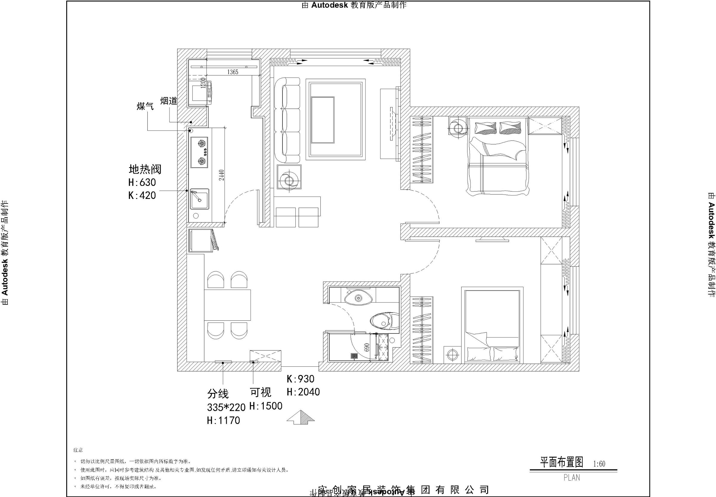
哈尔滨实创装饰柏悦星城装修平面布置图方案
---------速算装修报价、哈尔滨免费量房、出方案微信:hrbsc0451--------