
01
4月1日国家降准释放资金发出了复苏经济的信号,虽没有明确房地产松绑,但已经被各大媒体人解读为楼市放松信号,也有经济学家呼吁松动房地产调控:

具体政策如何,颁发后才知道。但是,大多利好政策都是提前消化的,有点风声出现,敏锐点的小伙伴就开始行动了。
2020年,豪宅最先活跃了起来,蛇口太子湾三次开盘售罄,福田的宝能公馆也是开盘当日挤满买房客,供不应求,从海景房到学位房,都是200平-400平左右的大平层,南北透通居住舒适,总价3000万以上。很多年轻家庭比较喜欢高楼大平层,此类豪宅基本都在市中心,交通便利,资源丰富,且大多楼层高,视野好,景观美。这也是深圳湾一号火的原因。
放眼望去,全深圳综合素质最高、也 最豪 的居住片区,无疑是深圳湾。
02
根据居住舒适度和小区品质,深圳湾南片区的豪宅可分为四个档次:
第一档:三湘海尚、翡翠海岸、鸿威海怡湾和恒裕二期;
第二档:卓越维港、恒裕一期、君汇新天、皇庭港湾、名居绿海湾和阳光海滨花园;
第三档:太古城和汉森吉祥龙;
第四档:曦湾华府和百丽湾。

我们具体看看“三湘海尚”——湾区最早的头牌豪宅。
01、地处交通要塞,是最靠近深圳湾一号和深圳湾口岸的豪宅;
小区位于后海最东面的地块位置,北临东滨路,南接工业八路,东临科苑大道,西接中心路景观带,是深圳湾口岸进入南山及福田区的咽喉之地。
小区东临深圳湾口岸,西望大南山,距西部通道仅百余米;到2号地铁海月站大约走路10分钟到达。

02、周边生活配套齐全
三湘海尚无论是到宝能all city还是旁边的君尚3019购物中心都只有约300多米距离,走路5分钟就到了。
到深圳湾万象城大约1.2公里,到海岸城2公里,购物非常方便。
对家里有孩子的来说,这里真是福地。它隔壁就是南山外国语学校和深圳湾中小学,而三湘的学位就是深圳湾中小学,住这里送孩子上学真的非常方便。


03、三湘海尚各项指标都是豪宅标准
2.0超低容积率,90%极高绿化率,车位比2.3:1,每户平均有2-3个车位,回家随便停;物业公司是四大行的;它还有着整个湾区规模最大的小区花园,虽然太古城整体规模有40多万方,但是南北分割开,按单个花园来看,还是三湘最大最舒服。而且它的外立面比较耐看,看完一圈湾区的房子,除了深圳湾一号和悦府的外立面,最喜欢的还是三湘。






(点击可看大图)
04、三湘的房子质量非常好,它具备各种先进系统:
①华南地区首例恒温、恒湿、恒氧毛细管中央空调系统;
②全球最顶尖的智能化制造商、比尔.盖茨、李嘉诚、布什家居智能化体系——Crestron 定制式智能化系统;
③华南地区首例、全球最新室内清洁模式——中央吸尘系统;
④深圳最大面积干挂进口石材幕墙立面;
⑤耗费3亿元、世界第一品牌——德国原装旭格门窗系统;
⑥超国家标准的“浮筑地面”法隔音技术——人性化加厚隔音楼板系统;
⑦先进的美国RO膜渗透水处理技术 ——直饮水系统;
⑧欧洲健康住宅采用的标准排水方式 ——同层排水系统;
⑨送风均匀、24小时换气、兼具杀菌能力的双向流全热交换新风系统;
⑩能净化空气中99.9%有害物质的纳米光触媒空气净化系统;
⑪圣戈班超厚隔音玻璃:6mm+16A+6mm的厚度,可以有效减弱80%的户外噪声
05、户型好,两梯两户,南北通透,户户有大阳台,基本都能看到海景,无遮挡


除了B、D低层有遮挡,其他楼栋几乎每栋每户都可以看海景,低层也没有遮挡。

(△天气好的时候可以看到大海和香港的青山)
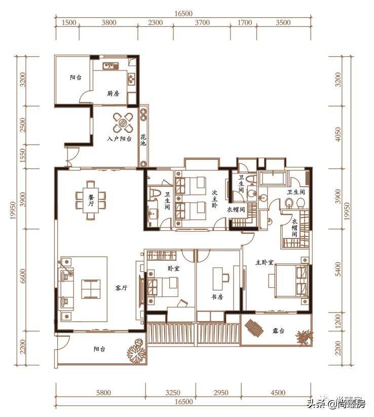
户型1、C02\D01-单证207㎡的大四房

① 偶数层

② 奇数层
此户型南北通透,入户即可见阳光,而鞋柜等也可以放在电梯厅,入户花园可以改为西厨备餐;客厅的阳台超大,2.2m宽,5.3m长;拥有超大主卧套房,主卧带露台(奇数层露台在侧边),也可以把露台改为主卧空间,增加舒适度;次卧也有一个套房,家里有两个孩子的完全够用,双套房都有衣橱;另外每个功能空间均好性强,方正实用,全阳光房。另外奇数层的次主卧多了1个露台。
缺点就是,此户型进深较长有10m,开间5.3m,进深开间比有点大,导致中间采光有点暗,且给人层高比较低的感觉。厨房略小,不过生活阳台也可以改为厨房。
很多偶数层的业主把阳台和次卧阳台打通,做成了15.7米的超长大阳台,把入户花园做成了小孩的钢琴房。
此户型有一套高楼层(偶数层)报价4600万,可看海景。
户型2、全小区最大的单证227㎡4房2厅3卫

① (偶数层)

② (奇数层)
此P户型和上面CD207的户型其实结构是一样的,只是客厅和主卧的空间更大一些。
上次去看了这个户型有一套6楼可看海景的挂盘5000万。
户型3:A02、B01-双证146.8㎡的3房2厅2卫

① (偶数层)

② (奇数层)
此户型同样是三露台设计,南北通透,通风采光好极了。尺度空间大,居住起来非常舒适。主人房套房设计,次卧露台的面积都可以改为房间,增大空间。而且主客卧分离,主人的私密性得到保障。很多业主都是把客厅和次卧阳台打通,变成了超长的7.8米的阳台!
目前有一套4楼的挂盘价1850万。
04、套数最多的双证170㎡4房2厅2卫

① (偶数层)

② (奇数层)
此户型都是带3-4个阳台/露台,有4.8米开间的超大客厅,2.4米超宽的阳台,也是南北通透,三面采光。主人房超大套房设计,书房、衣帽间、主卫、露台功能齐全,真的太舒适了。目前此户型低楼层(奇数层)的挂盘价2200万。
03
三湘也不是完美无暇的,靠海的房子有个通病就是比较潮湿,尤其四月梅雨季节。它隔壁有个深圳湾口岸公交车总站,多少有点污染和噪声;在能见度差点的天气根本看不到大海,东南向除了海景还有深圳湾口岸,人多且杂,影响观感,景观的确不如恒二的漂亮。

(△天气不太好的时候看不清海景)
还有就是三湘本身商业的招商不太理想,底商空置率很高。

另外三湘的得房率不如恒二和翡翠,146平其实可以做到舒适的4房,但三湘只能做小四房或大三房,且房子也有9年了,稍微有点旧,公共空间的装修不如恒二来得高档。最后就是,200㎡以下的户型都是双证的,单证的房源非常稀缺。

据了解,在湾区,200平米以上单证的成交周期基本不超过三个月,而且业主比较惜售,房源少,价格合适的基本放一套卖一套。而200平以下的双证房源比较多,且挂盘时间长,但价格亲民。去年年初君汇新天有套双证158平的挂盘1950万,单价12.3万/㎡,挂了差不多一年,上个月底才以1870万成交,直接降价80万,单价才11.8元/㎡。
总之,对于改善自住的朋友来说,2000万左右想在湾区买个舒适三-四房,找家人或亲戚一起拼个名额买套双证,能省下1-2千万,也是可行的。当然买房这件事,总是要考虑以后,尤其对于名下多套房产的朋友来说,房票异常珍贵,毕竟双证交易周期偏长,换房成本偏高,建议首选单证的大户型。
原创文章,禁止转载。
如有疑问,请添加作者:Deyoussf。