在哪儿资讯网
首页
生活美学
桃之夭夭紫兮
深圳大昌行坪珑LEXUS
柳絮
小沐学学学
吃瓜不吐皮er
首页
›
浙墅匠鼎装饰集团
›
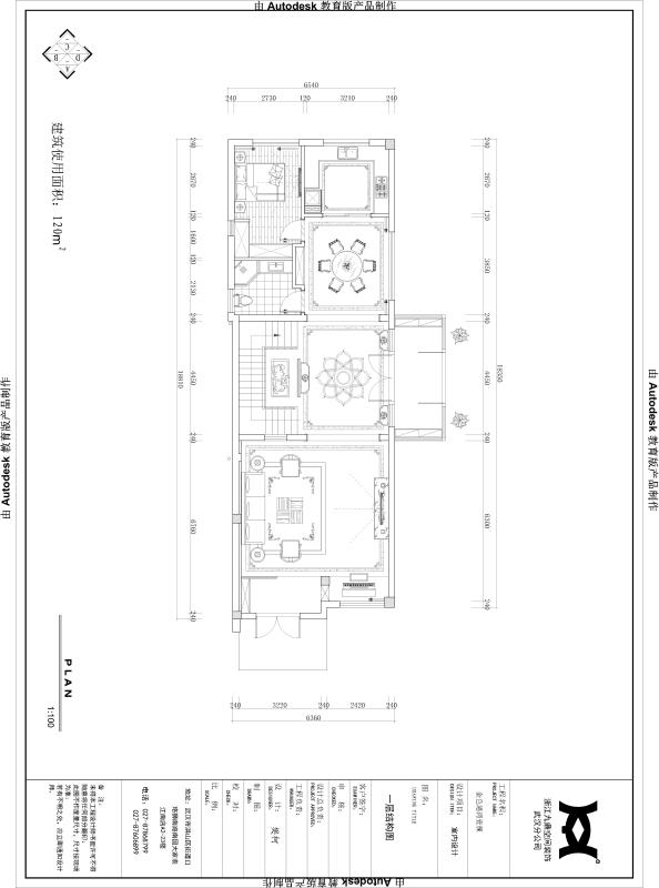
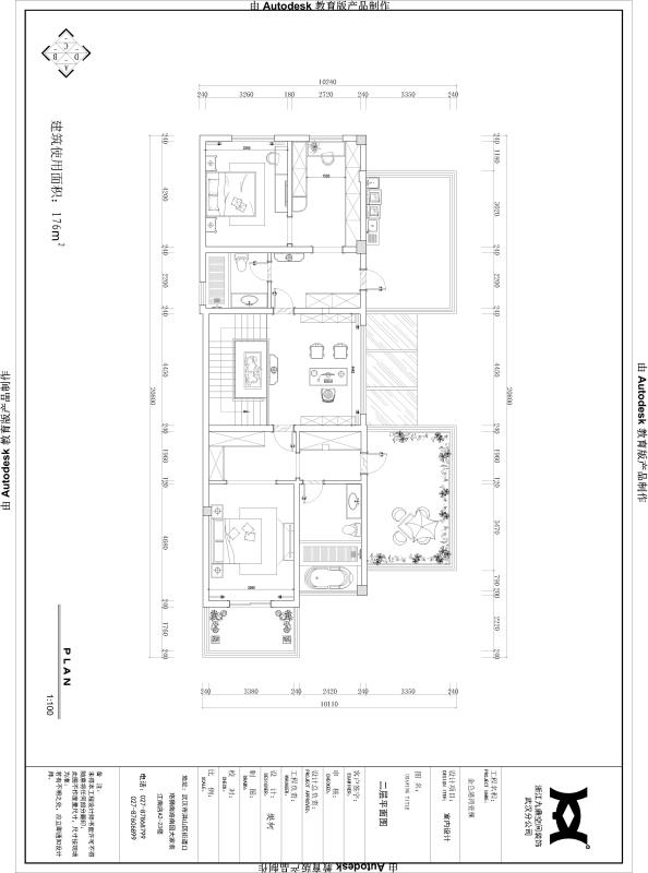
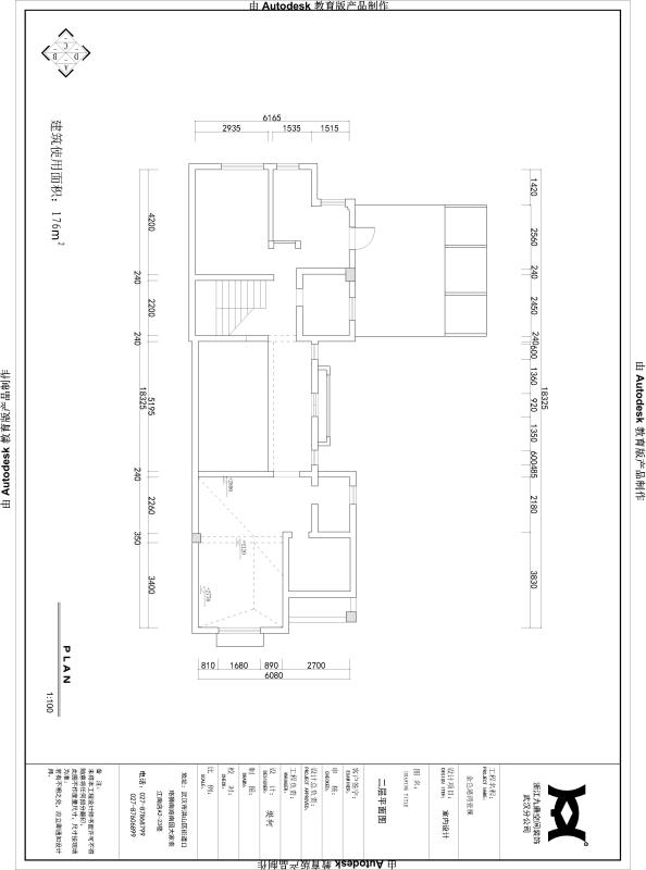
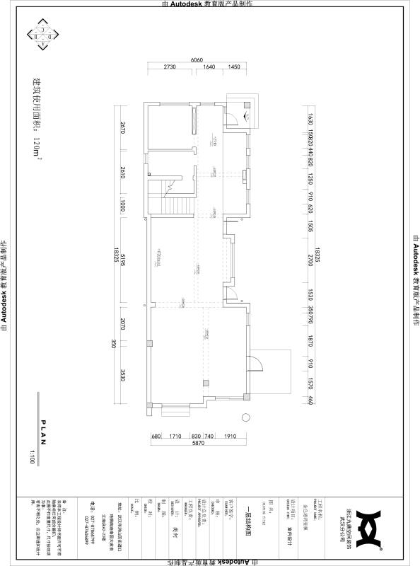
武汉市金色港湾别墅 (武汉金色港湾一期湖景房)
武汉市金色港湾别墅 (武汉金色港湾一期湖景房)
🏷️
浙墅匠鼎装饰集团
✍️ 原九鼎装饰变更浙墅匠鼎装饰集团公司,浙墅匠鼎装饰来自浙江(东阳)木雕之乡!坚持正宗江浙工艺做工,坚持口碑相传工程!坚持12年零投诉工程。
📅 2026-04-02T12:06:42+00:00
浙江九鼎空间装饰武汉分分公司,九鼎坚持做口碑相传工程,坚持做零投诉工程,九鼎坚持做江浙工艺做工,把装修交给九鼎你安心的去工作!