客餐厅如果全封死的话,还是太憋的慌了,索性来个半通透,时尚感和实用性更胜一筹哦!
开春装修的南昌业主们看过来,开春大戏狂促活动正在进行中,如果您还在为装修而烦恼,速来咨询哦~(在南昌,100平装修到底要花多少钱?装修一套房子到底需要经历哪些流程?怎样装修才能省心省力省钱?设计师在线为您专业解答。微信:diguadou888)
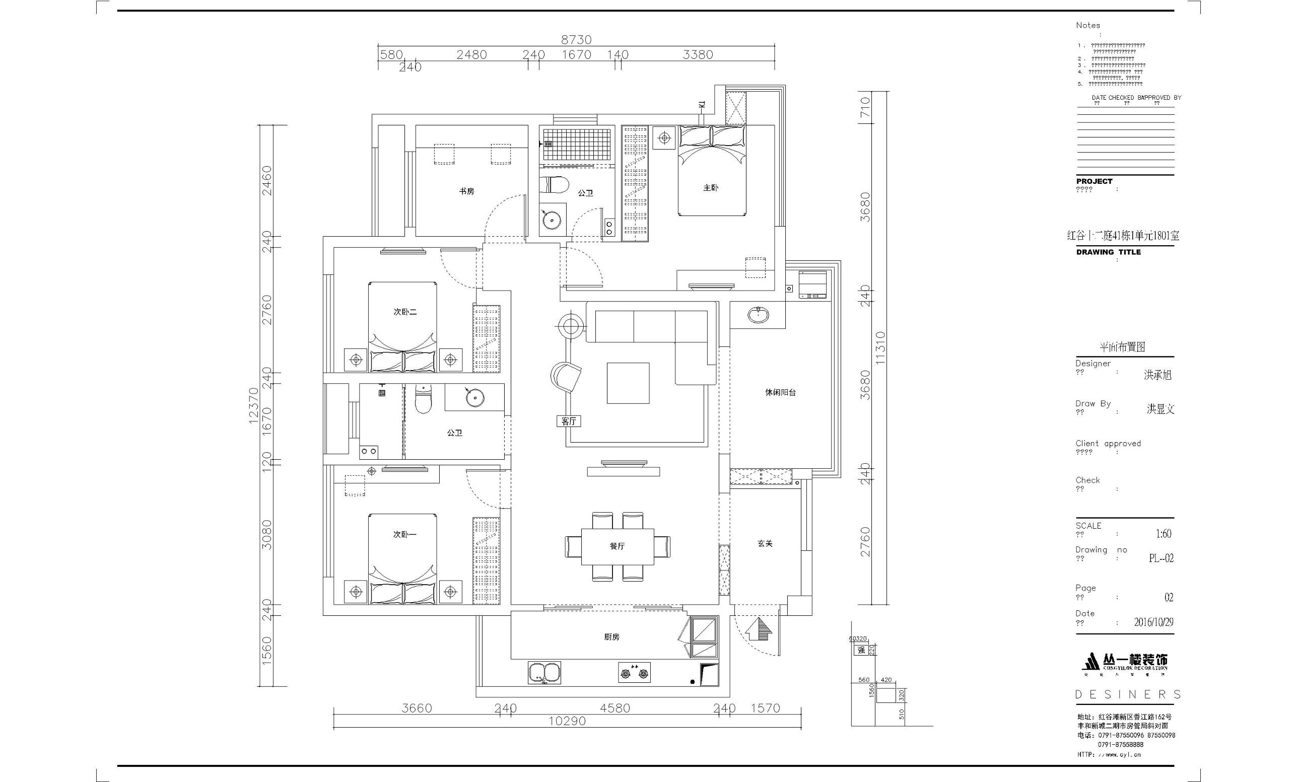
·楼盘:红谷十二庭41-1-1801室 南昌(看 工地可预约哦~更多户型等您来参观)
·户型: 4房2厅
·面积:120平方
·造价:9万 (不含主材)
·面饰:墙纸、硬包、地砖
·主材:地砖、实木橱柜、整装、洁具、实木地板、灯具、五金等

客厅 餐厅

卧室

原始结构图

平面布置图
所展示工地为正在施工的工地,需要看实景工地的亲,欢迎咨询,红谷十二庭更多户型、不同风格工地正在火热开工中!
南昌各大楼盘近期交房(红谷世纪花园、联发江岸汇景、莱蒙都会、海域香廷、保利金香槟、新力雅园、中骏蓝湾、中央香榭、众森红谷一品、路通沁园、绿地国际博览城、万达旅游城....)的业主,赶紧GET起来吧!
-------我是华丽丽的分隔线--------
设计师微信:diguadou888 (仅限南昌)