
8月21日,贵阳市城乡规划局发布了“贵阳花果园后街彭家湾危旧房、棚户区改造项目W1、W2、X、V 区”规划方案调整公示,公示时间为7个工作日,从2018 年 8 月 21 日到2018 年 8 月 29 日。
据悉,花果园半山小镇(W1、W2、X、V 区)规划为商住高层建筑,2012年 7 月 16 日取得《建设工程规划许可证》,现建设单位申请对半山小镇整体的公建配套、商业规划方案进行优化提升,原规划审批公建配套总建筑面积为 35129.49 ㎡,现调整后公建配套总建筑面积为:39732.35 ㎡,增加 4602.86 ㎡。

具体来看

↓↓
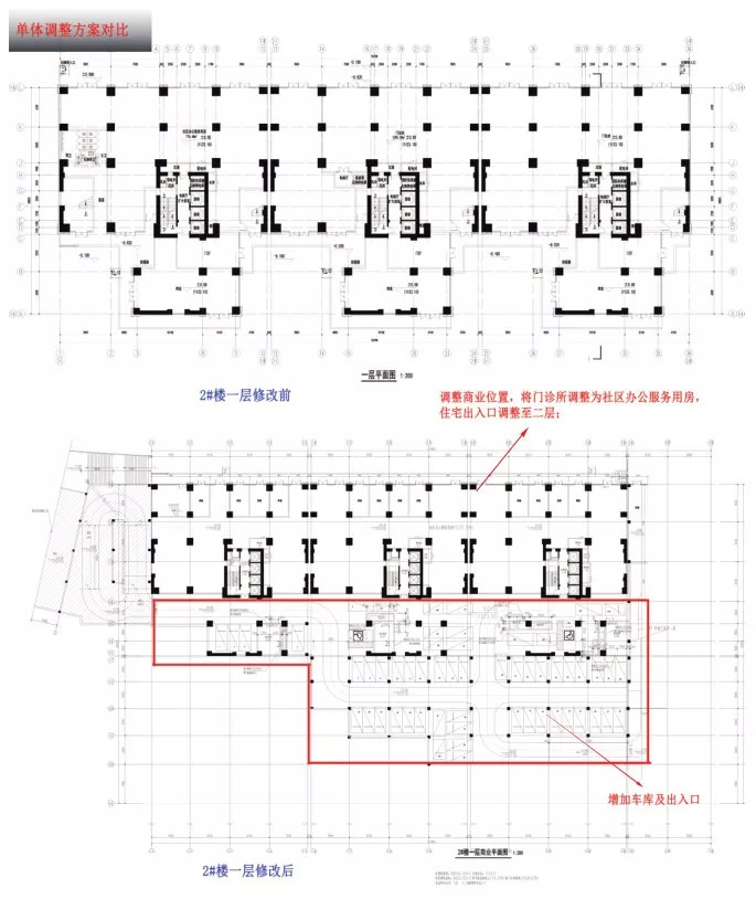
W1区项目
一、用地位置
贵阳宏益房地产开发有限责任公司在贵阳花果园 W1区项目位于贵阳市云岩区,松花南路(30 米)两侧。
二、本次主要调整内容
1、总图调整,建筑位置进行调整。12#楼旁道路及消防回车场调整。

2、11#楼一层增加消防控制室;二层调整公建类型,11#楼 12#楼负一层增加商业。

3、12#楼大商业分隔为小商铺,取消商业电梯,增加消防控制室及公厕;二层原商业调整为文化活动中心。

4、15#楼一层商业调整为社区办公服务用房和物业管理用房,并对该商业用房进行分隔。

6、W1 区 2 号地下室负三层增加公厕,调整消防控制室位置,原大商业分隔为小商铺。

W2区项目
一、用地位置
贵阳宏益房地产开发有限公司在贵阳花果园 W2 区项目位于贵阳市云岩区,松花南路(30 米)与延安南路(40 米)交汇处,东面为 40 米宽的延安南路,南为 30 米的松花南路。
二、本次主要调整内容
1、W2 区 1 栋调整疏散楼梯位置,并将大商业划为小商铺。

2、W2 区 2 栋调整疏散楼梯位置,商铺分隔调整为小商铺。

3、W2 区 3 栋一层、二层、三层部分商业调整为公建配套,三层商业划为小商铺。

4、W2 区 4 栋商业方案调整为小商铺。

5、W2 区 5 栋商业分隔方案调整为小商铺。

6、W2 区 7 栋一层商业调整为小商铺,调整疏散楼梯位置。

7、W2 区 8 栋二层原商业调整为公建配套,划分商铺。

8、W2 区 9 栋大商业划为小商铺。

9、W2 区 10 栋大商业划为小商铺。

10、总图 10 栋消防环道位置调整,在 10 栋西侧增加架空消防环道。
X区项目
一、用地位置
贵阳宏益房地产开发有限公司在贵阳花果园 X 区项目位于贵阳市云岩区,松花南路(30 米)与延安南路(40 米)交汇处,西面为 40 米宽的延安南路,南为 30 米的松花南路。

二、本次主要调整内容
1、1#楼、2#楼之间增加连接商业,一层和二层大商业分隔成为小商铺,二层公厕调整至一层。

2、3#楼大商业分隔为小商铺,一层增加公厕。

3、4#楼大商业分隔为小商铺,公建配套调整。

4、5#楼大商业分隔为小商铺,公建配套调整。

5、6#楼大商业分隔为小商铺,一层、二层公建配套类别变更。

6、7#楼大商业分隔为小商铺,一层、二层公建配套类别变更。

7、8#楼大商业分隔为小商铺,公建配套调整。

V 区项目
一、用地位置
贵阳宏益房地产开发有限责任公司在贵阳花果园 V区项目位于贵阳市云岩区,延安南路(40 米)与松花南路(30 米)交汇处,北面为松花南路(30 米),南为中山南路(40 米),延安南路从项目中间穿过。

二、本次主要调整内容
1、1#楼疏散楼梯位置调整,一层公建配套调整,商业分隔方式调整;二层公建配套调整。

2、2#楼一层调整商业分隔方式,公建配套调整。

3、7#楼一层、二层建筑外边界调整,增加商业面积,一层商业分隔方式调整,公建配套类型调整;二层调整公建配套。

4、8#楼一层商业分隔方式调整,入户大堂和公厕调整。

5、9#楼一层入户大堂调整,商业分隔方式调整。

6、10#楼一层商业分隔方式调整,公厕调整。

7、11#楼一层入户门厅和通道、商业楼梯调整,商业分隔方式调整。

8、12 楼入户大堂调整,一层新增消防控制室、商业分隔方式调整、公厕调整;公共配套调整。

9、13#楼首层楼梯通道调整,商业分隔方式调整。

10、14#楼首层楼梯通道调整。

11、15#楼一层商业分隔方式调整。

12、16#楼一层商业分隔方式调整。

13、17 楼一层商业分隔方式调整和公厕调整。

14、18#楼一层商业分隔方式调整。

15、1#地下室负一层边界扩大。
16、7 号地下室(15/16#楼地下)负一层地下室边界调整,增加地下室面积。
17、8#地下室负一层边界扩大。
18、将 1、2#楼之间公交首末站调整至 2 号楼南侧。
19、调整车库出入口位置,调整部分楼栋间距。
20、调整局部道路;新增消防环道。