案例地址:伟业公馆
装修风格:简约风格
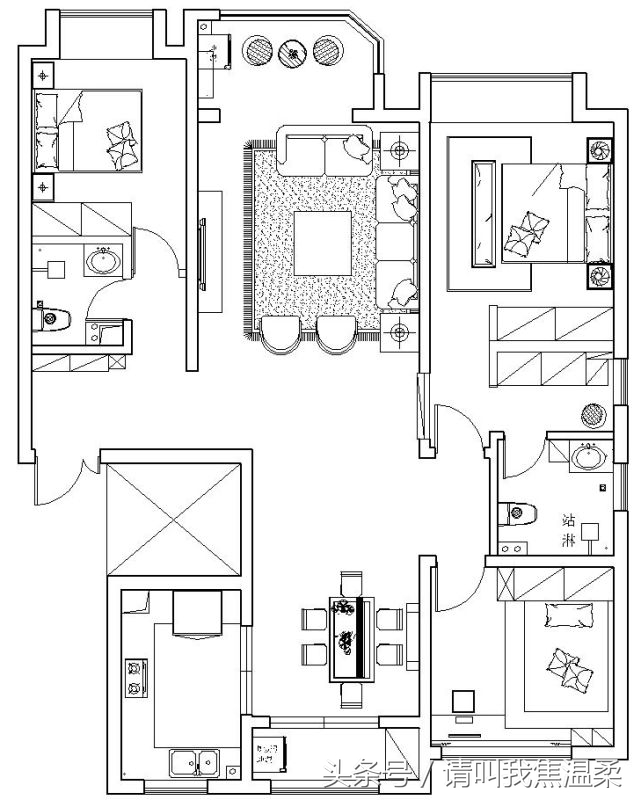
户型分析:139㎡三室一卫
工程造价:19万(含家具,全屋窗帘、灯具)
本案设计:jiaoxin_526(长按复制)
设计说明:本案业主一定要求他们家的效果图跟别人家的不一样,线条一定要利落简洁。极简家具通常线条简单,除了橱柜为简单的直线直角外,沙发、床架、桌子亦为直线,不带太多曲线,造型简单,富含设计或哲学意味,但不夸张。
客厅↓

餐厅↓

主卧↓

次卧↓

保姆房↓

厨房↓

卫生间↓

平面布局图↓

手绘:

客厅(一)

客厅(二)

餐厅

主卧

次卧
3D:

-----------------------分割线------------------------
预约本案主设计请加:935288912(微信搜索)
更多案例实景效果图请搜索公众号:请叫我焦温柔