27岁的王丹在大学毕业之后在一家外贸公司上班;作为一个单身女白领,就在今年年初,偶然间看到朋友圈的关于一则单身公寓的广告,于是,她有点心动了!她给我们讲述到“有一个属于自己的小屋,我可以随心所欲的布置它,一个人的空间,爱怎么捣鼓就怎么捣鼓”,于是在第三天,她便高高兴兴的订下了属于她自己的50平米的小屋!
王丹平时喜爱运动和健身,每天都会有3公里的跑步练习,周末都会和朋友骑自行车出去玩,追求生活中一种静谧的世界。王丹说“我之所以在婚前买房,我就是想要在结婚之前把自己独立出来,但是市中心的房价真心让人无法承受,但是刚好单身公寓的出现弥补了这个空档,比如我买的这套房,单价6000元左右,但是因为面积小,所以总价30万元,家里资助我15万,剩下的每个月月供,压力也比较小,一个人住正好合适”。

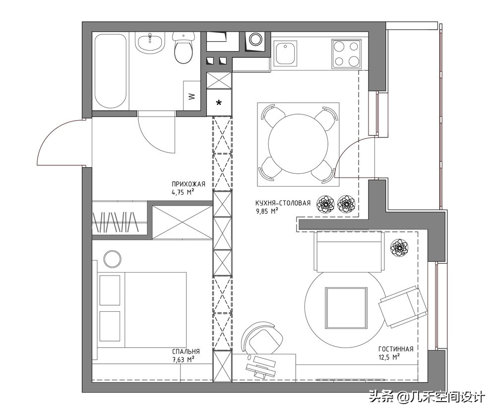
大家可以看下这个户型,十分的方正,房屋后面还有一个后花园,非常的舒适。而房屋的整体的结构也非常的通透,通过平面图可以看出整个房间只有三扇门,一道卫生间,剩下两扇分别是花园门和入户门,整个空间通透万分!

1.卧室
卧室在设计上利用墙板的整体性作为基础,背景墙采用镜面与墙板的结合,镜子可以放大空间


2.餐厅
餐桌下面放的是几何图案的地毯,全屋的照明以筒灯为主,大型吊灯没有。整个空间的柜子比较多,整体非常协调。当然这样做造价也不便宜!吊灯是欧普的,价值3000元



厨房做了开放式,公寓很多是不能通天然气的,当然这里也不例外
3.客厅
客厅利用电视柜巧妙的设计了一个书橱,虽然王丹不喜欢看书,但是喜欢收藏书本啊,旁边还配有一个电脑桌,整体生活非常协调。
50平的房子总体造价12.6万,大家觉得如何呢?如果是你你可以接受吗?


个人感觉电视机的位置有点偏高了,人如果坐在沙发上看电视肯定会产生头抬得很高,客厅四周都做了反光灯带,看上去非常舒适!

全屋采用德国进口卡斯摩多层实木地板,灯具在欧普定的,家具在芝华士和晚安两家定的,墙面乳胶漆是德国进口芬琳漆。挂画和窗帘是网上定制的。

全屋整体造价12.6万,大家觉得怎么样呢?全屋为实景照片,上个月20号完工,这几天刚把家具和软装搭配好。个人感觉还是挺不错的,当然,业主也比较满意!如果是你,你愿意花12.6万去装修一套50平米的房屋吗?