装修风格:中式风格
实际面积:163㎡
空间格局:4房2厅
设计师:风云帆
项目位置:广东广州
装修造价:19.5W
▼原始结构图

原始结构图
原始建筑结构餐厅采光不足,这是一套大平层,不过很可惜这么大的房子入户无独立玄关空间;房子是一个长方形的结构,像是一字排开一般;房子总共有三个卫生间,三个阳台,有一个阳台分配的很不好,居然在卧室里面,厨房旁边有个阳台,不过厨房空间比较小,导致这个阳台利用不上,后期只能考虑纳入到厨房里面了。
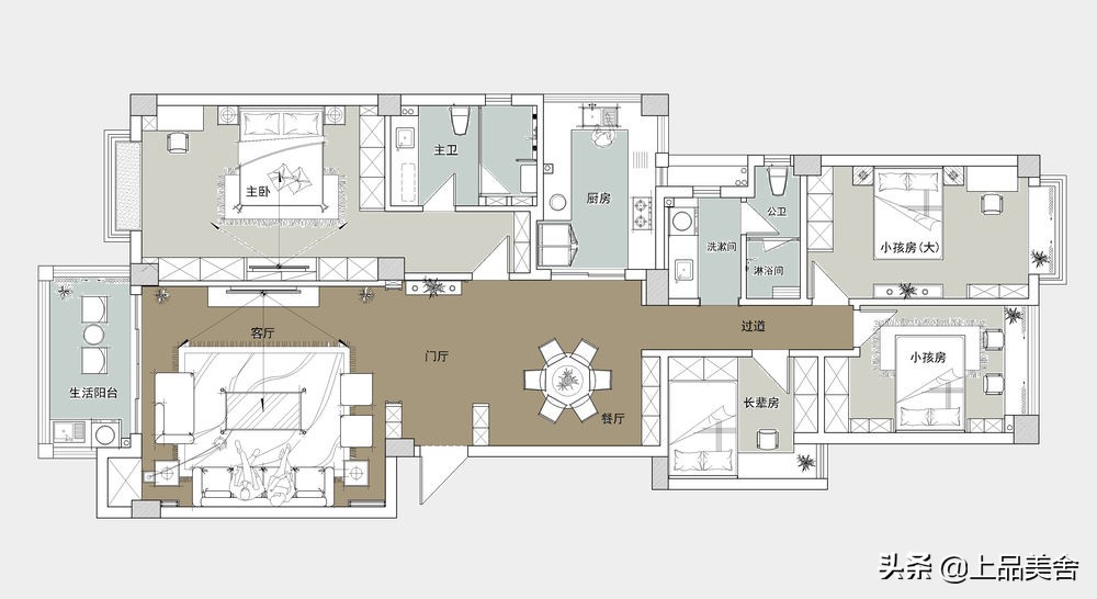
▼平面布置图

平面布置图
平面设计考虑设置独立玄关,采用隔断形式最大限度保证采光;把客厅旁边的阳台做成了生活阳台,之间设计了推拉门;餐厅摆放了圆桌,做了一排嵌入式的酒柜,由于厨房面积小,所以把旁边的阳台纳入进来了,扩大厨房空间;原来的两个卫生间都很小,所以索性地将它扩展成一个大的卫生间来;主卧室的结构没有动墙体,按照原有结构,尽可能地把储物做到了最大;另外三个卧室做了两个小孩房和一个父母房。
▼门厅

玄关

玄关
门厅正对的端景加上左右装饰品,地面与天花吊顶相互呼应,入户仪式感满满;酒红色的色调,为整体增添了中式气息;鞋柜的设计为了增加玄关空间的采光,采用了隔断的形式;室内的鞋柜并没有做多少,可以说是完全不能够满足一家人的鞋子收纳问题的,不过室外有个公摊区域,是可以放鞋柜的,所以室内有这么多也足够了。
▼客厅

客厅

客厅

客厅
这是一个三代同堂居住的家庭,如何重新赋予“传统家具”新的美学价值,让不同年代的人都能欣赏和珍惜,是这套设计的重点,因为做出来的感觉要符合一家三代对中式不同的审美观,如何更好的结合现代美学和传统美学,也是我们主要的设计方向;在家具上面选择了比较传统厚重的中式家具,结合比较有现代感的山水壁画,再贴合大理石,把他们很好地结合在一起呈现出一种新的中式风味出来。
▼阳台

阳台
阳台以实用为主,满足功能需求;阳台空间不算大也不算小,尽量的做到以简洁为主,整个阳台没有做很多复杂的东西,只是摆放了成品的洗衣伴侣,放置洗衣机,然后顶面做电动晾衣架,让晾晒更加的方便。
▼餐厅

餐厅

餐厅
餐厅功能多元化,相互独立也相互补充,还有装饰酒柜的衬托,挂画背景更是锦上添花;酒柜的设计也采用了玻璃加原木的方式,在享受大气的同时也能感受到时尚;餐厅空间不算是很大,圆桌只能靠厨房对面墙体摆放,如果是摆放在正中间的话,过道的空间就非常窄了,前面说过室内的采光不是很好,尤其餐厅的采光,所以这里灯源不仅有吊扇灯,还有灯带和壁灯。
▼厨房

厨房

厨房
厨房和餐厅相互配合,达到功能利用效率最大化;厨房的装修设计最主要的就是功能使用,向阳台处扩展后的厨房,变得大了很多,“U”字形状的橱柜,让其变得更加的好用,同时容纳四个人同时操作都没有问题。
▼主卧

主卧室

主卧室

主卧室
主卧还是比较长的,做完550mm厚的衣柜后,还摆放了1.8m的床加两张床头柜,而且在挨着窗户和床头柜的中间还能摆放一张梳妆桌,并且还做了一点点小的书柜,全屋的色调搭配延续了客餐厅,有种中西结合的浪漫氛围,为了节约造型,所以没有选择做中央空调,选择了挂机,利用柜子将其藏起来,这样显得整体一些。
▼主卫

主卫

主卫
主卫以浅灰色地板为主搭配金属石材,在灯光的衬托下空间层次分明;如果说客厅、餐厅、主卧室比较沉稳,那么主卫的搭配则非常的轻盈,让人能感受到浓厚的现代艺术气,镜柜的设计让男女业主都非常满意。
▼大孩房

大孩房

大孩房
这个是业主的大孩房,整体色调以主卧室的为主,软装以少部分暖色点缀为主,配合蓝色,整体功能完善;业主的大的小孩已经上初中了,所以没必要搞得很有童趣,像这样成熟稳重一点就非常好,这样对他的成长还是很有帮助。
▼小孩房

小孩房

小孩房
这是业主的小孩房,面积不大,重点在储物上,利用各个空间做到储物最大化,又保证了美观。业主的小的孩子现在还是幼儿园,所以卧室的设计没有选择很沉稳的色彩,意在营造一个极具童趣的卧室空间,用衣柜做床头柜的搭配设计,利用率非常高,再利用飘窗做书桌,简直是把空间极致利用了。