朴素美学
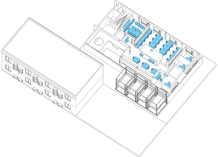
2016年7月,古宜路 188 园区由水石国际从运营商手里整体租下,并进行整体改造。整个园区由四栋多层办公楼组成,米川工作室位于园区南向的 2 号楼 1 层电梯厅以东的办公单元区域,包括 260㎡的室内面积及 95㎡的室外空间,呈两个“L”型的咬合状态,由工作室完成设计改造。




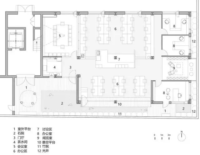
原有的单元大门出入口位于北向的主通道上,通过反复研究,决定将北侧的大门改成窗户,而在楼梯间的位置开了一扇通往南庭院的门,再通过南庭院到达新开的南向大门。把北入口换成南入口的考虑,无疑在入口的空间上增添了不少趣味性和层次感,通过狭窄的楼梯间下部空间达到的南庭院,有种豁然开朗的感觉,也增添了室内到室外再到室内的空间上的变化,和与阳光、雨雪、风霜接触的机会。



从清晨到傍晚,阳光随着时间的变化,透过圆洞和树叶,斑驳地洒落在木平台上,原木凳上和边角落里,营造了一隅宁静。此刻雨棚、洞口、樱树的虚实结合,已从视线上和心理上将外部建筑的北立面完全挡住,却又留下了庭院需要的阳光和生机。


开放办公空间对应的南庭院只有 1.8m 宽,原本的南向开窗是从梁下到底的落地窗,院墙外的机械停车楼显得十分醒目碍眼。通过视线分析,我们将窗洞的上檐下降了900mm,同时向柱子外出挑了450mm 的雨棚,窗台的下沿设置在 450mm 的高度,同样出挑,这样在户外形成了一个 2.2m 高,10m 宽,1m 深的窗框,用无框玻璃填充,形成一个完整的景窗。


降低窗的高度,设置出挑的檐口,都是为了让室内的视线范围控制在庭院以内。悬空离地的景框上,可立,可坐,亦可卧,近在咫尺的一面紫竹,像是可以陪伴多年的老朋友,相互对望,静心守候。



室内空间根据功能分为会议接待、开放办公和独立办公三个区域,所有的地面均为水磨石地坪,内墙和吊顶均为白色,三个区域用一条公共走道串联,同时分别在三个区域增加了木饰面表皮的茶水间、讨论区和阅览区,并且都抬高地坪250mm,三个空间就像悬浮在建筑内部的三个木头盒子,形成公共轴上的三处共享空间,也成为这个室内区域最重要最亮眼的节点空间,把原本简洁干净的黑白空间点缀了一缕暖色,冷暖对比使得室内空间简洁明快而又温暖。



工程名称:水石国际米川工作室古宜路新办公室改造设计
坐落地点:上海市徐汇区古宜路188号C103
竣工时间:2017.05
项目面积:建筑室内面积260㎡,
庭院面积:95㎡
主持建筑师:徐晋巍
设计团队:赵丽锋 吴结东 胡之超
项目施工:上海尔新建筑装饰工程有限公司
施工费用:约 人民币50万元
摄影:章勇,胡义杰
资源来源于网络分享只供学习交流