楼盘:重庆钱塘玫瑰湾
面积:400平米
户型:别墅,三层+地下室
风格:新古典风格
费用:56万+(基础装修)
大别墅装修效果图,别墅本身也没有省钱装修这一说,整体风格以新古典展示家居品质。
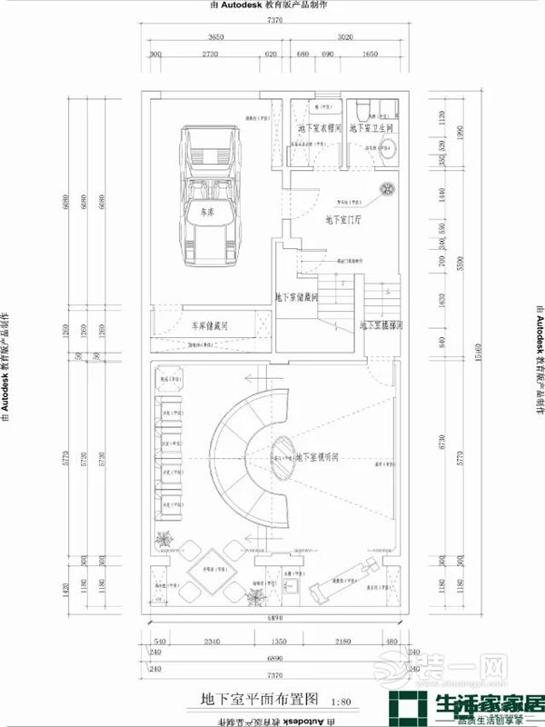
儿童房很有爱,地下设计有家庭KTV室。
虽然,我的家面积没有400平那么大,但是这个新古典风格我还是很喜欢的,看看细节,找到可以借鉴的地方。

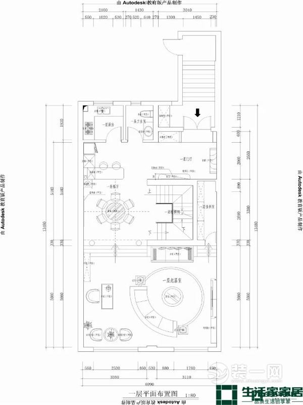
重庆钱塘玫瑰湾400平别墅,一层平面布置图

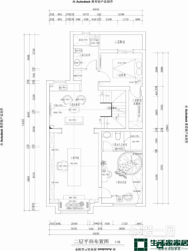
重庆钱塘玫瑰湾400平别墅,二层平面布置图

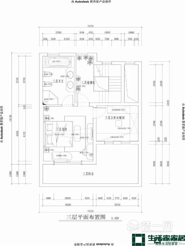
重庆钱塘玫瑰湾400平别墅,三层平面布置图

重庆钱塘玫瑰湾400平别墅,地下室平面布置图

重庆钱塘玫瑰湾400平别墅,新古典风格装修设计效果图展示

重庆钱塘玫瑰湾400平别墅,新古典风格装修设计效果图展示

重庆钱塘玫瑰湾400平别墅,新古典风格装修设计效果图展示

重庆钱塘玫瑰湾400平别墅,新古典风格装修设计效果图展示

重庆钱塘玫瑰湾400平别墅,新古典风格装修设计效果图展示

重庆钱塘玫瑰湾400平别墅,新古典风格装修设计效果图展示

重庆钱塘玫瑰湾400平别墅,新古典风格装修设计效果图展示

重庆钱塘玫瑰湾400平别墅,新古典风格装修设计效果图展示

重庆钱塘玫瑰湾400平别墅,新古典风格装修设计效果图展示

重庆钱塘玫瑰湾400平别墅,新古典风格装修设计效果图展示

重庆钱塘玫瑰湾400平别墅,新古典风格装修设计效果图展示
PS:找装修公司跑断腿儿,不如让小编来推荐~
你,新家要装修?点击下方图片10秒知道自家装修需要多少钱?
当然也可以发私信哦~~~