
《中国大百科全书》是中国第一部大型综合性百科全书,也是世界上规模较大的几部百科全书之一,在1980年代,曾是举全国之力,调动学者2万余人编写的国家级文化工程,填补了中国人在百科全书领域的空白。
建于北京西二环路阜成门旁的中国大百科全书出版社办公楼,正是那个朝气蓬勃的时代的见证。时至今日,《中国大百科全书》已开始第三版的编纂,而伴随百科全书成长的建筑,也到了需要更新换代之时。但为了适应数字化出版的高要求,有限的资金需要同时满足出版社办公硬件和软件设施的改善、提升工作,在建筑工程方面留下的余地并不多。改造设计因此探索了一条利用有限的建筑手段同时满足多种现实需求的道路,为同类需求的项目提供了经验。

从二环路看改造后的中国大百科全书出版社
现有的大百科全书出版社办公楼是1987年竣工的,这座地上15层,地下2层的建筑,一度成为西二环旁的地标建筑,简洁的现代形式反映了那个时代的特点,建筑内庭院中更有一组由艺术家创作的陶瓷壁画,见证当时以举国之力编纂大百科全书时全国各界投入的热情。
然而,随着金融街及附近大体量建筑的崛起,这个在建成之初曾经作为阜成门的地标建筑早已失去了她的芳华,显得平淡无奇。

改造前的建筑东立面,朝向二环路
分体式空调以及广告牌的随意布置使立面显得非常凌乱

建筑层高很低,原办公空间狭小,各类资料堆积如山
在改造过程中,我们尝试通过一体化设计的核心理念,将功能、管线、空间、外立面、文化品质等方面的问题一并解决。
调整主入口,让建筑回归二环
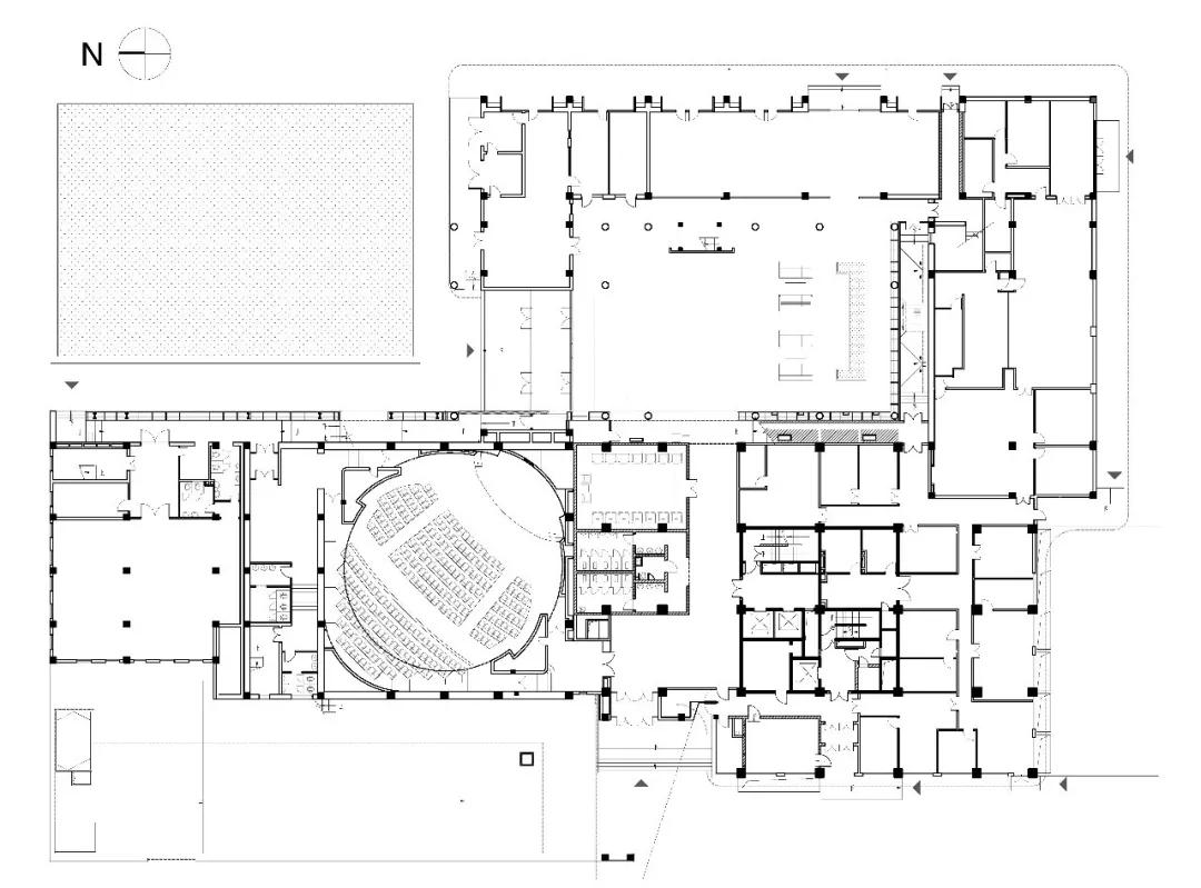
在西二环这样一个重要的城市节点空间,建筑理应属于二环,但建筑主入口却在西侧,狭窄而拥挤,没有与城市空间发生交流,所以我们首先将主入口调整至东侧,利用东北角现有的小花园形成建筑与城市的过渡空间,让建筑回归二环。

调整主入口位置

改造前建筑的东北侧只有一个很小的入口,视觉缺乏标识性
租用北侧裙楼的餐厅的立面吸引了二环路上的主要视线

改造后的东侧主入口,面向二环路有明显的引导性
封闭庭院,形成中庭
现有的院子杂乱无章,空调室外机和广告架子随意摆放,而整个建筑缺乏一个相对宽敞的公共交流空间,所以我们将内院封闭起来作为室内中庭,满足未来的接待、展览以及举办礼仪活动等功能,通过屋面磨砂玻璃顶进行采光。

首层平面图

中庭剖面图

庭院改造前

庭院改为中庭后
完善平面功能
新的室内中庭三层通高,保留原有壁画,在周边设置通高书架,营造读书的氛围。主楼除了办公用房之外,增设摄影和录音棚、数字化体验区、交流讨论区,扩大书库等。北侧裙房恢复为学术报告厅,东侧裙房一层与中庭连通,设置对外开放的书吧,打造24小时读书空间。二层以上仍为办公区。

改造前的书库

改造后的书库

恢复后的学术报告厅
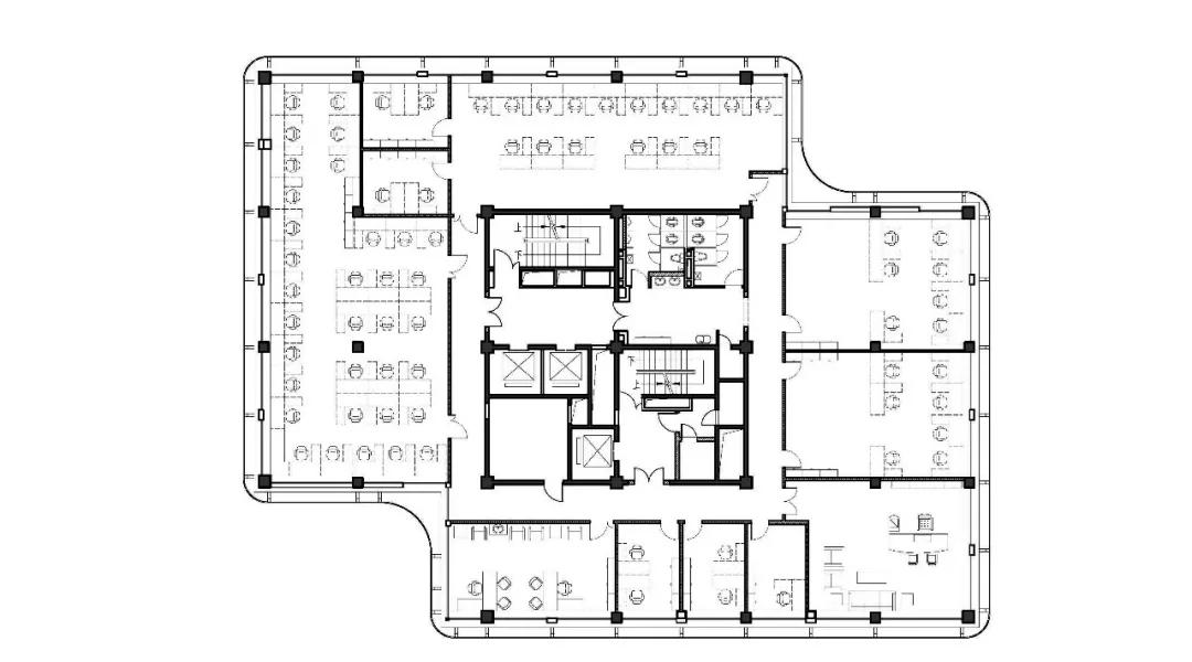
考虑到资金紧张,室内尽量少做装修吊顶,充分整合释放建筑空间,降低造价。办公空间尽可能开放,利于人与人之间的交流;每一层均设置休息岛,人们可以在此休息交流并且眺望二环景观。
内拆外围
建筑主体标准层层高仅3.2米,根据现有规范需要增加自动喷淋系统,再加上空调,传统的做法会大大压缩层高。因此,我们决定办公区域以拆为主,将空间释放出来形成开敞办公,新设的主要设备管线打破传统布置方式,沿外墙走线,在适当位置进入室内,利用梁下空间进行整合,释放出内部空间。外侧再用金属格栅遮挡,既相对增加了室内净高,又减少管井的设置,同时为产生新的建筑立面创造机会。

九层平面图

管线位于外侧格栅与外墙之间,不再占用室内空间
外立面系统化设计
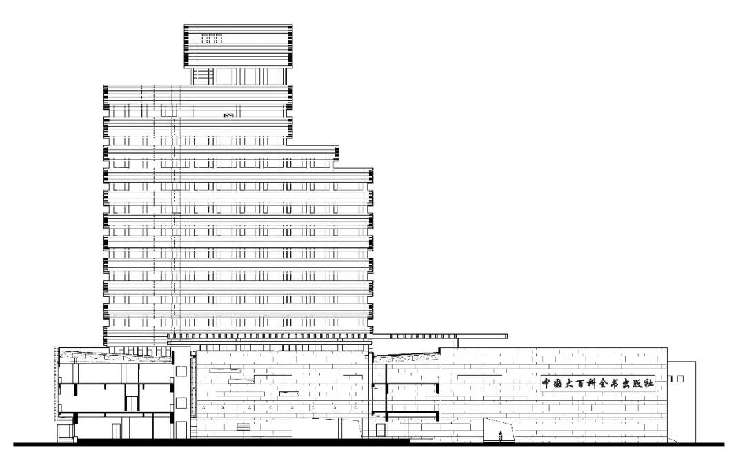
为满足新的节能要求,外墙先粘贴一层外保温材料,再抹上北京旧城红墙的涂料,结合新增的室外管线和金属格栅,使功能和立面获得统一。水平金属格栅铝板宽窄不一,在原有建筑的水平窗带上方,既不遮挡视线还可以起到一定的遮阳作用。金属格栅在转角采用圆弧过渡,将原本刚硬的建筑形体包裹并柔化,再结合原来跌落的形体组合,产生生动的流动感和未来感。

格栅的尺寸分别为100mm、200mm、300mm,分隔缝宽100mm,每一层的格栅分隔均不相同,模拟书本翻开时书页的状态
文化积淀与延续
改造前,在主楼低矮的门厅中,用一片简易展墙上面粘贴着编撰大百科全书的大家学者的照片,有的已经发黄翻卷,十分简陋,与那段值得铭记的历史颇为不符。
改造后,新的主入口前增设了一片巨大的土黄色砂岩文化墙,由室外延伸到室内,结合橱窗进行百科文化历史的展示,既形成入口空间的引导,又遮挡了现状出租杂乱的立面。石材分隔错落有致,刻印着大百科全书的专家名字以及百科词条,延续了大百科名家学者的历史记忆,对他们做出的卓越贡献表示深深的敬意。

土黄色砂岩文化墙,由室外延伸到室内,形成入口空间的引导

文化墙局部
建筑形象特色
在金融街大体量建筑的对比下,原有建筑已经埋没于周边环境中。外立面中宽窄变化但连续整体的金属格栅将建筑尺度放大,让这个建筑在与周边大体量的公建以及高层住宅的小格子立面的对比中凸显出来。

从二环路上看改造后的建筑外观
工程地点 北京市西城区
设计时间 2013年
建成时间 2016年
建筑面积 21 310m2
设计团队 中国建筑设计研究院中旭建筑设计有限责任公司
设计主持 崔愷 吴斌
建 筑 辛钰 范国杰 杨帆
结 构 魏丽红 魏丕哲
给 排 水 裴黎君 潘佳林
设 备 赵祺 孙梅
电 气 马宁 张翯 杜皓
总 图 王雅萍
室 内 顾建英 张明晓
建筑摄影 张广源