一、 编制说明
1. 编制依据
《XX省高速公路网 S19 XX至XX高速公路XX至XX段两阶段设计施工图》
《公路隧道施工技术规范》(JTG F60—2009)
《公路隧道施工技术细则》(JTG/T F60—2009)
《公路工程水泥及混凝土试验规程》JTG E30-2005
《公路工程施工质量检查评定标准》JTG F80/1-2004
《公路工程施工安全技术规范》JTG F90—2015
《公路工程施工监理规范》JTG G10-2006
《公路施工手册 隧道》
《*破爆**安全规程》(GB6722—2014)
《施工现场临时用电安全技术规范》JGJ 46-2005
《高速公路施工标准化技术指南(第五分册 隧道工程)》
《XX省高速公路施工 标准化实施要点第2册工程施工》
《XX州XX高速公路投资建设开发有限公司首件工程认可制实施办法(试行)》
本公司现有管理水平,技术力量,施工设备及在以往类似工程建设的施工经验。
2. 编制原则
(1)坚持在实事求是的基础上,力求技术先进、科学合理、经济适用的原则。在确保工程质量标准的前提下,积极采用新技术、新工艺、新机具、新材料、新测实方法。
(2)合理安排施工程序和顺序,做到布局合理、突出重点、全面展开、平行流水作业;正确选用施工方法,科学组织,均衡生产。各工序紧密衔接,避免不必要的重复工作,以保证施工连续均衡有序地进行。
(3)施工进度安排要注意各专业间的协调和配合,充分考虑气候、季节对施工的影响。
(4)结合现场实际,因地制宜,尽量利用现有设施或就近已有的设施,减少各种临时工程,尽量利用当地合格资源,合理安排运输装卸与存储作业,减少物资运输周转工作量。
(5)坚持自始至终对施工现场全过程严密监控,以科学的方法实行动态管理,并按动静结合的原理,精心进行施工场地规划布置,节约施工临时用地,不占或少占农田,不破坏植被。严格组织、精心管理,文明施工,创标准化施工现场。
(6)严格执行招标文件明确的设计规范、施工规范和验收标准。
二、工程概况
1. 工程基本情况
本项目为XX省高速公路网 S19 XX至XX高速公路XX至XX段第三分部,起点里程桩号为K7+000,终点桩号为K27+980,路线全长为20.98km,本项目设计主线采用全封闭、全立交的双向四车道高速公路标准,主线设计行车速度80km/h,设计汽车荷载采用公路-Ⅰ级,分离式隧道建筑限界净宽:0.75+0.5+2×3.75+0.75+0.75=10.25m,净高:5.0m,隧道防水等级:二次衬砌抗渗等级不小于P8。
本段共有三座隧道。分别为:海尾隧道(分离式:左线ZK10+998~ZK12+165,长1167m;右线K11+010~K12+195,长1185m。属长隧道);XX1#隧道(连拱:K16+955~K17+220,长265m。属短隧道);XX2#隧道(分离式:左线ZK20+855~ZK22+150,长1265m;右线K20+920~K22+166,长1246m。属长隧道)
本首件工程选取XX2#隧道作为首件工程介绍其洞身开挖施工方案。
XX2#隧道为分离式隧道,位于XX县XX乡西南方向,左右幅隧道测中线距离约21m~44m。隧道所在地段高程为1288m~1421m之间,地形起伏较大,相对高差约133m。隧道左幅最大埋深约为114m,纵坡2.512%;右幅最大埋深约为117m,纵坡2.5%。隧道设车行横通道1个,人行横通道2个,紧急停车带2个。
隧道内轮廓采用R1=5.55m的单心圆衬砌断面,内轮廓总宽11.1m,总高8.85m(有仰拱),8.10m(无仰拱)。详见下图


1. 气象、水文、地质条件
隧址区属中山构造剥蚀地貌,隧道区地形起伏较大,隧道于斜坡位置进洞,沿西南方向穿越山体后于斜坡位置出洞,与龙街1#大桥相接,进出口均无道路通往隧址区,交通运输条件困难。隧址区无地质构造发育迹象。
隧址区位于亚热带,气候温和,雨量充沛。年平均气温15.7~17.6℃,月最高气温为6月达20.9~22.6℃,月最低气温为1月8.2~10.5℃。年平均降水量932~1689mm,月最大降水量204.2~308.2mm,一般发生在7月或8月,月最小降水量10.9~18.1mm,一般发生在1月或2月。
隧道区地表水微发育,隧道出口段沟谷内发育常年地表水,流量较小,流速较慢,水量受降雨量和季节控制。地下水为第四系孔隙水类型、基岩裂隙水、碳酸岩盐类岩溶水类型。第四系孔隙水多赋存于第四系松散土体中,多以潜水形式出现,水量甚微;基岩裂隙水赋存于砂岩裂隙中,水量较大;碳酸岩盐类岩溶水赋存于灰岩中,水量较大;地下水主要由大气降水及周围地表水入渗补给,以地下径流的方式汇集、排泄于沟谷低洼地段。
根据设计说明所述:隧道区未见有泥石流、滑坡、崩塌等不良地质作用发育,场地相对较稳定;隧道区按抗震设防烈度为6度,设计基本地震加速度值为0.05g,分组为第三组,地震动反应谱特征周期为0.40s。建议隧道正常涌水量为626.22m3/d,最大涌水量为939.33m3/d。场地岩土构成自上而下为:
(1)第四系坡残积(Q4el+el)层
粉质黏土(单元层代号为①):褐红、褐黄色,硬塑,局部夹3~6%角砾。该层分布于隧址区进口,厚度5~8m。
碎石(单元层代号为②):灰黄色,稍密,稍湿,成分主要为泥岩、砂岩等,粒径20~30mm,含量60%~70%,多呈棱角状,充填物主要为黏性土,该层分布于隧址区中后段和出口段。
(2)三叠系中统法郎组(T2f)层
泥质粉砂岩夹砂岩(单元层代号为③):灰色、灰褐色,强风化,粉砂质结构为薄层状构造。岩质软,节理裂隙发育,岩心多呈块状、碎块状。该层分布于隧址区后半段。
泥质粉砂岩夹砂岩(单元层代号为④):灰色、灰褐色,中风化,粉砂质结构为薄层状构造。岩质较软,节理裂隙较发育,岩心多呈柱状、短柱状、碎块状,RQD=50%。
(3)三叠系中统个旧组(T2g)层
灰岩(单元层代号为⑤):灰、灰白色,中风化,细晶结构,中厚层状构造,岩质较硬,节理裂隙发育,岩体较完整,该层分布于隧址区出口段。
灰岩(单元层代号为⑥):浅灰、灰白色,强风化,细晶结构,薄层状构造,岩质较硬,节理裂隙发育,岩体较完整,岩心多呈短柱状、少量碎块状,RQD=86%。该层分布于隧址区进口段及前半段。
隧道围岩级别划分及洞门情况如下:左幅Ⅴ级围岩165m,Ⅳ级围岩560m,Ⅲ级围岩520m,XX端设5m明洞,XX端设15m明洞;右幅Ⅴ级围岩141m,Ⅳ级围岩420m,Ⅲ级围岩660m,XX端设8m明洞,XX端设17m明洞。XX端洞门采用偏压端墙式,XX端采用削竹式洞门。
2. 隧道围岩支护
XX2#隧道围岩支护类型划分详见下表:



三、 施工组织、部署
1. 洞身开挖(首件工程)选取
经项目部结合现场综合考虑后,选取XX2#隧道洞身开挖作为首件工程。
2. 首件目的
通过在首件制施工中的实验与检测,选定合适的工艺流程,确定最佳的施工机械、设备组合和人员配备。首件作业完成后,资料整理上报,经监理工程师批准后,将作为以后指导本标段洞身开挖施工作业和质量检查、检测的依据。
3. 开工准备
1、开挖前场地应完成三通一平,确认地上、地下的电缆、管线、旧建筑物、等障碍物均已排除处理完毕,各项临时设施准备就绪。
2、大临设施修建完毕,满足主要管理人员、技术人员、作业人员进场生活、办公需要。
3、隧道的轴线和水准基点桩设置完毕,经复核并办理签证手续,洞顶截水沟、洞口边仰坡、洞口大管棚、超前地质预报等工作均已按要求施作完成。
4、安排各种工人进场,并进行了岗前培训(三级安全教育、安全技术交底和危险源的风险告知),签订《安全生产目标责任书》,经考核合格后持证上岗。
5、电工、炮工等特种作业人员经相关部门培训,取得特种作业资格证书,具备上岗条件。
6、砂、石、水泥、钢筋等材料的采购,经试验室检测合格后运至施工现场。
4. 人员组织机构
为加强洞身开挖首件工程的施工指导和总结,我项目专门成立了首件工程认可制领导小组,具体人员安排图:附组织机构框图
1. 施工进度计划
本隧道洞身开挖计划于2017年9月20日开工, 2019年1月19日完工,总工期为16个月。
四、 施工准备情况
1. 技术准备
4.1.1、洞身开挖首件工程开工前,熟悉并审核图纸,熟悉洞身围岩级别划分,支护类型,地质条件,复核隧道中线、高程,试验室做好水泥、砂、石、钢筋等原材料的质量检测和混凝土配合比。
4.1.2、编写技术质量、安全交底资料,施工前做好书面交底。
4.1.3、组织学习施工规范及验收标准,为认真贯彻执行规范及标准做好准备。
4.1.4、准备齐全技术资料的各种表格。
4.1.5、熟悉和分析施工现场的地质、水文资料,施工现场环境,向现场施工人员进行技术、操作、安全、环保交底,满足公路规范及设计要求,确保施工过程的工程质量和人员安全。
4.1.6、测量放样
放样前进行导线点、水准点加密。(隧道洞口设三角控制网及水准点2个,洞内根据开挖进度进行加密),经测量监理工程师认可后进行施工放样,按设计图纸定出隧道中线、高程、开挖轮廓线、炮孔位置。
2. 材料准备
为了隧道洞身开挖的顺利进行,已对所需材料进行调查,与主材厂家签署协议,保证能及时供应,并能顺利进场,现场浇筑采用搅拌站集中拌和。已对实际施工要求选定的主材来源均取样检验合格并经监理工程师同意使用。
3. 人员准备
1、项目部对施工人员进行施工前交底,掌握洞身开挖施工的技术及相关安全问题。
2、强化相关人员的安全意识,做好安全教育工作。要形成人人讲安全,人人抓安全,人人管理安全的高度的思想意识。
3、让所有参加施工人员熟悉施工方案及质量要求,确保工程质量符合要求。
4、施工人员、机械表如下:

主要管理人员一览表
劳动力配置:施工人员共102人,包括钻爆工40人,出碴工8人,支护工36人,电工2人,机械工4人,测量员2人,现场管理员4人,安全协管员2人,其他工人4人。

机械设备配置一览表
1. 现场准备
4.4.1生产、生活临时建设
场地布置本着“因地制宜、便于管理、方便施工”的原则进行布置。隧道民工驻地、材料堆放加工场、喷砼拌合站建设于隧道进口左侧。
4.4.2施工便道
本隧道可从五旧乡道公路经施工进场便道将生产需要的设备、材料等物资运至施工现场。
4.4.3供电、供水
施工用水采用井点取水或当地水源,以确保施工用水。利用10千伏专线满足现场施工用电(前期采用一台500KW发电机发电)。
4.4.4机械设备已经进场并且调试正常
五、 施工工艺
Ⅴ级围岩采用环形开挖预留核心土法开挖,大管棚及小导管超前,人工配合机械开挖,辅以弱*破爆**;Ⅳ级围岩采用台阶法开挖,小导管及锚杆超前,光面*破爆**;Ⅲ围岩采用全断面法开挖,光面*破爆**。
1. Ⅴ级围岩(S5a、S5b)
Ⅴ级围岩采用环形开挖预留核心土法开挖,大管棚及小导管超前。上部留核心土支挡开挖工作面,以增强开挖工作面的稳定性,核心土及下部开挖在拱部初期支护保护下进行。开挖时采用人工配合挖掘机进行,必要时辅以弱*破爆**开挖,机械通风,装载机和自卸汽车出碴。
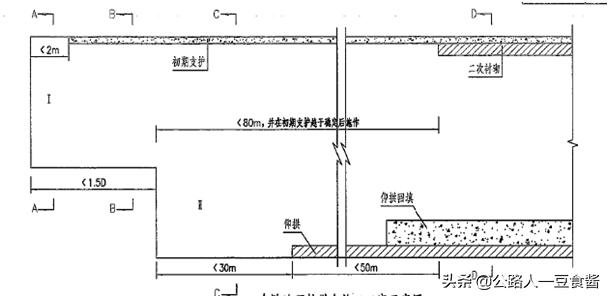
根据隧道设计围岩情况及规范要求,S5a(S5b)考虑12cm(10cm)预留变形量,5㎝施工误差,上台阶开挖半径按6.48m(6.44m)计算,隧道洞身开挖最大高度为1054㎝(1039cm),洞身开挖面积为110.63㎡(108.46㎡),核心土面积不得小于断面面积的1/2,台阶长度8~10m。上台阶循环进尺一榀拱架0.6m(0.8m),下台阶循环进尺二榀拱架1.2m(1.6m),左右错开距离不小于3m,仰拱一次开挖长度不得大于3m。上台阶距仰拱安全步距35m,距二衬50m。
施工主要步骤及顺序如下:
环形开挖上断面Ⅰ、Ⅱ、Ⅲ→施作上断面初期支护①→开挖上断面核心土Ⅳ→跳槽开挖下断面Ⅴ→施作下断面初期支护②→跳槽开挖下断面Ⅵ→施作下断面初期支护③→施作仰拱④→仰拱回填⑤→整体模筑二次衬砌⑥。
如图5-1

图5-1 环形开挖预留核心土开挖示意图
上、下台阶开挖地段局部采用松动*破爆**,每次*破爆**钻孔8个或以下,炮孔直径42mm,采用Φ32药卷,无水地段用2#岩石*铵硝***药炸**,有水地段用乳化*药炸**。各孔采用微差*破爆**,眼深控制在1.0米以内,采用单孔单段集中装药,单孔药量不大于0.08kg。


单孔装药结构示意图
*破爆**网路采用非电复式起爆方式。每个炮孔的起爆*管雷**均反向装于孔底的药包中。孔底以上的药包由敷设于炮孔壁的*爆索导**引爆。
所有炮孔的起爆先后顺序均由孔底起爆*管雷**的段位决定。起爆*管雷**的导爆管脚线引出孔外,捆扎于搭桥*管雷**上。搭桥*管雷**的导爆管再捆扎在总起爆*管雷**上,总起爆*管雷**导爆管脚线引出至避炮点,用激发枪或其它起爆器起爆*破爆**网路。如下图:


V级围岩作业循环时间如下表:

月进尺及工期计算:
S5a:24(小时)*60(分钟)/600(分钟)*0.6m/循环*30天=43.2m;考虑到各种不确定因素,实际月进尺为40m/月。左线:120m/40m每月*30天=90天;右线102m/40m每月*30天≈77天。
S5b:24(小时)*60(分钟)/600(分钟)*0.8m/循环*30天=57.6m;考虑到各种不确定因素,实际月进尺为54m/月。左线:45m/57.6m每月*30天≈24天;右线39m/57.6m每月*30天≈21天。
2. Ⅳ级围岩(S4a、S4b、S4c)
Ⅳ级围岩采用台阶法开挖,超前锚杆及小导管超前。开挖时采用光面*破爆**,机械通风,装载机和自卸汽车出碴。
根据隧道设计围岩情况及规范要求,S4a(S4b、S4c)考虑8cm(7cm、7cm)预留变形量,5㎝施工误差,上台阶开挖半径按6.31m(6.30m、6.30m)计算,隧道洞身开挖最大高度为1011㎝(1010cm、919cm),洞身开挖面积为103.87㎡(103.61㎡、91.58㎡),台阶长度10~15m。上台阶循环进尺二榀拱架1.6m(2.0m、2.4m),下台阶循环进尺二榀拱架1.6m(2.0m、2.4m),左右错开距离不小于3m,仰拱一次开挖长度不得大于3m。上台阶距仰拱安全步距35m,距二衬80m。
施工主要步骤及顺序如下: 开挖上断面Ⅰ→施作初期支护①→跳槽开挖下部断面Ⅱ→施作初期支护②→施作仰拱③、填充④→整体模筑二次衬砌⑤。
见下图5-2


图5-2 台阶法开挖示意图
Ⅳ级围岩作业循环时间如下表:
开挖支护循环作业时间计算表

月进尺及工期计算:
S4a:24(小时)*60(分钟)/900(分钟)*1.6m/循环*30天=76.8m;考虑到各种不确定因素,实际月进尺为64m/月。左线:20m/64m每月*30天≈10天;右线60m/64m每月*30天≈29天。
S4b:24(小时)*60(分钟)/900(分钟)*2.0m/循环*30天=96m;考虑到各种不确定因素,实际月进尺为80m/月。左线:480m/80m每月*30天=180天;右线280m/80m每月*30天=105天。
S4c:24(小时)*60(分钟)/900(分钟)*2.4m/循环*30天=115.2m;考虑到各种不确定因素,实际月进尺为96m/月。左线:60m/96m每月*30天≈19天;右线80m/96m每月*30天≈25天。
3. Ⅲ级围岩(S3)
Ⅲ级围岩采用台阶全断面法开挖。开挖时采用光面*破爆**,机械通风,装载机和自卸汽车出碴。
根据隧道设计围岩情况及规范要求,S3衬砌类型考虑5cm预留变形量,5㎝施工误差,上台阶开挖半径按6.10m计算,隧道洞身开挖最大高度为899㎝,洞身开挖面积为86.54㎡。循环进尺3.0~3.5m。掌子面距二衬安全步距120m。
施工主要步骤及顺序如下:
开挖全断面Ⅰ→施作初期支护①→整体模筑二次衬砌②。
见下图5-3


Ⅲ级围岩作业循环时间如下表:

月进尺及工期计算:
S3(SJ3):24(小时)*60(分钟)/720(分钟)*3.0m/循环*30天=180m;考虑到各种不确定因素,实际月进尺为150m/月。左线:520m/150m每月*30天=104天;右线660m/150m每月*30天=132天。
人行横洞、车行横洞
按照围岩等级参照正洞开挖方法,采用挖掘机装渣,自卸汽车运渣。洞口段开挖严格控制进尺和装药量,并及时进行支护,确保施工安全。
横洞与正洞交叉口处于三维空间,受力复杂,施工中应加强围岩监控量测,并及时根据围岩监控量测结果,及时调整开挖方式和修正支护参数。
4. 光面*破爆**
本隧道Ⅳ、Ⅲ级围岩采用光面*破爆**法施工。
钻爆施工工艺如下图:

隧道钻爆施工工艺框图
钻爆设计:
a. 设计原则
根据地质条件,开挖断面、开挖进尺,*破爆**器材等编制光面*破爆**设计方案。
根据围岩特点合理选择周边眼间距及周边眼的最小抵抗线,辅助炮眼交错均匀布置,周边炮眼与辅助炮眼眼底在同一垂直面上,掏槽眼加深20~50cm。
严格控制周边眼装药量,间隔装药,使药量沿炮眼全长均匀分布。
选用低密度低爆速、低猛度的*药炸**;本工程主要采用二号岩石*铵硝***药炸**,周边眼采用φ25mm小药卷,其它采用20cm长,直径φ32mm标准药卷,每卷0.15Kg*药炸**。有水地段采用乳化*药炸**。采用非电毫秒*管雷**(1、3、5、7、9、11、13、15、17段),共9种段别,非电毫秒*管雷**采用微差*破爆**,周边眼采用*爆索导**起爆,以减小起爆时差。
b. 钻爆设计要求
*破爆**作业需要根据地质条件、开挖断面、开挖方法、循环进尺、钻眼机具、*破爆**器材等进行*破爆**设计。根据钻爆设计进行试验、数据收集分析、参数调整、指导施工,开挖断面施工放样时应考虑围岩变形及施工误差的影响。
根据围岩情况合理选择*破爆**参数,选择楔形掏槽。*破爆**后要求炮眼痕迹保存率:硬岩≥80%,中硬岩≥60%,并在开挖轮廓面上均匀分布,两次*破爆**衔接台阶不大于10cm。
每次*破爆**后通过*破爆**效果检查,分析原因,及时修正*破爆**参数,提*爆高**破效果,改善技术经济指标。
洞口附近*破爆**施工严格控制单位装药量,降低震速,确保周边民房及其他构筑物的安全。
c.各级围岩炮眼布置及参数确定
ⅰ炮孔装药量
掏槽孔
Q1=η•L •r
式中:η——炮孔装药系数,取η=0.9
L——孔深, LⅣa=2.0m、LⅣb=2.5m、LⅣc=3.0m、LⅢ=3.5m
r——每米长度*药炸**量,r=0.78kg/m
经计算QⅣa=1.404kg,取1.40kg;QⅣb=1.755kg,取1.75kg; QⅣc=2.106kg,取2.10kg; QⅢ=2.457kg,取2.45kg
辅助孔
QIVa=η•L •r=0.8*1.8*0.78=1.123kg 取QIVa=1.2kg
QIVb=η•L •r=0.8*2.2*0.78=1.373kg 取QIVb=1.4kg
QIVc=η•L •r=0.8*2.6*0.78=1.622kg 取QIVc=1.7kg
QⅢ=η•L •r=0.8*3.2*0.78=1.997kg 取QⅢ=2.0kg
光爆孔
通常为辅助孔的1/3~1/4,取QIVa=0.4kg ,QIVb=0.4kg ,QIVc=0.5kg ,QⅢ=0.6kg
ⅱ*破爆**作业最大一段装药量的确定
Qmax=R3(Vkp/K)3/a
Qmax为最大一段*破爆**药量,kg;Vkp为振速安全控制标准,cm/s,距掌子面一倍洞径处控制在15cm/s;R为爆源中心至振速控制点距离,Ⅳ级围岩取12.6m,Ⅲ级围岩取12.2m;K为地形、地质影响系数,Ⅳ级围岩取160,Ⅲ级围岩取80;a为衰减系数Ⅳ级围岩取1.8,Ⅲ级围岩取1.5。
经计算得出Ⅳ级围岩Qmax=38.702Kg,Ⅲ级围岩Qmax=63.838Kg。
ⅲ炮眼间距和抵抗线的确定
周边眼间距取50cm,抵抗线取75cm;上台阶辅助眼间距分别按0.75、0.95、1.0米取值,底板眼按0.8米布设;下台阶辅助眼间距分别按0.95、1.05米取值,底板眼按0.75米布设。
ⅳ孔位布置图及装药参数表
Ⅳ级围岩

台阶开挖法钻爆设计示意图






Ⅲ级围岩


施工中应根据现场围岩情况对最大一段装药量、单孔装药量及孔位布置进行优化调整。
d. 放样布眼
钻眼前,测量人员要用红铅油准确绘出开挖面的中线和轮廓线,标出炮眼位置,其误差不得超过5cm。在直线段,可用3~5台激光准直仪控制开挖方向和开挖轮廓线。
每次测量放线的同时,对上次*破爆**断面进行检查,利用《隧道开挖断面量测系统》对测量数据进行处理,及时调整*破爆**参数,以达最佳*破爆**效果。
e. 定位开眼
按炮眼布置图正确钻孔,对于掏槽眼和周边眼的钻眼精度要求比其它眼要高,开眼误差要控制在3cm和5cm以内。
f. 钻眼
钻工要熟悉炮眼布置图,严格按钻爆设计实施。定人定位,周边眼、掏槽眼由经验丰富的司钻工司钻,以确保周边眼有准确的外插角(眼深3m时,外插角小于3°;眼深5m时,外插角小于2°),尽可能使两茬炮交界处台阶小于10cm。同时,应根据眼口位置及掌子面岩石的凹凸程度调整炮眼深度,以保证炮眼底在同一平面上。
同类炮眼钻孔深度达到钻爆设计要求,眼底保持在一个铅垂面上。
g. 清孔
装药前,必须用由钢筋弯制的炮钩和小于炮眼直径的高压风管输入高压风将炮眼石屑刮出和吹净。
h. 装药结构及堵塞方式
装药采用分片分组按炮眼设计图确定的装药量自上而下进行,*管雷**“对号入座”。所有炮眼均以炮泥堵塞,堵塞长度不小于25cm。

装药结构示意图
周边眼装药结构是实现光面*破爆**的重要条件,严格控制周边眼装药量,采取分段非连续装药结构。施工时采用不耦合装药结构,不耦合装药系数控制在1.2~2.0范围内。
根据岩石强度选用不同猛度、爆速的*药炸**,有水地段选用乳化*药炸**,其余均用2号岩石*铵硝***药炸**。周边眼用φ25、φ32小药卷,间隔不耦合装药。掏槽眼、辅助眼采用φ32药卷。采用*爆索导**或非电*管雷**。
装药作业采取定人、定位、定段别,做到装药按顺序进行;装药前,所有炮眼全部用高压风吹洗;严格按*破爆**设计的装药结构和药量施作;严格按设计的联接网络实施,控制*爆索导**的连接方向和连接点的牢固性。
所有装药炮眼用炮泥堵塞,周边眼堵塞长度不小于25cm。
i. 联结起爆网路
*破爆**网路采用非电复式起爆方式。每个炮孔的起爆*管雷**均反向装于孔底的药包中。孔底以上的药包由敷设于炮孔壁的*爆索导**引爆。
所有炮孔的起爆先后顺序均由孔底起爆*管雷**的段位决定。起爆*管雷**的导爆管脚线引出孔外,捆扎于搭桥*管雷**上。搭桥*管雷**的导爆管再捆扎在总起爆*管雷**上,总起爆*管雷**导爆管脚线引出至避炮点,用激发枪或其它起爆器起爆*破爆**网路。如下图:

起爆网路为复式网路,以保证起爆的可靠性和准确性。联结时要注意:导爆管不能打结和拉细;各炮眼*管雷**连接次数应相同;引爆*管雷**应用黑胶布包扎在离一簇导爆管自由端10cm以上处。网路联好后,专人负责检查。
j. 光面*破爆**控制标准
根据技术规范,采用严格的光面*破爆**控制标准。控制标准详见下表。
光面*破爆**控制标准表

k. *破爆**效果监测及*破爆**设计优化
a*破爆**效果检查
检查项目主要有:断面周边超欠挖检查;开挖轮廓圆顺度,开挖面平整检查;*破爆**进尺是否达到*破爆**设计要求;爆出石碴块是否适合装碴要求;炮眼痕迹保存率,硬岩≥80%,中硬岩≥60%并在开挖轮廓面上均匀分布;两次*破爆**衔接台阶不大于10cm。
b*破爆**设计优化
每次*破爆**后检查*破爆**效果,分析原因及时修正*破爆**参数,提*爆高**破效果,改善技术经济指标。
根据岩层节理裂隙发育、岩性软硬情况,修正眼距,用药量,特别是周边眼。
根据*破爆**后石碴的块度大小修正装药参数。
根据开挖面凹凸情况修正钻眼深度,使*破爆**眼底基本落在同一断面上。
(4)控制超欠挖的技术措施
①根据岩层节理裂隙发育、岩性软硬情况,修正*破爆**孔距,用药量,特别是周边眼。
②根据*破爆**振速监测,调整单段起爆*药炸**量及*管雷**段数分布。
③根据开挖面凹凸情况修正钻眼深度,尽量使除掏槽眼外的所有炮孔底部基本上落在同一横断面上。
④钻眼前画出开挖轮廓线,标出炮眼位置,安装激光指向仪,保证测量精度,严格控制周边眼外插角和装药量,使开挖轮廓圆顺,炮眼痕迹保存率符合光爆技术要求。
人行横洞、车行横洞、紧急停车带
按照围岩等级参照正洞开挖方法,采用挖掘机、装载机装渣,自卸汽车运渣。洞口段开挖严格控制进尺和装药量,并及时进行支护,确保施工安全。
横洞与正洞交叉口处于三维空间,受力复杂,施工中应加强围岩监控量测,并及时根据围岩监控量测结果,及时调整开挖方式和修正支护参数。
六、 质量控制及保证措施
为保证本项目的顺利实施和兑现本投标文件确定的工程质量目标,根据ISO9001,从组织机构、思想教育、技术管理、施工管理以及规章制度等五个方面建立符合本项目实际的质量保证体系,详见图6-1“质量保证体系框图”。
1. 组织机构
1)、建立以项目经理负责制的质量保证体系,实行五保证、四提高、三落实、二控制、一否决的管理体系,确保工程质量优良。
为了确保试桩的施工质量,结合项目总体施工组织设计要求,制定本次试桩施工的质量保证体系组织机构。

质量保证体系组织机构图
2)、按照质量管理组织机构配齐、配强本项目质量管理的各级机构或部门的工作人员,将质量意识强、施工经验丰富、组织能力强的人员充实到质量管理的各级机构或部门,项目的第一管理者项目经理是质量管理的第一负责人,同时确保质量管理机构或部门的工作权威。
3)、进行全面、全员、全过程的质量管理;按计划、实施、检查、总结四个阶段的工作方法进行管理;贯彻ISO9001标准质量管理体系标准要求。
4)、制订各级质量管理机构或部门及质量管理人员的质量职责,做到职责明确、工作内容清楚,责任及具体工作落实到人,形成质量工作人人肩上有责任的工作范围。
5)、全面按照投标文件中确定的具有丰富的类似项目工程施工经验的队伍和技术、管理人员投入本项目,以保证施工顺利进行和质量创优。
6)、建立健全各种质量管理的规章制度及制订质量标准及操作工艺,并通过质量监督检查工作确保贯彻落实,每季度定期举行一次工程质量评比。
7)、分阶段确定本项目质量攻关,并组建相应质量QC小组,保证质量得到有效的控制。
8)、每月发布质量简报,公布本项目工程质量情况,介绍经验,表彰先进,指出不足,鞭策落后。
1. 思想教育保证
1)、在本项目参战员工中,广泛开展“责任、市场”质量观教育,使广大员工深刻认识到:百年大计,质量第一;质量责任重于泰山;质量就是市场,必须不断建造精品工程,才能赢得市场,才能生存发展,企业员工才有收入来源,才能不断改善和提高物质和文化生活水平。
2)、宣传部门于开工前编发宣教材料,阐明本项目建设的重大意义,把本桥的特点、难点和工期、质量、安全要求讲清楚,从而增加参战员工高质量建设本项目的光荣感、使命感和责任感。
3)、深入开展全面质量管理教育,使参战员工更深刻认识人、机、料、法、环五个因素对工程质量的重大影响,从而围绕五大因素研究并实施不断提高工程质量的措施和办法。
4)、开工前,首先组织本项目施工队伍的主要人员及职能部门负责人学习质量管理和工程创优先进工地的相关文件,汲取成功的管理经验和学习新工艺及操作方法;其次是分层次、分专业本项目管理和操作人员解剖、分析以往在质量方面存在的问题,找出原因,商定控制措施及解决办法,从正反两方面强化参战员工,特别是管理层的质量意识和管理水平。

图6-1质量保证体系框图
1. 技术管理保证
1)、建立并实行以总工程师为首的项目经理部技术负责制,同时建立各级技术人员的岗位责任制,做到分工明确,责任到人,使施工程序和方法符合施工规范和施工技术管理制度的要求,以此确保工程质量创优。
2)、坚持和落实“搞好管理工作一靠责任心,二靠水平的思想”,从日常管理抓起,从提高管理技术素质抓起,努力实现管理目标;探索质量管理规律,尊重规律,按规律办事,正确处理质量、进度、投资、环保、安全的关系,正确处理各项质量指标之间的矛盾;注意微小变化的混沌趋势,防止质量通病漫延;重视实验工程和精品工程的作用,推广应用成功技术和经验;树立质量的整体观念,开好工地会议,充分交流经验;发挥专家经验的作用,开展专题技术咨询、讲座、研讨等活动;加强沟通,及时收集质量信息,进行分析和指导管理工作;根据局部与整体以某种方式相似的思想,注意质量形象,注意局部与整体的结合,注意点、线、面的统一。
3)、认真编制施工组织设计
(1)运用统筹法、网络计划技术等现代管理方法,在周密调查研究取得可靠数据的基础上,编制切实可行的实施性施工组织计划,并报业主(或监理工程师)批准。在严格按网络计划组织实施的同时,实行动态管理,根据变化了的情况及时作出必要调整,使整个施工过程时时处于受控状态。
(2)认真编制施工技术方案。由其技术负责人牵头,在本项目投标文件的基础上,根据深化的现场调查,提出施工技术方案,提交给项目总工程师,由总工程师组织有关人员,对所提出的施工技术方案进行分析、优化,最后确定方案,报业主(或监理工程师)批准后实施。
4)、做好施工前的技术准备工作
(1)组织图纸会审。认真核对设计文件和图纸资料,切实领会设计意图,查找是否有差、错、漏现象,及时会同设计部门和建设单位解决所发现的问题。
(2)认真进行技术交底。图纸会审后,由项目经理部的总工程师、工程部长、分项工程技术人员逐级进行书面及口头技术交底,确保作业人员掌握各项施工工艺及操作要点、质量标准。
(3)组织交接桩。认真进行复测,搞好施工放样测量和复核。
5)、抓好技术资料管理。施工过程做好详细记录,各种原始资料搜集齐全,用于组织后期施工、编制竣工文件和施工技术总结。
2. 施工保证
1)、认真按照相应的设计和施工技术规范、质量验收标准以及本段的施工组织设计、质量、安全、冬雨季施工保证措施和工作程序开展工作。要不断提高职工素质及操作技术,采用先进的工艺和设备,以达到开工必优。
2)、坚持三级测量复核制,各测量桩点要认真保护,施工中可能损毁的重要桩点要搞好护桩,施工测量放线要反复校核。认真进行交接桩,确保中线、平面位置及结构物尺寸位置正确。
3)、严格施工纪律,把好工序质量关,上道工序不合格不能进行下道工序的施工,否则出了质量问题由下道工序的班组负责。对工艺流程的每一工作内容要认真进行检查,使施工作业程序化、规范化,见图6-2质量检查程序框图。
4)、完备的检测手段:根据工程情况及技术规范规定配齐检测和试验仪器、仪表,试验室所有仪器须经计量部门标定,再由所在省交通基建工程质量监督站对其进行资格审查,确定其试验范围后方可进行试验工作。施工过程中定期检查和标定确保计量仪器的精度。试验室无法进行的试验、检测工作,由监理工程师指定的试验室进行。进场的钢材、水泥等主要材料必须具有出厂的质量证明书和试验报告单,同时对工程使用的钢材、水泥、砂、石等建筑材料要进行认真的检验,把好材料进货关,禁止使用不合格材料,控制流程见图6-3主要工程材料质量控制框图。
3. 制度管理保证
1)、 图纸会审制度——加强施工技术管理,严格执行以总工程师为首的技术责任制,使施工管理标准化、规范化、程序化。认真审查施工图纸,熟悉设计文件和施工规范,严格按照设计文件和图纸施工。
2)、技术交底制度——每分项工程开工前,由总工程师对各工艺环节的操作人员进行技术交底,讲清施工重点和注意事项,使所有操作人员心中有数。
3)、工艺过程三检制度——每道工序均严格进行自检、互检和交接检,上道工序不合格,不能进行下道工序的施工。
4)、严格执行工程监理制度——自检合格后及时通知监理工程师检查签认,隐蔽工程必须经监理工程师签认后方能隐蔽。
5)、三级测量复核制——坚持三级测量复核制,各测量桩点要认真保护,施工中可能损毁的重要桩点要搞好护桩,施工测量放线要反复校核。认真进行交接桩,确保中线、水平及结构物尺寸位置正确。
6)、 质量事故报告制度——为了更好的保障质量,防止因出现质量事故而造成更大的危害,本工程质量管理中实施质量事故报告制度,事故上报按照及时、逐级、如实报告原则。
7)、工程质量目标管理奖罚制度——设立“工程质量目标奖”,制定安全质量奖罚规定,对工程质量奖优罚劣。凡是达到质量要求,实现质量目标的按照有关规定进行奖励,对达不到质量要求的从重处罚。
8)、本工程在质量管理上,实行质量保证金制度。项目部对负责质量管理人员和下属施工队伍实行施工生产安全、质量风险抵押金制度。

图6-2 质量检查程序框图

图6-3 主要工程材料质量控制框图
七、 工期保证措施
1. 工期保证体系
建立以项目经理为首的工期保证体系,详见图7-1“工期保证体系框”。
2. 工期保证措施
(1)保证工期的组织措施
成立进度管理组织机构,落实各层次的进度控制人员、具体任务和工作责任。建立进度控制的组织系统,按照工程的结构、工作流程等进行工程的分解,确定其进度目标,建立控制目标体系。确定控制进度的工作制度,如检查时间、方法、协调会议时间、参加人员等。
选派有丰富施工经验、管理经验和实践经验,并经过专业培训的技术和管理干部,组建项目经理部;由施工经验、战斗力强的作业队伍施工;对所有参加施工人员进行岗前培训,提高技术素质和工作效率,确保项目顺利实施加强现场施工组织指挥,作到指挥正确,指挥得力,效率高、应变能力强。以项目经理、总工程师为首的管理体系,决策重大施工问题,确定重大施工方案,切实确保施工进度。当实际进度落后于施工组织设计要求时,及时提出加快施工进度措施。

建立、健全岗位责任制,施工人员定岗定责,严格技术标准、工艺措施、严明施工纪律,按设计要求施工。
完善项目管理模式,完善竞争机制和激励机制,实行全员风险承包任务层层落实。把工期效率和职工个人的经济利益挂钩,兑现奖罚,充分调动全体职工的生产积极性。
正确认识工期和安全、质量、效益的辩证关系,没有进度就没有效益,没有安全、质量保证的进度是负进度。
注重与业主、监理、设计单位和地方政府保持紧密关系,同心协力为本工程建设献计献策,保证工程的顺利完工。
(2)保证工期的技术措施
精心安排,强化管理,在深入调查、吃透设计意图的基础上,编制实施性施工组织设计,分级负责,认真实施,并在实践中不断优化,施组的实现关键在于强化管理,要高起点、高质量、严要求。
施工准备期抓“两短一快”即进场时间短、准备时间短、尽快形成生产能力。施工过程中狠抓施工的程序化、标准化作业,通过合理的组织与正确的施工方法,尽快形成生产能力,提高施工进度,保持稳产高产。
大力推广信息化施工技术,利用网络计划技术进行进度控制。现场建立计算机信息管理系统,全面及时掌握并迅速准确处理影响施工进度的各种问题。实现施工过程的有序可控。利用Project软件进行进度网络计划编制、跟踪、调整、优化。设置重点部位和关键工序的控制点,压缩非关键线路时差和资源,紧抓关键线路各道工序和重难点攻关,确保关键线路进度,实现动态管理。
根据施工总进度的要求,编制施工生产计划,实施并对照检查,找差距,找原因,完善管理,促进施工。
认真做好工程的统筹、网络计划工作,科学组织、合理安排、均衡生产。对工程进行动态控制。牢牢抓住关键工序的管理与施工,合理安排施工时间,控制循环作业时间,减少工序搭接时间,提高施工效率。优化施工方案,提高施工进度。
成立专门的机械维修班组,加强对机械的保养维护,保证施工机械的正常运转。
注重依靠科学和技术进步。采用新技术,在关键工序采用施工效率高的机械。对影响施工进度和质量施工技术难题,开展QC小组活动,组织攻关,充分听取各方面的合理化建议,提高施工进度。
全面提高人员整体素质。加强技术培训,提高施工人员的操作技术熟练程度,所有参建员工必须经技术培训后方可上岗。项目经理部的人员要深入学习项目管理知识,规范操作行为。
抓好标准化施工,认真贯彻执行ISO9001标准,通过合理的施工组织和正确的施工方法来提高施工进度,要稳产高产,防止大起大落。
八、 安全组织保证措施
1. 安全保证体系
1)、认真贯彻执行*党**和国家的安全生产方针、政策,严格执行有关施工规范和安全技术规则,对施工人员进行岗前安全教育培训,牢固树立“安全第一、预防为主”和“管生产必须管安全”的思想意识。
2)、建立健全安全保证体系,领导挂帅,全员参加,使安全工作制度化、经常化,并贯穿施工全过程。该体系以项目经理为安全生产的第一责任人。经理部成立安全生产委员会,作业队设专职安全员,工班设兼职安全员。
3)、安全保证体系、安全检查程序、安全管理组织机构见图8-1《安全保证体系框图》、图8-2《安全生产责任框图》。
2. 综合保证措施
1)、建立以岗位责任制为中心的安全生产逐级负责制,制度明确、责任到人,奖罚分明。
2)、在编制施工计划的同时,编制详细的安全操作规程、细则、制度及切实可行的安全技术措施,分发至工班,组织逐条落实。搞好“五同时”(即在计划、布置、检查、总结、评比生产的同时,计划、布置、检查、总结、评比安全工作)和“三级安全教育”。
3)、每一工序开始前,做出详细的施工方案和实施措施,报经监理工程师审批后,及时做好施工技术及安全技术交底,并在施工过程中督促检查,严格坚持特殊工种持证上岗。
4)、进行定期和不定期的安全检查,及时发现和解决不安全的事故隐患,杜绝违章作业和违章指挥现象,同时加大安全教育及宣传力度,对重点作业场所、危险区、主要通道设“四牌一图”,即:工程告示牌、安全生产记录牌、安全无重大事故记录牌、工地主要管理人员名牌、施工总平面图。
5)、坚持每周一安全活动日的安全学习制度。严格执行交接班制度,坚持工前讲安全、工中检查安全、工后评比安全的“三工制”活动。
6)、开工前期制定各项安全制度及防护措施:
① 各类机电设备操作规程及各项安全作业规章制度。
② 用电安全须知及电力架设、养护作业制度。
③ 风、水管路安设及养护制度。

图8-1 安全保证体系框图
安全生产责任系统图(附图)
1. 安全应急救援预案
本隧道,在施工过程中有着不可预知因素,所以建立现场施工应急救援预案,以防突发事故的发生能及时解决。
建立应急处理机制,在项目经理部建立以项目经理为指挥长,副经理、总工程师为副指挥长的应急领导小组。
应急自救领导小组人员
..........
(1)、应急救援总指挥职责
及时承担起现场救援的全面指挥工作,领导和决策应急响应与危机处理工作;负责突发事故和紧急情况时,立即启动本预案,做到快速反应从容应对指挥得当,部署及时;依照本预案有关管理方案的规定和现场实际情况,分配相关人员的具体职能,协调应急救援处理工作,提升小组团队应急能力;在紧急状态结束后,控制受影响地点的恢复,并组织人员参加事故分析和处理。
(2)、应急救援组副总指挥职责
协助领导小组组长工作,在组长不在时,承担起组长职责,确保各项目标、指标和任务的完成;评估事故的规模和发展态势,建立应急步骤,确保施工人员的安全和减少设施和财产损失;设立与应急中心的通讯联络,为应急服务机构提供建议和信息;安排寻找受伤者及安排非重要人员撤离到集中地带;如有必要,在救援服务机构来之前直接参与救护活动。
(3)、通讯联络组职责
①内部和外部联系畅通,内外信息反馈迅速。
②保持通讯设施和设备处于良好状态。
③负责应急过程的记录与整理及对外联络。
④了解掌握事故情况,负责事故发生后在第一时间通知应急小组主要成员,负责召集小组成员对外联络,及时向主管部门汇报。
(4)、技术服务组职责
①项目技术及现场负责人到达事故地点后,对坍塌事故情况进行分析判断,及时向应急小组组长提出科学的技术方案和技术支持,有效地指导应急行动中的工程技术工作。
②提出抢险抢修及避免事故扩大的临时应急方案和措施。
③指导抢修组实施应急方案和措施。
④修补实施中的应急方案和措施存在的缺陷。
⑤绘制事故现场平面图,标明重点部位,向外部救援机构提供准确的抢险救援信息资料。
(5)、抢险抢救组职责:
①协调有关部门的抢险行动,及时报告抢险进展情况。
②引导现场作业人员从安全通道疏散。
③抢运可以转移的场区内物资,将可能引起新危险物品转移到安全地带。
④在事故有可能扩大进行抢险抢修或救援时,高度注意避免意外伤害。
⑤抢险抢修或救援结束后,安排人员配合好事故调查取证,并对结果进行复查和评估。
(6)、医疗救护组职责:
①负责现场受害人员的救护工作。
②在外部救援机构末到达前,对受害者进行必要的抢救。
③协助外部救援机构转送受害者至医疗机构,并指定人员护理受害者。
④对受害人员做简易的抢救和包扎,及时转移重伤人员到医疗机构就医,使重度受害者优先得到外部救援机构的救护。
(7)、后勤保障组职责:
①负责现场紧急救援物资的征集。
②提供合格的抢险抢修或救援物资及设备。
③保障系统内各组人员必须的防护、救护用品及生活物资的供给。
(8)、善后组职责:
①负责事故现场的警戒,设置事故现场警戒线,阻止非抢险救援人员进入现场,保护抢险人员的人身安全,维持治安秩序。
②负责保护事故现场,避免闲杂人员围观,监视事故现场发展情况等。
③对场区内外进行有效隔离疏散,引导施工现场外周边居民撤出危险地带。
④负责现场车辆疏通,引导抢险救援人员及车辆的进入,保持抢险救援通道的通畅。
⑤抢险救援结束后,封闭事故现场,直到收到明确解除指令。
九、文明施工和环境保护措施
1. 文明施工措施
1)、文明施工方案
在施工生产和生活活动中,加强对施工人员的文明行为教育,作到管理程序化,作业标准化。加强现场管理,搞好文明施工,建立良好的安全施工环境。
建立以项目经理为首的文明施工组织机构,健全各项文明施工管理制度。结合本工程实际情况,使各级负责人分工明确,将文明施工落实到现场责任区。制定各项相关规章制度,确保文明施工现场管理有章地组织施工生产,形成施工人员个个争当劳动模范标兵,保证现场施工紧张有秩序地进行。
加强各施工队伍之间的密切配合,减小不协调和矛盾的产生。加强法律、法规和治安方面的宣传教育,制定切实可行的预防措施,定期对全体职工开展相关知识的学习,防止员工发生违法、违规、违禁和妨碍治安的行为。
2)、文明施工保证措施
在作业队伍进场前,先对职工进行宣传、教育,在施工过程中协调好与当地居民、当地政府的关系。加强对施工人员的文明施工宣传,加强教育,统一思想,使广大干部职工认识到文明施工是企业形象、队伍素质的反映,是安全生产的保证,增强现场管理和全体员工文明施工的自觉性。
健全各项文明施工管理制度,如岗位责任制、经济责任制、奖罚制度、会议制度、专业管理制度、检查制度、资料管理制度等。
明确各级领导及有关职能部门和个人的文明施工责任和义务,从思想上、行动上、管理上、计划上和技术上重视起来,切实提高现场文明施工的质量和水平。
加强对施工现场不断地进行整理、整顿、清扫、清洁和保养,有效地实现文明施工。
按照工程特点,加强现场文明施工的综合管理,减少现场施工对周围环境的干扰和影响。
加强检查监督,从严要求,持之以恒,使文明施工管理真正抓出成效。项目经理组织相关人员对文明施工现场实行定期和不定期检查,每月组织一次专项检查,对照评分,严格奖惩,交流经验,查纠不足。
合理布置场地:各项设施必须符合规定标准,做到场地整洁、道路平顺、排水畅通、标志醒目、生产环境达到标准作业要求。
现场工程概况、、安全记录牌、事故记录牌和施工总平面图等要设置齐全,规格统一,内容完善,设置醒目。
及时调整设备、机具和材料的位置,保证摆放整齐,保持工作面宽敞,提供良好的工作环境。施工现场垃圾杂物集中堆放,及时处理。施工废水严禁任意排放,必须严格按照当地环保规定和招标、设计文件要求经处理达标后排放。
施工现场整齐清洁,施工过程坚持工完场清。
按照业主及主管部门的指示要求,认真听取驻地监理工程师的意见,搞好安全生产和文明施工,争创“安全文明样板工地”。
2. 环境保护措施
1)、建立环境保护体系,强化施工环保管理
项目经理部成立环保领导小组,项目经理担任组长,项目副经理主抓环保工作,环境保护工程师结合工程实际,制定环保规章、实施细则、检查、指导在规划的区域内进行。修建的施工便道,要结合乡镇今后使用,选择线路。弃渣场必须保证不发生泥石流情况,创造绿化条件。工区环保工作。工区建立相应的组织和配备有环保专业知识人员负责具体环保业务,做到环保大事有人抓,保护环境众人爱。
2)、实行环保工作责任制
项目经理对施工环保、水土保持工作负全面责任,监督、检查各部门环保工作、环保措施执行情况,定期进行评比、推动环保工作。
专职环保工程师负责具体的施工环保措施的制订、监督落实,及时上报环保工作动态,根据环保相关法规、大力抓好工地宣传教育,
发动全体职工从我做起,消灭污染源头。
各工区负责执行各项环保措施,检查工班环保工作是否到位,是否满足环保措施要求,确保环保工作不流于形式。
3)、环保工作与经济效益奖金挂钩,奖优罚劣
工程开工前,同项目经理部签订环保合同,并缴纳环境保护保证金,工程结束后达到要求的予以返还,达不到时扣减,定期进行检查评比,奖优罚劣。
4)、加强环保、水保工作宣传,提高环保意识
深入开展广泛宣传教育工作,编写环保宣传教育资料,充分利用工地宣传形式,宣传国家和各级政府关于环保工作的方针政策、法律法规,环保工作的重大意义,切实做好施工过程中环保和生态保护、水土保持工作。