屋主是一位不擅言谈的90后科研海归,回国后他希望可以在父母的住宅区附近购置一套小户型,既方便照顾父母,又能享受自由生活。酷爱做饭的他,给厨房来了个惊喜大改造!
改造改造,买个房子总是缺不了众多改造!今天,西瓜推的这篇就是超实用的一个二手房改造案例。不是说改造后美的有多惊天动地,而是它把鸡肋的户型改的更通透,舒服且实用,这是我们推荐你看下去的理由!
户型:1室1厅1卫
项目地址:摩玛城
风格:现代简约
项目面积:52m²(实测套内面积)
设计师:李婷
整体投入:7.5w(不含拆改、卫浴柜、马桶、花洒)
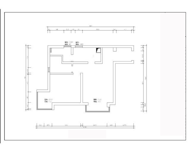
改造前
屋主要求:
- 房子装修风格偏简约风。
- 每一寸空间都要被利用到最大化。
- 厨房要是重点改造对象
- 希望家中多一些绿植,这样才更有生气。
- 希望卫生间可以做到干湿分离。

▲原始户型图
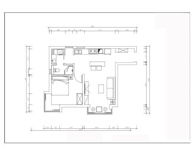
改造后
户型改造重点:
- 客厅光线问题被合理的拆改解决。
- 厨房空间过于局限,将原本封闭式厨房改成了开放式厨房。
- 小储物室被改造成卫生间。

▲平面结构图
客厅
改造前:
▼客厅光线差,家居风格老气。阳台是全玻璃的落地式,但由于一层铁栏杆遮挡,通透性差,压迫感强。地面是老式的地板,防水效果差,使用几年就开始出现脱皮翘边的现象。

改造后:
▼拆去铁栏杆还阳台一份干净与清爽。老式的地板被换成30cmx30cm的防水瓷砖,与灰色布艺转角沙发相互映衬。
沙发背景墙的设计,素材是由屋主提供的(自己与父母的一些照片),相框+小饰品的简洁样式,使客厅看起来十分惬意与舒适。餐厅就设计在沙发旁,原木色餐桌清新自然,客餐厅的开放布局,使室内看起来宽敞明亮。

改造前:
▼原背景墙未做任何装饰,电视柜的款式单一,不具特色。

改造后:
▼摒弃了原有的单一电视柜,更换成组合式的样式。因为室内空间较小,组合式电视柜便于书籍、电视盒、路由器的存放。背景墙定制了置物架,再搭配几株绿植,房子的颜值蹭蹭提升了好几个度。

厨房
墙体改造前:
▼一堵石墙的阻隔令厨房变成背阴处,厨房空间狭小,采光不足。

墙体改造后:
▼设计师砸掉了厨房外的整面墙和与生活阳台相隔的墙,增加了空间。为了营造空间层次感,地砖以颜色作为空间划分。(黑色长条砖纹的位置,就是被砸掉的厨房墙的位置)
如何让家变得更有个性?有逼格?改造一面墙就可以!

墙面改造前:
▼墙面上都是油渍,台面暗沉。

改造后:
▼厨房的设计还是沿用了一字形设计,墙面改铺了光滑易擦拭的亮面瓷砖,亚力克材质的柜体,明亮易打理。外露的水管也被隐藏于墙内,厨房变得实用又整洁。

卧室
▼卧室为了保护屋主的隐私,未进行拍摄。不过据西瓜妹了解,卧室基本保留了原状,只是更换了一张床。

盥洗室区域
户型改造前:
▼空间划分分明,且墙体太多,户型曲折,空间利用上容易有死角。

改造后:
▼原来的生活阳台被改造成了洗手台和洗衣房,卫生间被单独隔成条状,两个空间的中间位置纳入了日常洗手台。

生活阳台
改造前:
▼生活阳台空间小,利用率不高。

改造后:
▼巧克力色的墙砖配以温润木质柜体简约又时尚,洗衣机也有了自己的位置。

原卫生间
改造前:
▼卫生间在卧室与生活阳台的中间处,设施简陋,洗衣机无处放置。

改造后:
▼原来的卫生间增加了挡墙,做厕位和与淋浴区,并进行了干湿分离,使用更方便。


(图片来源于网络,如有侵权,请联系删除。)