案例说明:地中海偏田园的效果展示,分别对客厅、走廊、餐厅,做了详细的三维色彩展示,表现了顶部的造型、墙面色彩、以及地面的铺贴效果。
▼ 溪景桂园118平三室两厅田园风格装修效果图

▲ 溪景桂园118平三室两厅田园风格装修效果图--沙发墙,白色混油护墙板、蓝色的壁纸效果表现出了海风一样的感觉

▲ 郑州溪景桂园118平三室两厅田园风格装修效果图--餐厅,简单明快的餐厅效果,呼应了地中海风格的效果

▲ 溪景桂园118平3室2厅田园风格装修效果图--门厅,弧形的顶面造型与风格的多变性完美的对应

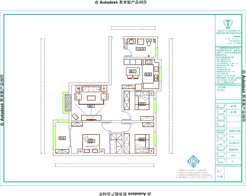
▲ 溪景桂园118平3室2厅田园风格样板间装修户型图

▲ 溪景桂园118平三室两厅田园风格装修效果图--客厅
▼▼▼设计师服务河南全省地区
推荐阅读:郑州开元小区 160平方 新中式 装修案例
▼▼▼设计师服务全省地区
如果你正打算装修,添加设计师微信:13838114119(长按可复制)
了解更多装修攻略和案例设计可关注微信公众号:zzfwzj(长按可复制)