设计师成勇君——创视界空间装饰设计总监(此作品分两篇文章详细解析设计过程,第一篇为平面功能设计,第二篇为风格设计)
一套完整的别墅作品是怎样从平面功能布局设计-风格设计-硬装设计-软装配饰设计-完美落地实施。
作为一个从业21年的室内设计师,非常想把这些年在设计方面的收获和经验分享给大家,一个是分享给准备要装修的别墅业主,一个是分享给刚入行的年轻设计师,希望大家通过我的分享有所收获。

创视界空间装饰设计总监及创始人
今天给大家带来一个别墅设计案例的分享,和大家交流一下别墅设计的重点,总结了两部分的重点,一:根据业主的需求调整结构布局,做出适合业主 的功能设计。二:动线的梳理,1,进出房子的动线。2,家庭成员日常活动的动线(怎么照顾每一个家庭成员在房子里的活动情况做到即有独立空间又有舒适性)。
先来看一下这个业主的背景和需求:共三代人居住,两个70岁左右的老人、夫妻二人和一个7岁男孩子,有可能会再要一个小孩,常住保姆一个。男女业主喜欢品酒,待客,需要主卧室、儿童房、老人房、客房、书房、保姆间、年轻人活动空间,具备试听、会客、用简餐的功能。

(一层原始户型图)
一层原始结构中,打开入户门后对着的是一扇窗户,进深太小。而别墅的门厅体量需要足够的进深来体现空间的仪式感,并且这里缺少储物空间,这个入户门是老人及客人经常出入的空间,所以要必备鞋柜衣帽柜。车库进入房间的区域,这是业主回家及出门最重要的一条动线,也是缺少储物空间的,往北的餐厅面积太大,厨房的面积只有7.8个平方,作为一个别墅的厨房还是小了些。

(二层原始户型图)
二层原始结构一上楼梯的公共空间过于狭窄,西边的主卧室面积过于太大,不利于休息,并且开门见床作为别墅来讲品质不够,应该设计一个玄关功能,同时作为别墅来讲主卧衣帽间是必备空间。
主卫生间后期要进行功能的划分,做到干湿分离,加入舒适性配置的浴缸,梳妆台作为方便女业主使用也是必备的需求。

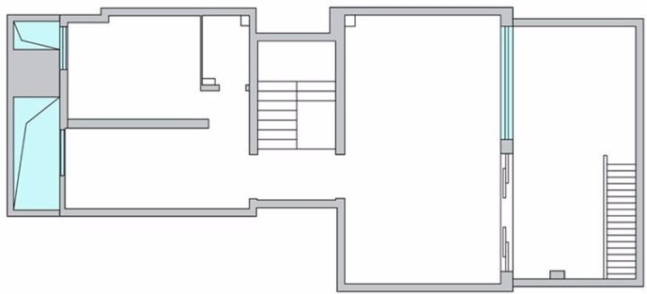
(B1的原始结构图)
B1主要问题就是楼梯西侧空间太开放,划分不够精细,楼梯东侧由于有下沉式的庭院所以采光较好,B1基本无其他问题。

(一层新的功能布局图)
一层经过重新的规划后,把一部分室外空间归到室内,加大了玄关的进深,使得玄关更加有仪式感和装饰性,同时进门左手设置了到顶的衣帽柜,右边设置了可以坐下来换鞋的榻,解决了老人的方便性。车库门进入室内设置了一个独立的衣帽间,考虑到此处是男女主人及家人进出最主要的通道,所以要做到空间利用的极致,鞋柜及衣柜要考虑到至少4人的使用空间,既可能把鞋子及衣服有足够的空间放置,同时考虑到手包及小件物品的储放。一层的客厅用来接待短时间停留的客人和老人的起居来使用,由于老人最好分房睡这样互不影响,所以一层的两个卧室都给老人使用,这样一层的空间就主要是老人活动了,老人的生活习惯和其他家人不同,这样不影响其他家庭成员。
把原来的中厨加大,增加了实用性,原有餐厅区空间过大,设置了西厨空间,西厨空间以无烟电器使用为主,导台可以吃早餐,也可以用作操作台,导台上设置了水池,洗水果及茶具等都不用再去中厨了,这样既方便又实用。

(二层新的户型图)
由于一楼为了把玄关加大,把室外的空间变成室内加上顶盖楼板后,二楼也多出了和一楼一样的空间,自然改变了一上楼局促的问题,同时为了解决二楼居住者的方便性在这个区域加入了水吧及起居室,使二楼的空间更加完整了,还多出一块休息区。
楼梯西侧的主卧空间划分出玄关区解决了隐私问题,加入了衣帽间解决了实用性,睡眠区分成摆放沙发的交流空间和床区,床尾的沙发除了可以坐下来喝茶聊天以外,还解决了睡前放置衣服的功能。
主卫生间首先把如厕空间和淋浴空间封闭起来和其他空间分开,这样做到了真正的干湿分离,解决了瓷砖或石材的呆板问题,淋浴房里满贴瓷砖其他空间可以局部贴,配以丰富的壁纸或有色彩的涂料等等。
今天就讲到这里,下篇文章接着分享风格设计,色彩搭配,软装配饰,实景照片分享,期待下次!!!
创视界空间装饰三大优势
1.勇于担责 从施工开始到房屋交付的过程中出现任何设计问题,都由设计师替客户全权负责协调解决。
2.缩短工期 施工前,设计方案、施工方案和产品采购全部完成。施工过程中,不需要再与业主探讨任何设计问题,也不用因等待产品的到位而拖延施工进度。
3.完美落地 由于设计方案的完善、施工方案的严谨、配饰产品、主材产品的采购前置,从而保证设计的完美落地。
行业内唯一有设计标准服务标准的企业
设计标准
- 硬装设计, 全套施工图设计
- 产品配搭,与风格配套的产品搭配设计
- 软装配饰,完美软装配饰方案
服务标准
1,硬装施工 工地跟踪服务 节点控制
2,软装配饰 协同客户将方案落地执
行业唯一设定了设计服务监督体系的企业
设计师在服务过程中所有节点控制必须参与,并由业主及相关施工负责任人签字确认,设计师拍照上传到项目群,客服人员纪录在案,用作项目完工给设计师评定分数使用。