判断一栋房屋是否宜居,除了区位,环境这些大的因素,更要注意项目规划中的一些小细节。隆和·大溪谷从您的点滴需求出发,带您发现生活中的小确幸。

低密度大楼间距
五期小区整体定位为低密度产品,由联排别墅和5栋小高层组成。且楼座分布位置比较考究,楼间距大的同时还保证了楼与楼之间的距离和视野。小区中心做了中心景观轴,居住效果好。低密度的楼间设计,可以让阳光洒满您房间的每个角落。

一梯一户,私密独立
五期高层一共18层,120平两厅两户,户数少一个单元仅36户,中间用防火门隔开,跟我们2.2期155-170平的产品一样,做到了一梯一户的设计,居住起来私密性和独立性非常强,两梯设计,也不用担心以后电梯维护时不能做电梯的烦恼。
两梯三户,舒适不拥挤
105和80平的都是两梯三户的设计,一个单元下来只有54户,而且是都一个单元独立楼体,与现在动不动33层两梯四户多个单元的产品讲,居住舒适感更好,上下班高峰时间也不会等待电梯时间较长。
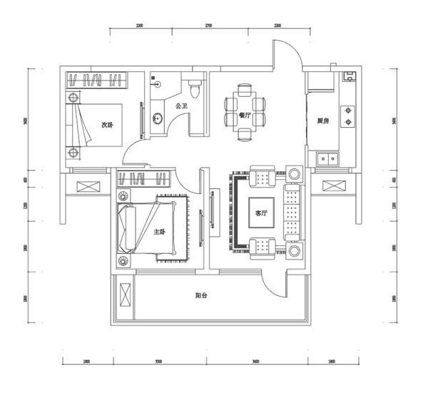
三房朝南,尽享阳光美景

户型方正通透,三房朝南。更有卧室全飘窗设计和连通式阔绰景观阳台,每间都是观景房,邂逅山间每一缕阳光。

社区内部组团设计 交通出行便利
五期地块小区的大门靠近高山路主干道,高山路拓宽之后,从开城路拐进来行驶3公里直接右转即可进入小区,方便出行。高层部分有单独的出入口,抬地设计,且整个地势在小区的最高处,相当于大溪谷的至高点,高区的房子甚至都有一览众山小的感觉。5栋楼相当于独立的组团,除了5号楼都是每栋楼一个单元的设计,户数相对较少,从景观和居住密度上讲 舒适度更高。
5期高层共5栋288套房源,户型包含88/108/120平,装修交付,可满足刚需刚改的基本需求。一楼送院子,顶楼送露台,目前,样板间已经开放。
咨询电话:4008185005 - 40604
