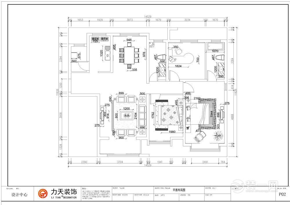
户型分析
该户型为奥莱城小高层标准层C户型3室2厅2卫1厨 138.00㎡。在入户过道的右手边是客厅,采光较好,空间比较完整。入门的左边是一个厨房,空间较小,有窗户,具备采光条件。厨房的左边是个一个多功能空间,空间较小,有窗户,具有采光条件,可做一个洗衣房。客厅上方是餐厅,处于过道左手边,有个阳台,采光条件良好。主卧室位于户型的右下角,空间较大,采光较好。主卧室上面是卫生间,有窗户,具备采光条件。卫生间左边是个书房,采光条件良好,书房的左边又是个卫生间,也具备采光条件。主卧室左边是次卧室,有窗户,采光条件良好。此户型总体布局比较完整,南北通透,公共空间充足,采光条件比较不错,空气流通条件也是比较不错,整体感觉饱满却不臃肿,很是不错。
设计说明
本方案采用了新中式风格。在整体空间上,主要采用硬朗、简洁的新中式直线条,空间具有层次感,既使得中式家具古典质朴的内涵显现,又符合现代人追求的时尚感、实用性。中国风并非完全意义上的复古明清,而是通过中式风格的特征,表达对清雅、含蓄、端庄、风华的东方式精神界的追求。黄色的灯光让人感觉温暖无比,大大的落地窗让主人随时看见外面的风景,时尚与古典相结合,搭配出不一样的风景,营造出移步换景的装饰效果,给空间带来了丰富的视觉效果。可以说,无论现在的“西风”如何的劲吹,舒缓的意境始终是东方人特有的情怀。因此,常常成就这种诗意。这样,躺着舒服的沙发上,任千年的故事顺指间流淌。

客厅

餐厅

卧室

卧室

平面图
想看更多美美案例的客官们可以复制链接http://tj.zhuangyi.com/xgt/查看更多
或者加小编QQ:706970789