项目名称:苏南万科常熟尚湖
业主单位:苏州万科
项目地点:常熟尚湖
甲方管控团队:宋磊、孟凡军、曹成
景观设计:上海亦构景观设计事务所
展示区规模:3000㎡
摄影:Shrimp Studio
【前言】
「七溪流水皆通海,十里青山半入城」——沈玄
享誉世界的尚湖,风光旖旎,碧湖掩映青山,可谓是湖光山色,如入仙境。所谓尚湖,是因姜尚在此垂钓,遂改名为尚湖。






【区位分析】
常熟市位于江苏东南部,该市处于长江三角洲经济发达地区,扼长江黄金水道喉咙,具有得天独厚的区位优势。而尚湖便处于此江南名城,东接上海,南依苏州,西邻无锡,北靠长江,地理优越,环境优美。
本项目距离常熟市市中心车行十分钟,距苏州北站车程40分钟,距硕南国际机场车程50分钟,距虹桥机场车程80分钟。
项目东侧临近北三环路,南面近虞东路,规划区北部是城市新商业中心,南部是城市环境品质较为高档的生活居住片区,西部为城市体育中心、省常熟中学、常熟市中学,东部为城市建设用地边缘,片区前景可观。

此项目整体来看,以行云流水的线条描绘出大致框架,整齐且有条理。

主入口以柔和的米黄色作为基调的景观门头,用大量的方形作为它的建筑结构,金属格栅装饰其造型,简约却不简单。路面以经典的黑白灰三色调和在一起,丰富其层次。



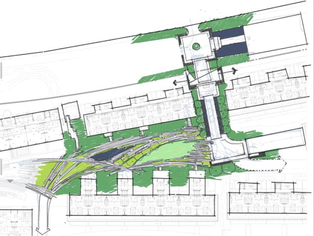
【区域导向图】
在以人为本的基础上,全区具体细化为四大功能区,分别是入口景观区、中心活动区、宅间花园区、户外洽谈区。

主入口景观是重要的景观点,彰显社区大方大气的精神风貌。这儿的特色景墙采用了和门头相同色调的米黄色,而用琉璃砖增添其造型。景墙立于特色水景中,和星星点点的泉涌相互交融。曲折路径错开特色水景,指引人们前往中心活动区。





【中心活动区】
在此区域右方使用了与灌木相搭配的条形水景承当连接作用。而最前端的景观构筑物用简约的白色圆形钢构成,清晰明了的建筑造型使该区景观空间丰富而美妙。中心活动区作为主要的休闲活动区域,轴线干净流畅、贯穿始终,打通场地空间的脉络。











【宅间花园区】
在此区域中考虑“人与自然”之间的和谐关系,坚持以人为本的设计原则,大处着眼,整体设计,打造舒适美观的生活环境,提高居民生活质量。




【户外洽谈区】
简约的沙发与矮桌摆件、组合花钵、景墙泉涌构成了现代简约式的户外洽谈空间,亦可满足居民下棋喝茶等闲适健康的生活需求。




人的生活离不开环境,居住环境是人类最为重要的生存空间。打造开合有致,疏密有序的景观空间是我们所追求的,整个项目秉承着“人与自然”的核心思想,创造具有尚湖独有的气息。
【甲方说】
常熟万科璞越雅筑项目最大难点是,如何在众多周围竞品中脱颖而出,如何推陈出新,在小空间中做大创新,设计公司经过多轮推演,实现了用现代设计语言,不同的组合元素,在小场地内营造递进空间,创新的设计细节,极大丰富了样板区的空间层次。
项目团队在营造过程中不断推敲样板细节,为实现最佳效果,投入了大量精力,感谢设计团队和项目团队的辛苦付出!
——宋磊 苏南万科
宅间有着不同的风格,线条拥有自己的方向 。用一个引子,作为线索,剩下的留给惯性。

-end-