
项目名称:北京顺义庞家自宅
图纸编号:441
建筑面积:267.2㎡
建筑尺寸:14.8X14米
基地面积:416㎡
占地面积:117.47
建筑结构:砖混结构
主体造价:33万(不包含室内装修费用)
项目概况
庞先生经常外出,很少在家住,看多了外面的农村别墅,想盖一个带一些四合院的中式元素,二层的小楼就这样诞生了出来。

总平面示意图
为了保证房屋南侧的采光,我们将院落布置在基地的南侧,让建筑与邻居住房拉开距离,获取更多的采光,另外将建筑设计为接近U字型的布局,预留了一个小庭院,这样使得北端的卧室也能有南向采光。
图纸设计

一层平面图
由于场地东西向长14米,所以将主要功能设置在东西两侧的条件充裕,而为了让主要空间能得到更多的采光,所以我们将对采光要求不高的门厅,走廊等设置在中部。另外在一层设计了双车位的车库,巧妙设置了步入内庭院照料植物的入口,而这个内庭院的植物不仅起到一定的遮挡隐私作用,而且业主备餐或者洗漱中还能欣赏内院景色。

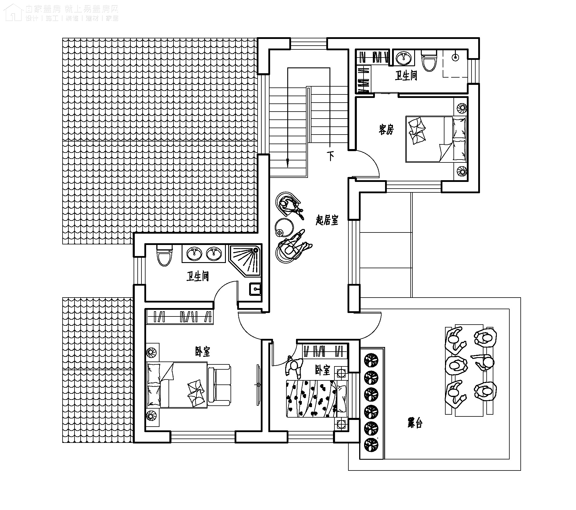
二层平面图
二层的布置与一层相对位,这样在结构层面上会节约成本,设备安装也比较便利,我们将一层客卫上空设计为二层卧室内的卫生间,这样更加方便使用。而二层南侧中间的房屋为多功能用房,布置可隐藏式床铺,平日更多是以书房形式布置。
最后我们将一层客厅上空位置留作为屋顶露台,这个室外露台亦可以感受到充分的南向采光,满足休闲度假别墅的使用需求。
造型设计

结合经典的四合院的元素让建筑不仅展现出了现代建筑的灵动,还保留了传统建筑的风韵。

建筑立面用色以灰色,白色,木色为主,保留了传统建筑较为素雅的整体感官。

屋顶选用北京四合院常用的卷棚顶,覆以灰瓦,外墙面施以白色真石漆,窗框和门等使用木色的暖色调。

整个建筑因为是局部二层,所以显得轻盈灵活,建筑关系协调美观。

入口处我们借鉴了日式建筑精细的布局形式,并刻上门牌“春风习习”

圆形窗洞以及宝瓶门都是传统中式园林中常见的设计元素,我们也将此与整个建筑有机的结合在了一起。

北侧庭院较小,主要被用作茶室的景观面和一层主卧圆窗的对景。

西立面

东立面

南立面

北立面