直线式灯光流转的英伦式小屋


我们试图将一个狭长而黑暗潮湿的维多利亚式乡村小屋转变成一个阳光满溢,空间流畅而使人愉悦的小家,同时又保留了这间房子原来的特色。这个项目的与众不同之处在于,建筑师不仅是建造者还是工匠。这赋予了建筑师们亲手将图纸变成建筑,这一实践自己野心和创意的机会。这个项目的另一特别之处在于,粗糙简陋的立面和内部陈设之间有趣的反差。就如同一层伪装的薄纱一样,这一小屋的前部完全不向外透露它内部的内容,隐秘而低调。

简述:
这是我们工作室的一个投资项目,因此我们设立了假想:如何让一对职业夫妇在一间60平米的,狭小昏暗的前维多利亚式小屋内住的舒服?此外,由于预算的限制,这间小屋无法被扩建,所以所有的设计难题都要在这个有限的空间里被一一解决。

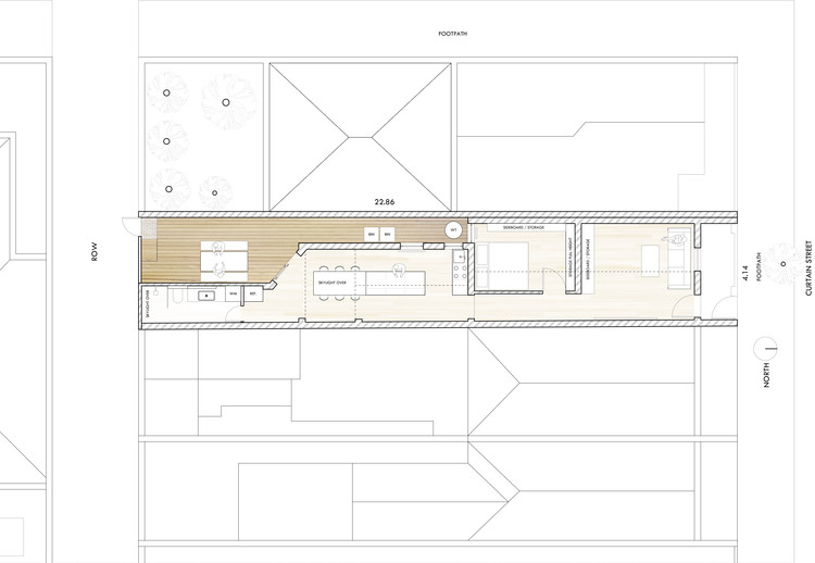
平面:
我们觉得一对夫妇也许只需要一间专用的卧室,所以前部的客厅可以与走廊相通,从而演变成一个灵活可变的开放型居住空间。当偶尔有客人留宿的时候,一个小门帘可以拉起来营造一个供客人休息的临时空房间。

Floor Plan
厨房被重新布局,以营造一个开阔的空间来使人们在屋子里的穿行变得更加容易,还能鼓励人们一起参与到烹饪里来。就餐区域从厨房区域延伸出去,从实现了与庭院之间的无缝连接。

剖面:
尽管我们无法去扩大房屋的占地面积,我们想到的是也许可以通过增加房屋的体量来营造一种空间感。我们通过抬高天花板与原来的人字木屋顶相齐,并把LED灯条放在新暴露的吊顶龙骨上,从而可以实现对于整个屋子的间接照明。此外,你可以在厨房的砖墙上看见一个小小的深槽,我们在那里打了一个从上到下的洞来连接前后,同时为阁楼提供了入口。

当围绕整个卧室周边的LED灯光被打开的时候,你就可以真真切切地感受到这一贯穿前后的连接。

灯光
这个项目里没有下射式筒灯,整个屋子被节能式LED灯条间接地点亮。柔和的灯光从天花板倾斜而下,反射在地板上,造成一种淡淡的光晕。
当然在厨房和洗手间里,工作灯是必需的。我们订制了直线式吊灯来与整个屋子的直线性设计要素相呼应。在卧室里,我将这个吊灯翻转过来,来营造一种向上的光,柔和地点亮了天花板,如同微光潜入夜。在洗手间也有多种灯光的选择。

在白天的时候,自然光照在后墙上,在淋雨区域之上,天光透过后墙的缝隙照射进来。天黑之后,除了定制的吊灯,通过安在其顶部边缘的LED灯条,淋浴区的屏障也能被点亮,为午夜的洗手间提供了刚刚好的亮度。

白色的半透明式多单元树脂被安装在整个房屋的剖面,以覆盖用餐区域,并在周围邻居亮灯之后,为房屋的后半部分空间提供足够的自然光。
