
01
年已经过完,年前联系的置业顾问们又开始了“电话骚扰”。新的一年,买房这件事仍然要迅速的提上日程,计划着如何寻找那个最适合自己的房子。随着房价的上涨,作为一名刚需才发现,攒钱买房是不现实的,渴望自己的收入能匹配上的房价更难。手里的30万在郑州能选择的房源越来越少,可以选择的区域越来越小。
二少统计了一下目前郑州市区(不包含周边县市以及港区,港区我们下次会做个单独的盘点)在售的住宅项目,发现首付在30万以内的在售项目仅剩8个了。下面二少分别对其进行分析对比,大家可以根据自身需求选择。
02

惠济区
和昌林与城

装修情况:毛坯
容积率:1.99
绿化率:35.00%
车位:1:1
物业费:2.8元/月/㎡
物业:河南新和昌物业服务有限公司
开发商:河南惠昌城乡建设发展有限公司
点评:1、二期在一期的北边,同样是高低配,只不过这次是太师椅布局。二期共规划了9栋小高层和10栋洋房,相比一期的规划缺点是洋房的采光和隐私较差。
2、交通方面后期社区周边规划有3号线,自驾的话有天河路与京广快速路相连,还有大河路通达全城。
3、周边现成配套较差,作为一个大体量,以城命名的楼盘大多是依靠自身配套。内部规划有学校、医院、公园等。
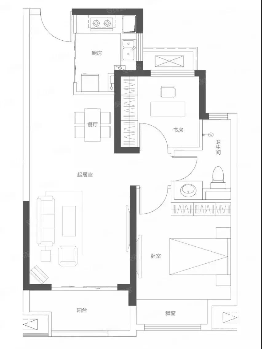
4、户型方面,在售的这个最小面积83平的户型,可以说是个标准的手枪户型,边户可以保证客厅的采光。二少看过样板间,感觉客厅的空间有点紧凑,虽说客厅的阳台是飘窗设计,面积赠送的更多,但是整个空间的布局还是非常别扭。

5、综合来说现在项目为了提高销售,原来的精装改为毛坯,价格也下降了1000左右,能分期,性价比高,资金不充足又想在北区置业的客户可以关注。
绿地璀璨天城

装修情况:毛坯
容积率:3.90
绿化率:30.00%
车位:1:1
物业费:2.35元/㎡/月
物业:南都物业
开发商:绿地集团
点评:1、绿地璀璨天城有小户型的这两栋楼在一期地块的最北边,其中16#楼在去年开盘之后基本清盘,剩下的15#楼目前是平销期。很多人对于这两栋楼最大的担心就是,其不是绿地集团在卖,而是另外一家金融公司把这两栋楼买下来之后再进行出售的。
但是最终还是和绿地签合同,房子还是绿地盖,只不过规划是经过这家金融公司的干涉之后,成了如今的小户型,要说买了有没有风险,答案是有的,但是个人认为风险没有那么大家理解的那么大,如果手里的资金不多,又刚好想先买一套小户型过渡,个人认为可以考虑。
2、交通的话后期从江山路上高架比较方便,另外地铁3号线的沙门站距离项目大概1公里左右。西边是城际铁路,会有一定噪音影响。
3、项目西边是江山路第一小学,内部建有一所幼儿园;北边有郑大一附院惠济院区;周边距离宜家商场较近,往东过了江山路成熟小区较多,生活配套相对成熟一些。
4、以下分别是56平和57平的户型图,大家可以欣赏下:

56平

57平
5、项目在售这两栋楼的位置不是很好,最主要是一家金融公司代售,存在一定风险。优势是周边有地铁、宜家商场,后期出租方便。如果买的话,看好合同内容,找专业的律师咨询一下。
美景麟起城

装修情况:毛坯
容积率:3.70
绿化率:30.00%
车位:1:1
物业费:2.48 元/㎡/月
物业:武汉市万科物业服务有限公司郑州分公司
开发商:郑州美景置业有限责任公司
点评:1、在售的三号院位于万科美景广场的南边,周边是金水湾的安置房。两栋楼,配套有两层的商业。
2、交通方面一般,距离2号线延长线直线距离1.3公里左右,距离较远。东边是文化路后期规划有地铁7号线。
3、配套方面北边有惠济区实验中学和万科美景广场,南边虽说在楼上看不到河景,但是下楼之后走两步就可到达。
4、以下是68平的三种户型



5、三号院的这栋楼小户型较多,也就意味着居住的人数也会更多,整体居住舒适度也就稍差一些。但好在临河,并且产品有保障,周边有大学、商场等,投资或者自住均可考虑。
旭瑞和昌花漾里

装修情况:毛坯
容积率:3.46
绿化率:30.01%
车位:1:1
物业费:高层2.5元/月/平
物业:河南新和昌物业服务有限公司
开发商:河南豫棉联盛置业有限责任公司
点评:1、项目周边交通咋一看挺便利的,距离3号线地铁兴隆铺路站几百米的距离。但是因为周边道路比较狭窄,开车出行的话后期出门可能会比较麻烦。
2、配套方面因为项目位于三环内,周边多是成熟小区,生活配套成熟,居住氛围浓厚。
3、户型如图

39平

46平

48平

49平
4、花漾里的小户型大多集中在5#楼上,居住密度大,采光差,居住舒适度差。大家在购买的时候需要考虑好这些不利因素,并且西边还有一条铁路,有一定噪音影响。整体来说位置较好,但是产品较差,性价比低,一万五的价格还不如选择更靠北的美景麟起城呢。
中原区
汇泉西悦城

装修情况:毛坯
容积率:3.10
绿化率:30.00%
车位:3143
总户数:2673
物业费:1.8元/㎡/月
物业:卓裕物业管理公司
开发商:郑州汇泉置业有限公司
点评:1、在建的6号线最近站点距离项目应该在1公里左右吧,这个距离还可以,但是实际到地铁口的话可能要经过快速路。
2、项目在陇海快速路、西四环以及郑西客运线合围区域内,到时候社区外围的楼栋势必会受到噪音和粉尘的污染,这一点大家在选择的时候要注意下。
3、配套方面项目北边有金马凯旋家居CBD,东北方向有郑州植物园,当然到了植物园那么距离常西湖新区的“四大中心”也不远了。
项目自身规划有57万方商业,同时规划有8所幼儿园,3所小学,2所初中,并且还有互助路小学加持,这些对刚需来说绝对是巨大的吸引力。
4、户型图如下:

67平

75平
5、该项目价格不高,位置虽说不是很好但是临近常西湖新区,升值和发展潜力还是可期的。再加上大体量,配套方面基本上都自给自足了。如果你是刚需并且手里钱又不多,只求在郑州落脚的话那么可以考虑下。
保利心语

装修情况:毛坯
容积率:7.17
绿化率:22.64%
车位:1:0.6
物业费:2.5元/㎡/月
物业:保利物业发展股份有限公司郑州分公司
开发商:郑州煜盛房地产开发有限公司
点评:1、要说位置,保利心语卖1.3万的价格绝对不贵,三环内,门口是10号线地铁口,周边有万达广场。但是再一看容积率,基本上心就凉了半截。
2、户型图如下

53平

3、整体来说项目的品牌是个优势,位置也好,周边配套也好,交通便利。但是容积率真的有点超出了这些优点的总和,个人建议,投资的话可以考虑,后期出租也容易。
高新区
华润悦景湾

装修情况:毛坯
容积率:2.99
绿化率:30.00%
车位:1:1
物业费:2.65元/㎡/月
物业:华润置地(北京)物业管理有限责任公司郑州分公司
开发商:郑州天地康联置业有限公司
点评:1、项目占地面积约42亩,共规划了7栋高层,其中最大楼间距达到了66.7米,最短的也接近50米。

S150路公交路线
2、交通方面华润悦景湾的南边距离规划中的9号线较近,周边最近的公交车是S150,如果买这里短期内最好的交通方式就是自驾了,周边有西四环、科学大道等,通达市区还是比较方便的。
3、教育方面项目西侧规划有一个小学,东侧是郑州中学高中部,虽然距离较近但是上学仍然需要考试。商业方面社区北边大门处配套有一个3层的商业楼,社区内部无底商。环境方面项目东侧过了红松路就是湖心岛,后期里面规划有体育馆、游泳馆、图书馆、剧场、服务中心"五馆合一"的建筑综合体。
4、78平户型如图:

5、整体来说华润悦景湾的质量有保障,没有高低配,居住舒适度较高。但是社区不大,配套方面也不是很突出。目前价格相比之前应该又有所降低,注重产品质量和性价比的客户可以关注下。
二七区
融侨悦澜庭

装修情况:毛坯
容积率:2.99
绿化率:35.50%
车位:487
物业费:高层2.9元/㎡/月
物业:郑州融侨物业管理有限公司
开发商:郑州融坚置业有限公司
点评:1、项目总占地面积125亩,共分三期开发,分别是融侨悦澜庭南院、9万方融侨悠乐商业中心、融侨悦澜庭北院。
2、融侨悦澜庭周边现有配套欠缺,好在自身内部配置沿街底商或独栋底商,还有一个9万方的融侨悠乐商业中心。

3、交通方面规划的地铁9号线开通也是遥遥无期,目前能使用的只有快速公交B60可以直达火车站。
4、两个67平的户型图如下


5、项目缺点很很明显,周边现成配套欠缺,暂时没有地铁;但好在门口有公交,自身配套商业中心,适合南区置业的刚需客户。
03
现在市面上的小户型已经越来越少,同时郑州的房价也在不断的上涨,所以郑州市区首付30万以内的项目也会越来越少。
这次盘点的8个项目,个人认为刚需可以首先考虑和昌林与城、华润悦景湾和美景麟起城,不管怎么说北边更适合居住,环境好。林与城的缺点是现有配套差,但是后期规划的有地铁。美景麟起城的小户型估计剩余不多,大家可以到售楼部问问。悦景湾的位置稍微偏了一些,周边生活配套差,交通不方便,但是产品质量有保障。同时周边还有大学、天健湖等,后期人气上来,居住还是不错的。
另外汇泉西悦城也不错,刚需也可以作为重点考虑对象,项目的维权咱们暂且不提,谁叫它便宜呢?如果旁边的铁路噪音能忍,那么个人认为该项目还是不错的,有现成的地铁,四大中心旁,后期升值更有保障;融侨悦澜庭适合更倾向南边的刚需客户,缺点是暂时没有地铁,但是有公交车到门口。另外周边现成配套较差,但是内部配有商业中心。保利心语大家可以作为投资,位置好,大品牌,有地铁、商业,便于后期出租。