
随着农村生活越来越富裕,越来越多的人喜欢在乡村建造别墅,空间大,有宅院,不仅居住舒适,周边环境也好。最重要的是可以选择私人订制式别墅,喜欢什么风格的就可以建造什么风格的。江西上饶赵总在项目前期与设计师沟通了详细的空间需求和大体思路,设计师根据场地情况,及业主的需求和喜好,将项目形式确定为这套三层美观大气独栋大别墅。
房屋基本信息
项目名称:三层农村别墅
占地尺寸:11.9m*9.9m
占地面积:123.93㎡
建筑面积:345.18㎡
建筑高度:9.6m
建筑结构:工业化装配式PC结构
参考造价:124万
这栋别墅户型方正,大坡度屋顶设计,落地挑空大客厅,白色外墙,红色屋顶,简约沉稳大气。同时即便是左右都有邻居,也不会有光线、层次的遮蔽,互不影响~

△总平面示意图
地基情况
东:空旷场地 西:空旷场地
南:空旷场地 北:空旷场地
设计说明
- 三层别墅采用中冶云墅工业化轻质装配式PC墙板及装配式PC建筑体系,建造速度快,省心省力,造型美观。
- 一层设有大客厅、餐厅、老人房、客房;二层、三层分别设有多间卧室,主次卧分明,满足一家三代人居住。
- 别墅整体设计简约时尚,以白色外墙,红色屋顶来呈现,显得干净大方。
- 此项目为精装修交付。内外墙体均采用中冶云墅厚度为140㎜轻质PC墙板,楼层采用云墅厚度为140㎜钢筋桁架叠合楼板。
- 外墙装饰采用云墅质感漆,内墙装饰均使用中冶云墅无机防火装饰板。


各层平面设计图

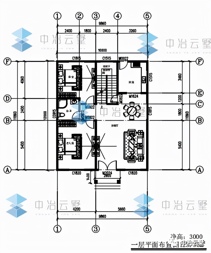
一层平面图:设有1客厅,2卧室,2卫生间,1厨房,1餐厅,1杂物间
入户即是客厅,是居民一直以来的居住传统,客厅临近大落地窗,巧妙的设计使室内宽敞明亮,通过沙发茶几的选择与摆放,拉伸了客厅的宽敞度。
厨房独立式设计,防止油烟进入室内,影响用餐以及会客。厨房外是一个宽敞的空间,能容纳多人聚集于此,平时约几个朋友打牌也可以当做娱乐室,让丰富的业余生活成为一种享受。

二层平面图:设有4卧室,2卫生间。二楼主要是卧室休息区,4个卧室和书房散落房间四周,最难得的是在这个户型设计里,每个房间,哪怕是卫生间,都至少有一个明窗,这对于进深比较深的房型来说,增加进光量、让整个房间看起来洒满阳光、窗明几净的,绝对是永久受益!

三层平面图:设有3卧室,2卫生间,1露台。三楼的格局设计与二楼大致相同,设有1露台,方便晾晒。
现在的年轻人大都不愿意跟父母住在一起生活,不爱听大人的唠叨,这样的设计便真正解决了家人的后顾之忧,可以让孩子结婚后也能跟自己住在一起,但也保留了小两口的私人空间,两全其美。
立面设计图




基础梁平面布置图

基坑放线图

选择什么样的建筑结构?
这样的三层别墅如果决定建了,很多人又会觉得貌似 工程非常浩大 ,这得多久才能建好啊,想想都要 退缩 ,还是先 收藏 了再说!其实现在盖房,您真的大可不必如此!
若放在以前,采用 传统的砖混结构 建房,这样的房子 至少需要一年左右 才能建成,而且沙子、水泥等各种 辅料 建材,包括找 工人、食宿、垃圾处理 等,哪一项不需要你操心,整个房子建完,让人憔悴的看上去老了十岁,一点儿都不夸张!

现在盖这样的三层别墅,采用 中冶云墅工业化建筑 结构,两个多月就能交付,而且所有预制件都提前在厂家定制好,到场后,工人按照编号就能能轻松完成,就像搭积木似的。
中冶云墅隶属于世界500强企业中冶集团,是工业化建筑整体解决方案提供商。 致力于传统建筑业的转型升级,采用先进技术,推进建筑产品整体向工业制成品转变,将现场施工生产转变为工业化流水线生产, 核心产品为云墅轻质装配式PC墙板及装配式PC建筑体系 ,主要应用在新农村城镇化建设、别墅、低多层住宅、低多层公建以及需快速安装的各类建筑中。 实现装配式建筑设计、生产、安装一体化,是致力于精品住宅开发、专注于打造装配式建筑的高端品牌。
“智慧美宅·中冶云墅”打破传统建造理念,采用顶级团队精心研发设计、智能化标准化工业流水线生产、央企专业团队快速安装、全生命周期管家式售后服务,为用户提供高品质、安全、环保、智能型建筑解决方案。
绝对让您 省心省力、不操心 ,甚至你远在其它城市,如果想了解建房情况,通过 视频直播 随时都能 了解建房进度 ,帮你实现 轻松建房,快速入住 !
美宅生活无限想象

△客厅

△餐厅

△厨房

△卧室

△露台
露台处可以放一套休闲的桌椅,没事就去上面喝喝茶、看看书、晒晒太阳。利用有限的空间,打造成一个全新的小世界。
这样简单惬意的生活不正是我们想要的么?