项目地址:三正瑞士半山
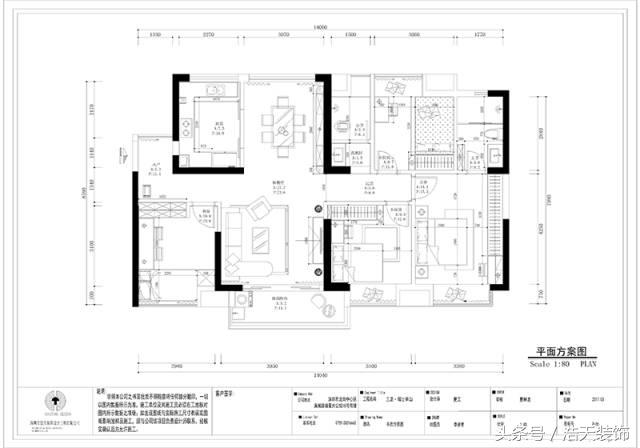
项目面积:126平方
建筑格局:四室两厅
项目风格:新中式
设计师:夏林龙
设计理念:设计改变行为,行为引导习惯,习惯改变命运
平面布置图

客厅

客厅整个空间简单整洁,使得整个结构更能体现出客厅的简单大气,而不失中式的韵味,在墙面、顶部和地面加上部分简单的造型,更加突显出了整体的一个装饰风格,整体结构形态和色彩都打破了传统中式的古老韵味,辅助以简洁的家具,令人耳目一新。
餐厅

桌椅是餐厅中最重要的元素,设计师选用了深色的太师椅,搭配方形的吊灯,使其浑然一体。
餐厅空间的装饰显得优雅、而又不失去中式原有的高贵大气,独具韵味。
主卧

新中式卧室作为现代背景下的古典演绎,通过取其神韵不摆其形的风雅意境,使得整个空间呈现出典雅又不乏时尚的特色。让我们放下身心享受生活的慢节奏~
儿童房

儿童房保持了孩童喜爱的风格,榻榻米的设计节省了卧室的空间,一大半的空间供孩子玩耍。余静赣余工也说过孩子的房间最好什么都没有,留给孩子自己创造。

▲现代简约案例欣赏
夏林龙
从业10年
高级室内设计师
深圳室内样板房杰出设计师

擅长风格:现代风格 欧式风格 新中式
成功案例:三亚唐拉雅秀酒店、招商观园别墅、天悦湾别墅、幸福里顶层复式、水榭五期楼王、星河盛世楼王
所获荣誉:
2011(深圳)室内设计文化节-优秀设计师
2012“鹏城杯”室内设计大赛优秀奖
2015 深圳圣莫丽斯李先生豪宅设计实景照片及设计理念 南海出版社《装潢世界》
【贴心家装 质造温暖】
为您量身设计,打造专属您的温馨小窝
覆盖范围 | 深圳、佛山、惠州、中山