建业森林半岛140平三室两厅简欧风格设计装修展示。设计理念:以米色的主色调,加上蓝色的沙发布艺,欧式浪漫中融入现代时尚元素,时尚、浪漫是这套的经典表现。请欣赏。
小区名称: 森林半岛
小区户型: 三室两厅两卫
装修风格: 简欧风格
小区面积: 140平方
套餐造价: 9.00万
设计师: 宋丹
装修公司: 美巢装饰(18860375285)

建业森林半岛140平三室两厅简欧风格设计装修案例——客厅装修效果图。

建业森林半岛140平三室两厅简欧风格设计装修案例——沙发背景墙。

建业森林半岛140平三室两厅简欧风格设计装修案例——餐厅效果图。

建业森林半岛140平三室两厅简欧风格设计装修案例——卧室。

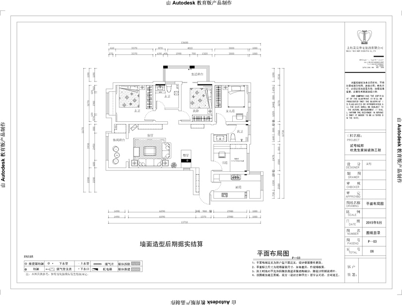
建业森林半岛140平三室两厅简欧风格设计装修案例——平面户型布局方案。

建业森林半岛140平三室两厅简欧风格设计装修案例——客厅全景。
设计师预约微信(188-6037-5285) 、 联系方式。
【5分钟速算装修报价】 编辑【小区名称+几室几厅+建筑面积、发送此号码 】
请关注微信公众号“(独木设计)”每天分享经典时尚设计案例,安静理念。