今天齐家小菜分享的案例是106㎡的两居室装修。进门就是长过道,但屋主通过巧妙设计,玄关和储物两全!
经典案例
面积:106㎡
户型:两居室
风格:简约风
亮点:空间巧妙设计,不仅解决入户无玄关问题,次卧还规划出多种功能区。

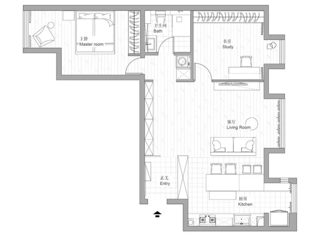
户型图

建筑面积106㎡,业主是一对小夫妻,还养着一只小柯基。根据实际需要,设计师重新进行空间设计。

根据业主的需求,空间布局改造如下:
1、 入户长过道一分为二,规划出玄关区和储物区,动线合理;
2、 拆除原厨房墙体,采用客餐厨一体化设计,空间宽敞,互动性更强;
3、 次卧设计成多功能房,既可以当休闲区,又拥有衣帽间、书房等功能。
玄关

入户门右侧配置一面直径1.5米的超大圆形镜,镜框加装感应灯,开门即亮,让入户充满仪式感。

拆除原厨房墙体,利用储物柜进行隔断。这不仅解决入户收纳需求,还让原长走廊自然规划出留尘区,保持空间的整洁。
(此处已添加小程序,请到*今条头日**客户端查看)

入户第一视角,刻意降低玄关区的地面高度,提高层次感。垭口安装长虹玻璃移门,避免狗狗乱闯搞破坏。
客厅

客厅部分的过道区,设计一整面墙的储物柜,形成强大收纳区。柜体中间配置灰色玻璃门,打破一体柜的单调,设计很有特色。

结合大横厅空间优势,拆除原有的飘窗台,直接以落地窗结构呈现。不仅最大限度引入采光,还进一步加深空间的通透性。

电视墙设计原木+艺术漆,延续简约的基调,又丰富空间的层次。同时,次卧采用隐形门,空间看起来更完整。

家里平时只有夫妻俩人,一组双人沙发就能满足日常所需。而且,小体量的家具更能凸显出空间的轻盈与灵动。
餐厨区

原厨房空间较小,采用开放式设计,释放出用餐区,还提高了空间的社交属性,方便家人互动。

餐桌和中岛连接,加大了操作的空间,还提供了强大的收纳功能。

一字型的橱柜,虽然空间不大,但动线合理,洗切煮都很方便。
卫生间

卫生间外面设计洗衣收纳区,将洗衣机嵌入其中,卫浴用品也收纳其中,保持空间的整洁。

淋浴房设计简单的干湿分离,壁挂式马桶高端大气,而且不会占用太大空间。
主卧室

主卧床头墙面用乳胶漆进行分色设计,活跃空间氛围,避免过于单调。

大面积的白色调营造出轻松舒适的氛围,特色床头灯设计,让空间变得充满时尚感。
次卧室

次卧暂时用不上,以功能间来定位,可以最大化提高空间使用率。

配置简单的衣柜和书桌,融合了衣帽间和书房的功能。且灵动的家具配置,不会影响二次改造。
结语
纵观整个案例,开门长走廊设计很巧妙,不仅规划出玄关区,而且提升了整体空间感,实用性极强。
本文由齐家小菜编辑,图片部分来源互联网,侵删!
文章来源:小户型装修案例精选(jiaxhx)
装修助手:齐家微微(qijiavv)