
设计公司:深圳市尺子艺术设计有限公司
设计团队:尺子设计团队
房屋坐标:深圳
房屋面积:73㎡
设计风格:北欧
项目类型:复式房

关于业主
在深圳这个被钢筋水泥浇灌的一线城市里,房价更是寸土寸金,有人说这里光鲜有余但是生活味不足,冷冷冰冰的……这也让我们更向往一个温暖明媚的家
业主Z小姐的工作就是每天算未来100年现金流的那种,随着孩子渐渐长大,决心买下了这套位于深圳南山区的小复式,即使房子有许多缺陷:暗卫,餐厅细长、房屋中部的楼梯看似摩登实则占用了过多的使用面积……但不管怎样Z小姐希望自己的家是有爱、有陪伴、有温度的
最初沟通时,一家人提出了梦想中家的模样:
1、大大的餐厨,做菜的时候可以和孩子互动
2、有一整面的书墙,目之所及,处处有书
3、足够宽敞的空间,满足孩子的赛车梦
4、阳光、花架,有情调的露台
……
当然最重要的前提还是将这个73平米的两房暗卫
改成三房明厨明卫,处处有阳光!
这些被Z小姐笑称是:Mission Impossible 的想法
却也在这个房子里一一实现了
↓ ↓ ↓
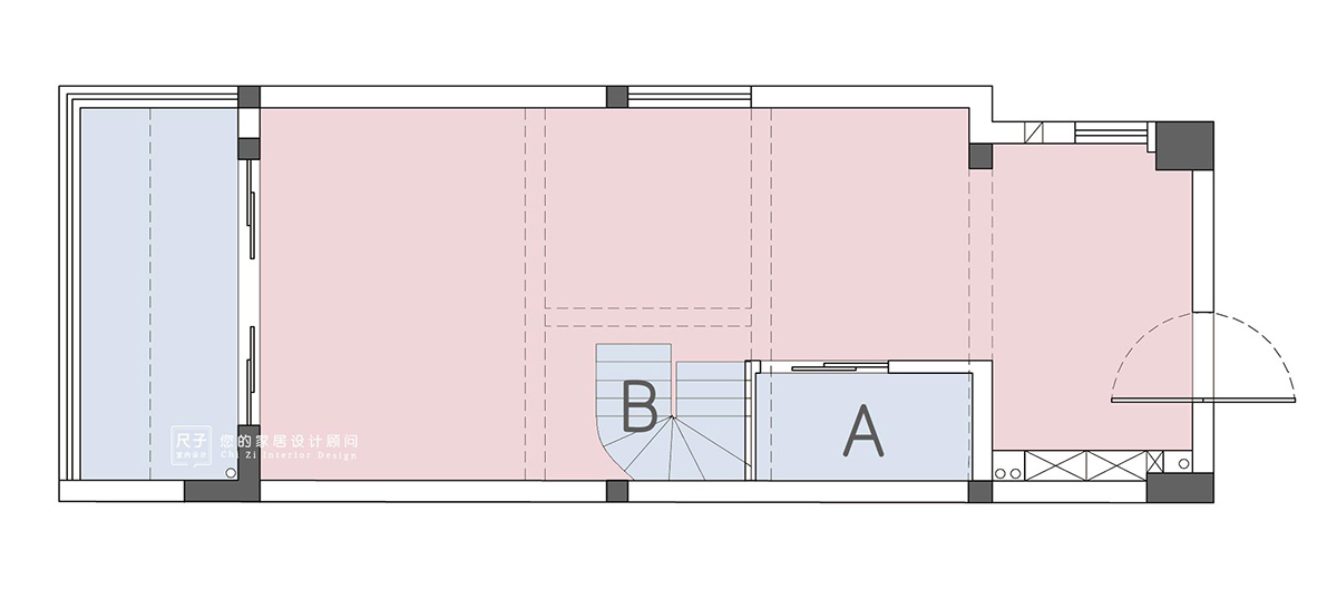
户型改造

一层原始

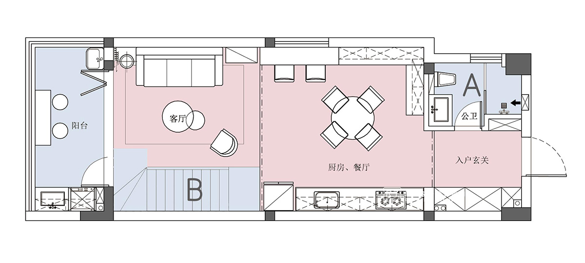
一层改造后
A、暗卫怎么改?
一二层卫生间没有窗户,采光、通风极差;我们利用既有的窗户重新布局卫生间,将一层卫生间移至入户右侧,二层卫生间则移动到中部靠窗位置,暗卫变明卫;随之产生的排污以及厨房排烟问题怎么办?仔细考虑后我们将整个餐厨区域垫高15cm,使走线更方便;
B、中部楼梯怎么办?
该户型楼梯位于房屋中部占地面积较大,空间割裂感过强,餐厅细长、客厅过大比例失调,且大面积空间浪费;我们将楼梯移位至阳台一侧,释放出大面积可利用空间,得到餐厨一体的大开间;将阳台门改为可完全推开的折叠门,无需担心室内采光问题;
C、三房布局怎么来?
楼梯移位带来的另一大好处是让二楼空间得到释放,加之稍稍缩小主卧,利用半个窗户布局父母房,便得到了采光良好的三房格局以及充足的收纳空间。

二层原始

二层改造后
客餐厨{大大的餐厨、处处有书}
一层作为家庭日常活动的场所,大背景色是低调温柔的灰与木色,靓丽的蓝色柜子成为家的点缀,浅色系空间的清冷感瞬间消弭。

回望餐厅,目之所及便是整面墙的书柜兼餐边柜,书香萦绕的环境在潜移默化中引导孩子养成良好的阅读习惯。
学习、玩乐、用餐,我们更希望这个家的每一个空间都是多功能的,而不是只有刻板、单一的定义。

开放式的布局保证空间通透感的同时,又能拉近家人间的距离,即使女主人在厨房忙碌时也不影响和孩子的互动。


餐 厅{一盏温暖的灯}
质朴的背景色,淡淡的原木香,无隔断的设计让现代空间有了温暖的感动,以及一份回归自然的心境。

一方木桌,两把座椅,一个简易的书吧就这样诞生了。业主随时可以从旁边的书柜取出书来阅读,还能在这里陪孩子看看电影或完成老师布置的手工作业。

客 厅{足够宽敞的亲子活动空间}
客厅色泽温润,去掉笨重的茶几,不占地的投影仪取代电视,留出了足够的活动空间,让一家人能席地而坐和孩子一起嬉戏。


楼梯间{希望有一整面书墙}
目之所及,处处有书,是Z小姐的生活梦想之一。因此一个大大的藏书地是十分必要的。
将原本位于房屋中央的楼梯移动至阳台附近,加宽10cm做书架设计,借助自然光线点亮楼梯空间,这一块区域便成为一家人最宝贝的"藏书阁"。

巧妙的是,推开楼梯下的隐形门会发现这里还藏着实用的收纳间。

业主与设计师的思想碰撞不时能创造一些小惊喜,圆滚滚的楼梯柱便是这样的产物;这里不仅是连接房屋两层空间的桥梁,更是温暖舒适的阅读区。


二 层{处处有阳光}
拾阶而上,便是业主一家的睡眠空间。借用过道将洗手台外置,让忙碌的早晨不再拥挤;一排蓝色的柜子也保证了充足的收纳空间。


主卧配色沿用了Z小姐最爱的蓝,与可爱的小碎花窗帘搭配,双鱼的浪漫便在这细微之处。


露 台{阳光、花架}
Z小姐说:想要有花架露台。抓住一闪而过的灵感,设计师以手绘形式将业主的想法具象化,这便是露台的雏形。

大大的露台成为了这个家的光源所在,清晨日暮的自然美景,透过窗框仿佛一幅巨大的装饰画,点缀着室内的景色。

一席多彩小花砖与蓝色花架,给生活加点小确幸;待在这样的环境,平日里的焦虑烦恼,似乎都能消弭无踪。

清澈明媚的阳光,懂生活的你们共同构成这个温馨的家

就这样,这个满足三代同堂居住的实用空间、融汇了业主美好期待的家,便通过一系列合理而充满巧思的设计呈现在我们眼前。