屋主介绍
职业家庭主妇
年龄85后
地区湖南长沙
玄关

遵守惯例来张户型图


拱形玻璃隔断是设计师的主意,我家户型是大门对着主卧门,风水的说法不太吉利,楼主原本是不迷信的人,自从2014年身体抱恙以后就开始有点迷信,执意做了这个隔断,虽然很多人说阻碍通道。实际上还是挺美貌的吧?找铁艺和玻璃着实费了点功夫,冒着酷暑高温在建材市场来回奔波,后来灵机一动在高德地图上搜索艺术玻璃,居然顺利联系到附近的卖家,铁艺加玻璃共计花费1600,价格不便宜,但是实际效果受到广泛好评,值了……

放一张未完工的对比照


鞋柜。关于鞋柜也有一段故事,原本这个鞋柜位置应该在对面,只能做一半高,为了改成现在这样,大费周章移动了防盗门的位置,为此还跟孩子爹大吵一架。话说装修过程真是重重矛盾,幸好后期孩他爹放手让我一个人去管,才避免了各种争吵。不然估计装修完工,婚姻也走到头了(夸张了点,总之装修很苦就对了)

有朋友留言说想看更多细节,放一张鞋柜没贴马赛克之前的图

换鞋凳和藤筐都来自某宝,藤筐准备挪位置
客厅

没进家具时的样子

家具定得太急,茶几太大,沙发多定了二人位,打算入住以后再调整

空调风口做成一个整体是设计师的建议,用他的话说:大气!

放一张效果图,空调整体风口很醒目。墙面最初的设计有墙裙,报价出来以后卤煮觉得费用太高不能接受,设计师便改成了现在的木线条造型。虽然效果也不错,但是,如果再给我一次机会的话,我会坚决选墙裙。

风管机刚安装完的样子

湖南的冬天没有烤火神器是万万不能的,把茶几换成了四方烤火架




墙纸刚完工的样子,有点乱,这个墙纸受到很多人的表扬

不喜欢圆弧,设计师帮我把背景墙改成了现在的模样,并且听从他的建议把石膏线全部改成了木线条,事实证明木线条有质感多了

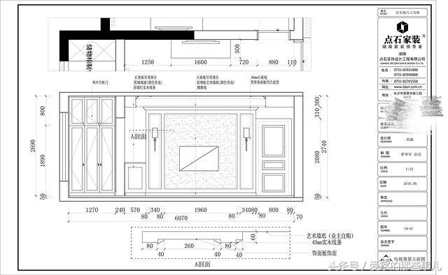
有朋友留言问背景墙的尺寸,特将图纸传上来

喜欢阳光洒进来的样子


墙面色号
餐厅



放两张对比照,说明软装的重要性??

设计师说画框有点宽,个人觉得画选得太大,小一点会好看很多
厨房

为省钱在橱柜后面和下面贴杂砖,结果泥工师傅将地面杂砖贴得太宽,不得已将橱柜的pvc 踢脚线改成实木的来遮丑,杂砖省的那点钱全用来补实木踢脚线了,好在实木看起来更有质感,些许安慰。 实体店购置的摩恩大单槽,做成了台下盆。抽油烟机套装是老板的。

一眼就相中的地垫

拍照那会还没做美缝,瓷砖稍显难看。选橱柜的时候一直纠结实木还是密度板,最后还是选择了大价钱的全实木,后期为追求质感,预算一项项的超,真是一把辛酸泪啊……为了节约成本,如图:所有橱柜门款式都一样,诸如网格门、玻璃门等等一概没有。

给厨房门一个特写
卧室





衣柜门,成品比样品莫名多出几道金色的杠杠,商家不按样品生产着实让人恼火……

这是样品,是不是比我家实物好看很多?



床垫和枕头均来自金可儿,在楼主看来贼贵的一个牌子




这是店里的样品,颜色好看很多,所以刚装完衣柜门是有点失望的
卫浴

摩恩的花洒套装,趁特价的时候入了两套

Toto的马桶和卫洗丽,红星美凯龙周年庆时订的,比较划算

这就是那个购于某宝的比较low的浴室柜,后悔ing 毛巾架如果全部换成黑色会更有质感

卫生间是所有装修环节中最不满意的地方,为了节省成本,瓷砖该斜铺的地方都换成了正铺,网购的毛巾架也太low,主卫的浴室柜和水龙头更是low得我肝疼。血淋淋的事实证明:小钱绝对不能省!

镜子尺寸稍小,台盆和龙头是toto的特价套装,总共才700块,很划算吧?洗漱台是泥工师傅现场制作,用水泥倒板,绝对结实耐用。与墙面接触的缝隙舍弃了玻璃胶,请美缝师傅一起用了美缝剂,方便以后搞卫生

放一张瓷砖美缝后的特写。楼主家客餐厅全部用的复合地板,美缝位置只有厨卫、玄关和阳台,总面积大概100平,连同橱柜、飘窗美缝一起,共计2600
阳台

因为涉及到水电走位,洗衣机柜购于实体店,价格比淘宝略高。糟心的是这里水电走位还是出现了偏差,排水管刚好卡在柜子的挡板处,不得不截掉了露出地面的排水管,接了一个三通,估计时间长了会漏水。另外洗衣机龙头也被挡住,只能开一半。亲们如果要装洗衣机柜,切记水电走位要准确

方便大家了解洗衣机柜水电布局,特放上这张图,当时在实体店拍的,楼主家就是没考虑好中间挡板的位置,留下了隐患……

儿童房

儿童房家具又犯了客厅的错误,书柜尺寸偏大,导致柜门只能开一半。当然楼主最想说的是:房子还是大的好!一逛家具城就会发现自家的房子有多小

儿童房家具在商场的样品是这个颜色,其实很经典,个人更喜欢,但还是照顾小姑娘的心情,买了白色

很多人夸儿童房床品选得好,我没好意思说这是几年前买来在出租屋用的,临时拿出来凑数,居然歪打正着,效果还可以

来一个墙纸特写,旋转木马的墙纸来自布鲁斯特。搭配功力有限,怕出错,墙纸和墙漆的配色都copy了淘宝卖家的样图

没搞卫生,请忽略脏脏的地板


家里有个小姑娘,天生自带买买买属性,衣服还挺多,特意选的三门衣柜,增加了收纳空间,但因房间太小,不得不放弃了原本已订的高低床



放一个墙面色号,墙漆品牌是美国威士伯,个人觉得色卡然并卵,因为都是现场调色,调的程度是你觉得可以就可以了,不太可能跟色卡完全一致
书房

书房的白色格子门

书房给小盆友留了一整面黑板墙,黑板漆来自福乐阁天猫旗舰店,个人觉得效果还可以,小盆友也很喜欢,希望不要再去糟蹋其他墙面??

绿色墙面是黑板漆,温馨提示:黑板漆也是有各种颜色的哦,可根据喜好来选

站在餐厅位置看书房

楼主的梦想,大大的落地窗,长长的白纱。可惜,这个书房是由原本的阳台改成的,落地窗不够大,也不是我想象中的样子。情怀始终只是情怀,但愿我的dream house能早点来(偷笑)
请关注爱家那些事儿微信公众号:pyds66001596
我们每天都会在微信上推送更多户主家装分享趣闻和经验~!让你从以后家装在无忧