楼盘案例
装修楼盘:驰恒之城
装修风格:北欧风格
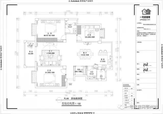
装修户型:三室两厅两卫
装修面积:127㎡
装修预算:13万
装修套餐:大全包
装修公司:一号家居网
感觉:清新
设计理念:在原始结构比较完整的前提下进行少量的拆改,完整房子的功能性,将原始空间中小型空间进一步的做大,成为一个小书房,既满足客户的要求,又使得房子的效果更加美观。



设计
构思
本案为业主夫妻的婚房,二人对装修都有着独到的见解,喜欢极简主义、简约主义风格,于是设计师就沿袭了北欧风格,突出精练简洁、线条明快的装饰特点。
北欧风格是注重人与自然、社会、与环境的有机的科学的结合,它的身上集中体现了绿色设计、环保设计、可持续发展设计的理念;它显示了对手工艺传统和天然材料的尊重与偏爱;它在形式上更为柔和与有机,因而富有浓厚的人情味;它的家居风格很大程度体现在家具的设计上。注重功能,简化设计,线条简练,多用明快的中性色。