农村家庭,兄弟姊妹多,实用又美观的双拼住宅就成了大家庭的首选设计。但实际却是,由于各种原因,兄弟姐妹间并不一定会合建双拼,而是会选择分开建两栋独立的新房,各自独立生活。
一个宅地建两栋房子,分开居住彼此不受干扰,紧邻一起有忙也能互相帮助,宅基地合理利用,家庭关系也更显亲密。

占地尺寸:37.5m×14.3m
占地面积:321㎡
建筑面积:497㎡
建筑高度:10.8m
建筑结构:框架结构

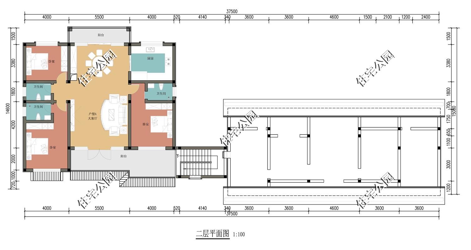
平面布局图:
业主家为兄弟三人,每层一家人居住,按照业主所需,户型设计为A、B两种不同样式。A款:新中式二层小楼,B款:舒适平层建筑。
户型A布局:朝南双卧均带独立卫生间,创造优质的居住条件;室外储物间设计功能满满,并且设计外置楼梯通往二层,节省了室内空间,面积得到优化。
户型B布局:一层住宅,布局无需繁杂,三室两厅的搭配便已能满足日常生活所需。卧室搭配落地窗,充沛的光照无死角洒落在室内。

户型A二层:沿用一层的配置,二层多加了一个阳台,解决晾晒需求。三户人家各自生活免受干扰,这样的户型设计,大家觉得如何?

关注本号,每天都有新户型,还有乡邻晒家,建房省钱小妙招一手掌握。