本案的业主是一位酷爱阅读和传统木偶及各种本土文化的前卫青年。当个性与传统碰撞,会擦出什么样的火花?
餐厅上方挑空,结合二楼起居室的落地窗让整体空间更具开放性。一楼在水泥质感和白墙基础上以软装为主,二楼起居室削弱了工业风的味道更多的是简洁干净的北欧气息,软装的搭配在简单的空间里起到了决定性因素。Less Is More.
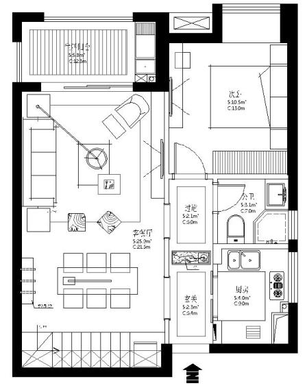
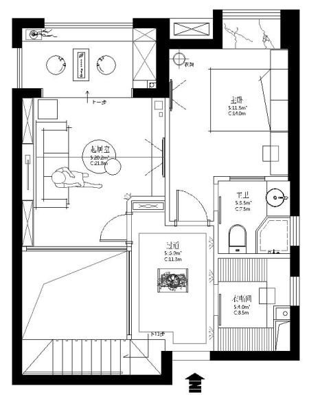
户型图


过道

客厅

餐厅

二楼起居室

二楼主卧

这样的工业混北欧风你们觉得怎么样?我是觉得小两口超适合这样的设计装修啊!不要太赞!
本案的业主是一位酷爱阅读和传统木偶及各种本土文化的前卫青年。当个性与传统碰撞,会擦出什么样的火花?
餐厅上方挑空,结合二楼起居室的落地窗让整体空间更具开放性。一楼在水泥质感和白墙基础上以软装为主,二楼起居室削弱了工业风的味道更多的是简洁干净的北欧气息,软装的搭配在简单的空间里起到了决定性因素。Less Is More.







这样的工业混北欧风你们觉得怎么样?我是觉得小两口超适合这样的设计装修啊!不要太赞!