一抹艳丽之色牵动无数追梦人的心弦 | 美致家居设计-欧模网
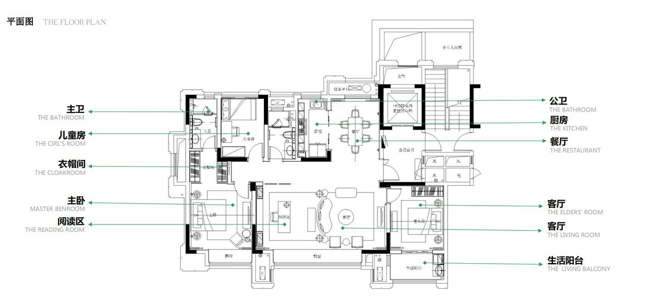
项目名称:中天金华公元诚品项目D1户型样板房
设计范围:软装设计实施
项目地点:金华市中天·公元诚品(金华市金东区)
项目时间:2018年11月
项目面积:140平方米
设计机构:杭州美致家居设计有限公司
主案设计师:程积俊
爱马仕橙
让所有的产品至精至美、无可挑剔,是Hermes的一贯宗旨。大多数产品都是手工精心制作的,无外乎有人称Hermes的产品为思想深邃、品位高尚、内涵丰富、工艺精湛的艺术品。
本案中,设计师与爱马仕结下不解之缘,设计师秉承爱马仕精益求精的宗旨,在家具、色块基调的把控上下了功夫。面料上,如爱马仕坚持以手工製造手袋、由一位工匠从头到尾亲手製作,(皮革工匠不允许干预另一个同事的工具包,每个人都有自己的一套工具,直到他们退休时带回家},和用浸过蜡的麻线、传统的马具缝制手法(Saddle Stitch)、永不脱落的蜜纳包边,这些精湛的工艺一样,我们设计师也是所有的软饰产品都选用最上乘的面料,注重工艺装饰,细节精巧,做到最优良的品质。

本案以港式轻奢风格出发,在充分展示空间的前提下,对材质、空间、色彩有着严格要求,将精心定制极具品味的艺术品融汇在沉稳大气的空间里,流露出精致尊贵的气质。在设计中,在原有硬装的灰色、咖色的基调里加入爱马仕橙和金属色作为点缀,让整个空间色彩丰富鲜亮,一下就抓住欣赏者的眼球。在陈设物件中引入金属和水晶材质,使整个空间愈加奢华。此外,家具上还增加了精致的雀眼木饰面、皮革硬包和不锈钢装饰,在细节的设计上精益求精。












1837年,因为战争成为孤儿的 Thierry Hermès,来到了当年还是以马车为代步工具的巴黎,以马具制造商的身份开启了 Hermès 世界。创办人的孙子mile-Maurice 在战争期间的美国看见了汽车帆布车顶上的拉链,将其引进法国,成为第一位将皮革产品与拉链结合的设计师(甚至教导 Chanel 裁缝师如何将拉链运用在衣服上),从而开启了品牌的时尚之路。
对于爱马仕这段历史,我们设计师从永恒的经典中提取了灵活多变的概念,在标志性的爱马仕橙中,我们加以了创新的元素丰富作品,使整体效果统一而灵动。





次卧设定为老人房,它自然真实,不招摇,经久耐看,不会随着时代变化而势去。空间氛围延续了客餐厅、主卧的一致调性,并在其间适时以艺术点缀,如结合带有浪漫元素的波纹装饰画,用现代、摩登的装饰语言去织染一番自然风貌,就像塞万提斯所说:“艺术并不超越大自然,不过会使大自然更美化。“



我们尊重过去,同样醉心于未来。对精致素材和简约表现的热衷,对传世手工技术的挚爱以及那种不断求新的活力,在美致人中代代相传。有时候,将生活过成奢侈品不仅是在时尚之都,还可以贴近自然。


