本案的设计精髓在于布局上做了很大改动,卫生间和主卧室衣帽间打通做成大的卫生间,小卧室和主卧室打通从新规划,厨房开敞式。原始房子客厅光线很暗,进门正对小卧室门。在风水上也不是很好,而且原主卧室空间很窄,所以我们把两个卧室打通从新布局,扩大了主卧室空间,做了玄关。解决了进门正对卧室门的问题。小卧室做了榻榻米最大限度的利用了空间,业主是个运功爱好者有非常多的运功用品以及书籍各种摆件,所以储物功能要足够强大,所以沙发后的满满一排柜子和榻榻米以及上面的储物柜最大的满足了客户的储物功能,我们的完美家装的柜子不限量让客户着实实惠多多。

龙都国际客厅展示图

龙都国际卧室展示图

龙都国际卧室展示图

龙都国际酒柜厨房展示图

龙都国际卫生间展示图

龙都国际平面布置图

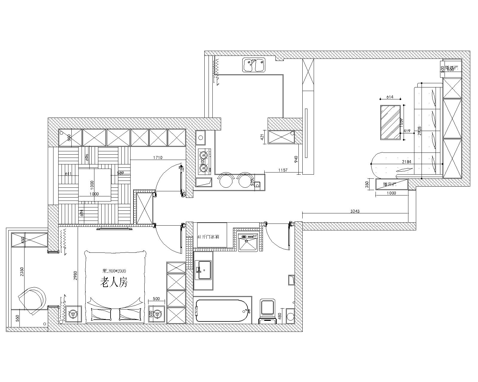
龙都国际原始平面图
实创装饰实测面积计价,公摊、室内墙体面积不算钱,定制家具不限量,硬装+软装+定制家具。14种不同风格的样板间,多种国内外一线品牌主材随意挑选。
咨询可添加微信号:15901581786, 了解更多详情案例可复制微博链接查询:http://blog.sina.com.cn/u/5981093193