这套150平米的房子,是个处于顶层的复式楼,以简约美式风格装修,在现代舒适的空间基调下,打造出一个优雅高档的居住空间;同时得益于顶层的户型,各个空间都拥有超级棒的采光与视野,真的是太舒服了!
客厅
客厅电视墙中心位置贴上壁纸,四周采用边框收边让电视墙看起来更加丰富有层次;实木电视柜与茶几搭配,搭配舒适的布艺沙发,让这个客厅显得档次而又现代大方;

沙发靠窗的摆放的格局,让这个尴尬的客厅也显得更加的高档大方;

考虑到靠窗摆放沙发在看电视的反光问题,窗帘选择的是双层窗帘,可以根据灯光环境来调节窗帘的开关程度;

餐厅
横厅的布局的好处就是可以让客餐厅都拥有大面积的窗户,所以餐厅自然也是在一个明亮宽松的空间内,舒适轻松;

玄关侧边就是厨房,而再往里则是客餐厅区域,布局相当的大方舒适;

厨房
U型布局的厨房,以干净简洁的浅色调现代美式风打造,整个厨房都充满了高档优雅的气息;

大面积的窗户,让厨房拥有丰富的采光与通风,让厨房保持明亮又干爽舒适;

楼梯
厨房对面的则是楼梯间,楼梯下的空间被巧妙地利用起来当作储物间;

楼梯间顶层的位置装了一盏华丽的吊顶,上面装上精美的吊灯与内嵌筒灯,让楼梯间也显得明亮又舒适大方;

主卧
主卧床头以对称的造型+壁纸,同时稳重的床还带着舒适的软靠垫,整体舒适又奢华高档;同时主卧还带有大面积的落地窗阳台,上面摆上一套休闲座椅,闲暇片刻还能享受惬意的情调;

衣帽间
主卧里还有个独立的衣帽间,因为这个空间在二层,而且还是带有门的封闭空间,因此里面的衣柜都没怎么装门,找衣服就简单直观多了;

次卧
处于顶层空间的次卧,拥有大面积的全景窗户,在这里躺着就能看蓝天白云与星空皓月;

同时在衣柜接近窗户位置,还做了个小书桌,在这里写作业工作,可以瞻望到远处的风景,心情都好了不少;

榻榻米房
此外,还有个小空间被装成了榻榻米房,带有书桌与卧室功能,大面积的窗户+顶层,同样让这个房间拥有难以置信的视觉;

卫生间
卫生间以玻璃隔断作为干湿分离,整体舒适宽松的格局,相当的舒服;

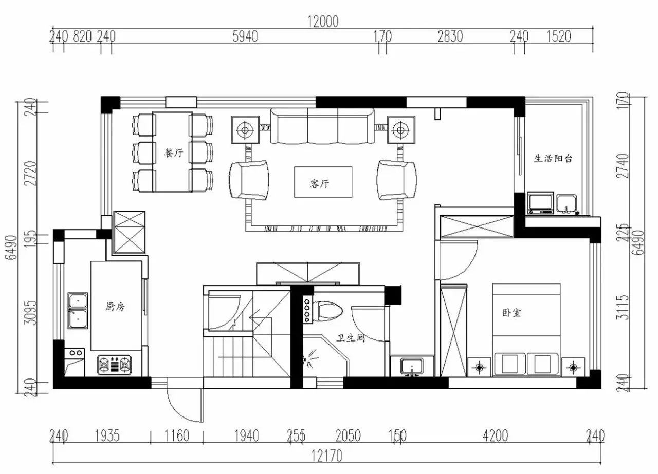
一楼平面图

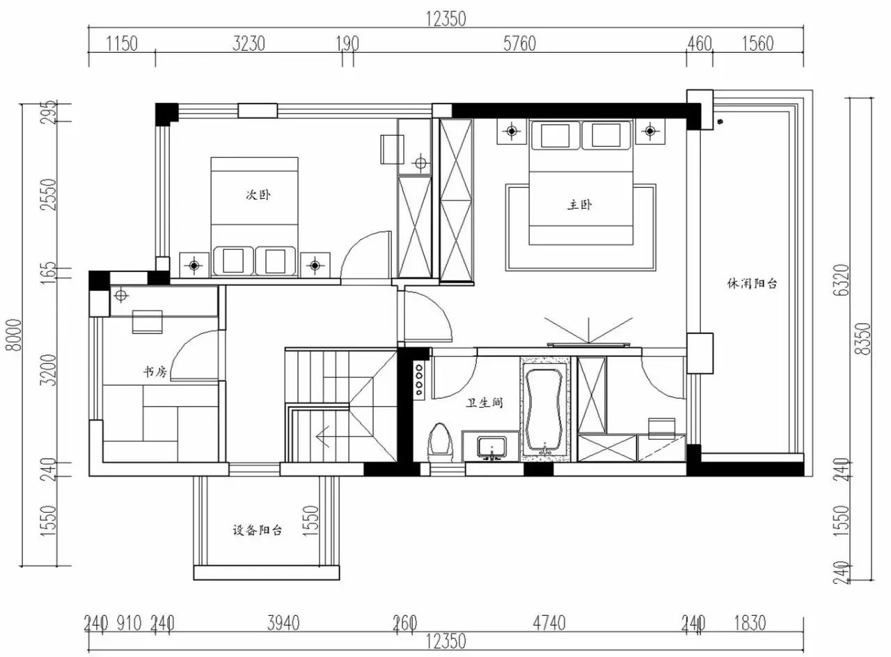
二楼平面图

设计:张旭青(康源装饰),点评:设计馆
买了房找装修灵感,欢迎加微信公众号:shejiguan_cn