我们经常在网上见到很多别墅户型,有的人就说了,别墅的设计确实好看,但是造价高,不适合咱农村建造呀。其实不然,好看的别墅不一定比我们平时见到的自建房花钱多。
在设计师的设计下,会让你花更少的钱建更漂亮的农村别墅,来看看者5款,也许也能成为你的参考呢,重要的是造价也不贵,30几万拿下。
农村建房别墅图纸1:

农村别墅图纸编号:JF8002,砖混结构,造价29-36万,开间11.24米,进深10.24米,占地面积110.7平方米,建筑面积203.51平方米


设计功能
一层:客厅、2个卧室、洗手间、厨房、餐厅
二层:茶室、3个卧室、书房、洗手间、露台
农村建房别墅图纸2:

农村别墅图纸编号:JF8086,框架结构,造价18-26万,开间8.2米,进深10.1米,占地面积80.71平方米,建筑面积175.24平方米


设计功能
一层:客厅、卧室、2个洗手间、厨房、餐厅
二层:3个卧室、书房、2个洗手间、阳台
农村建房别墅图纸3:

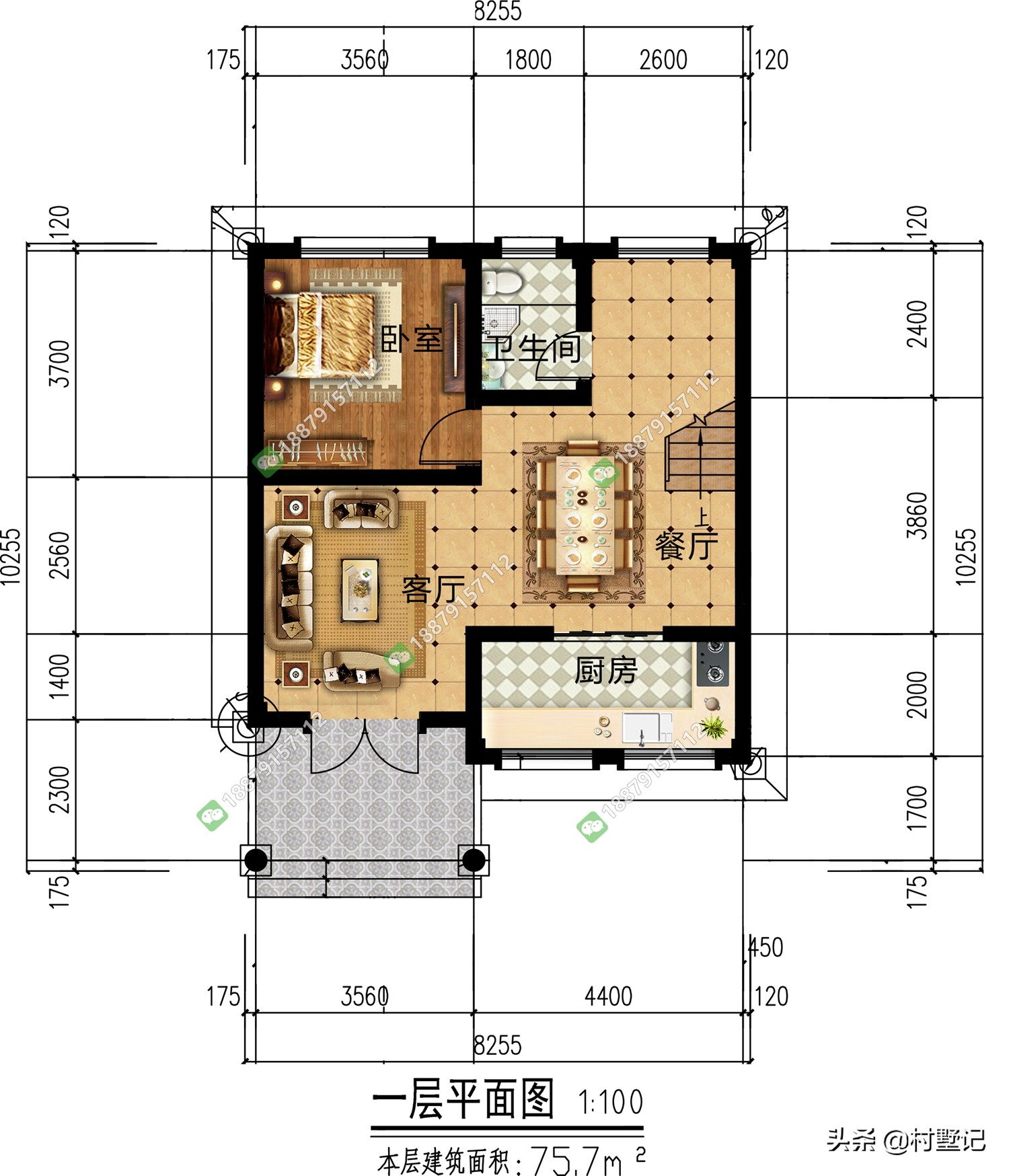
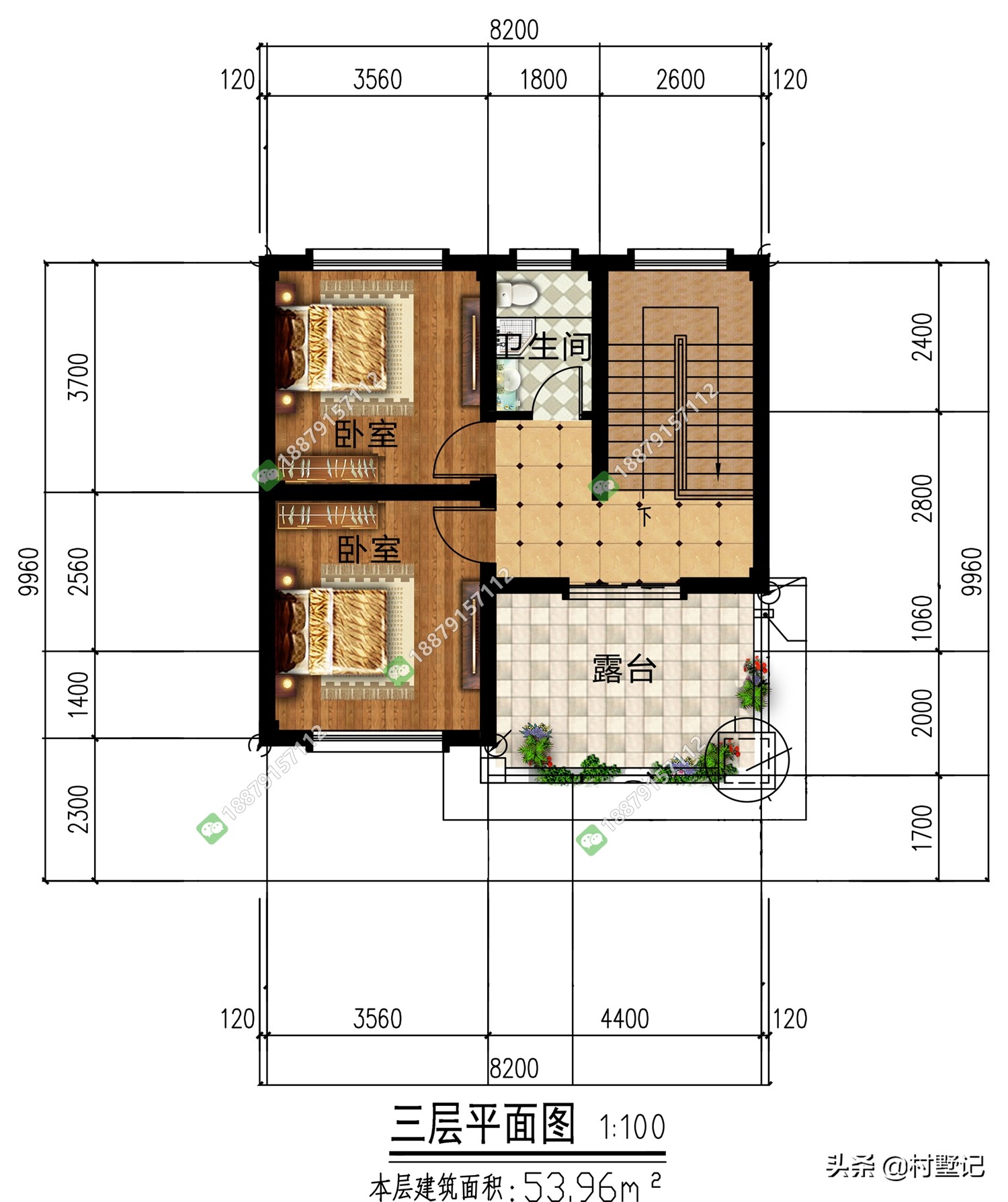
农村别墅图纸编号:JF8132,框架结构,造价23-30万,开间8.255米,进深10.255米,占地面积75.7平方米,建筑面积197.22平方米,建筑高度12.1米



设计功能
一层:客厅、卧室、洗手间、厨房、餐厅
二层:2个卧室、书房、洗手间
三层:2个卧室、洗手间、露台
农村建房别墅图纸4:

农村别墅图纸编号:JF8525,砖混结构,造价32-38万,开间13.26米,进深17.68米,占地面积155.04平方米,建筑面积302平方米,建筑高度10.005米


设计功能
一层:客厅、2个卧室、洗衣房、厨房、餐厅、车库
二层:休闲茶座、3个卧室、书房、2个洗手间、露台
农村建房别墅图纸5:

农村别墅图纸编号:JF8560,砖混结构,造价28-33万,开间7.85米,进深12米,占地面积94平方米,建筑面积269平方米,建筑高度12.981米



设计功能
一层:客厅、卧室、洗手间、厨房、餐厅
二层:起居室、3个卧室、洗手间、露台
三层:休闲区、2个卧室、洗手间、露台
别墅拥有完整的施工图纸,3D效果图+建筑施工图+结构施工图+给排水施工图+电气施工图,全程施工指导。