B.Park绽放花园·成都店 | 贝森豪斯_欧模设计圈_艺术餐厅推荐
【设计公司】:PleasantHouse
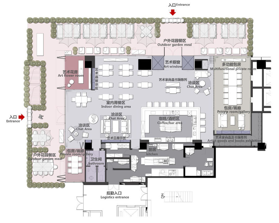
【设计面积】:680平方米
【项目地址】:成都
【完工时间】:2018年6月
【摄影师】:大斌

在Louis Armstrong的歌里,完美的世界应该是鲜花盛开的,宾朋满座面带微笑,每个人都心情大好。在成都,就有这样一个地方,在花朵与笑颜辉映中人们度过幸运的白日和深邃的夜晚,这就是成都新开的文艺生活地——绽放花园艺术餐厅。

入口处的手工染色花,每朵大小形状不尽相同,斑斓的色彩展示着它们各自性格,躯干孱弱却拥有彩虹般绚烂的灵魂,紧扣主题的艺术装置传达出一种生活态度:只要内心强大都可以恣意绽放!


绽放花园的第一家店开在深圳华侨城创意文化园,他创造了一个现代文艺生活的融合型场所,涵盖艺术中心、多功能厅、花房、书房、厨房、户外花园等不同功能性体验空间,打造丰富独特的畅想之旅。

“真正的消费升级是基于消费者观念的变化和对好产品的追求,而非单纯标新立异。绽放花园成都店让快节奏的工作与慢生活无缝对接,在前沿艺术与现代生活的交错碰撞中让艺术变得触手可及。”设计团队将设计精髓娓娓道来。

成都绽放花园相较于深圳的体量甚小,于内容承载的取舍是一个难题,最终定位成都绽放花园以“餐厅”形式作为呈现,是一个小而精的灵活空间,正所谓“麻雀虽小,五脏俱全”。

食材的选取标准体现着经营者要传达的态度,绽放花园成都店遵循“食物是大自然的恩赐”,提倡中国传统24节气养生理念,旨在打造艺术、生活于一体的聚集地,致力于成为“最美艺术餐厅”。

餐饮之外,绽放花园亦承接丰富的文艺生活,其中的绽放花房作为有氧供应基地与园艺、蜡烛、书籍共同构筑出优雅的空间。从天然食材到环保再生材料都体现着尊重自然的生活态度,如出一辙。


早在1851年,园艺师John Paxton以玻璃暖房的概念为伊丽莎白女王建造出第一届世博会场地——水晶宫,花房点燃过世界的热情,留下美好的怀念。今天,在温暖漂亮夜景中,烛光摇曳,餐厅正期待着客人的光顾,发生新的人生际会。

以花园介入餐饮空间,建构出新的餐厅形态,设计上更加注重灵动性。柔和温暖的灯光,亲切怡人的家具和饰品反复甄选,在弥漫着花草香气的环境中,让人迷醉。

作为新派艺术餐饮空间,艺术品在空间中的参与必不可少。扁平化的视觉语言,拼贴的手法不断冲击着宾客的感官,展示了艺术的当代性。

从热爱鲜艳太阳花的日本当代艺术家村上隆,到色彩丰富的视觉艺术家Patrice Murciano,设计师将艺术的不同形式以各样的姿态展现出来,让艺术生活的风潮永不落幕。

忙碌的生活要求配套大量的休闲空间以缓冲压力,真实的社交让人远离各种屏幕,回归本我。无论交谈独处,绽放花园都是完美的都市缓冲空间。

从水泥的质感到莫兰迪土红的感性,空间低调的设计元素,为装饰摆设和互动社交留下空间。灰色系的理性中庸与艺术品的暴烈艳丽形成鲜明对比,也是一种回应当代艺术的方式。



户外花园由一条芬芳小径曲径通幽,带入餐厅入口,仿佛传统园林的萦回曲折,也增加进入餐厅的仪式感。入夜的成都摆脱了骄阳炙烤,回归平静。灯火阑珊处伊人伫立,等待凉风的一期一会。 融入不同个性的都市,在新潮的设计元素和深厚的历史中获得自身定位,绽放花园开启了与成都的缘分,将自然健康的精神注入餐厅,创造出新的生机盎然。



欧模设计圈_室内设计案例推荐:
胜景如画 | 南京冬去春来会所设计_欧模设计圈_会所案例推荐
沉淀 · 远离喧嚣 | 黑白系公寓装修设计_欧模设计圈案例推荐