
导读
住宅空调机位设计因为无强制性规范要求,从设计院到开发商,在住宅营造过程中往往缺乏足够关注,导致出现部分建筑完全没有预留空调机位,或即使有预留,但因为缺乏统一的标准规范,尺寸不合理,无法安装或尺寸过小,导致空调死机等问题,不仅直接影响了建筑的美观,同时也给住户使用、安装和检修带来极大问题与不便。因此,如何在以后的设计及设计管理中避免缺陷、优化成本、方便维护很值得我们认真思考。

由于缺乏空调机位设计引发的“空调墙”现象(左)
空调室外机板被其他管线占据引发的空调外挂现象(中)
空调机位尺寸狭小,室外机难以放入,且容易引发死机(右)
空调机位问题虽谈不上釜底抽薪,但却是当今市场无法回避的“客户敏感点”,其设计的合理性直接体现了一个开发商对细节的关注度和把控力。针对于此,我们从空调分类、设计研究、图纸举例这三个方面为住宅空调机位设计提供经济可行、维护方便的解决方案。
一、空调分类
住宅空调可分为两大门类:
① 户用多联机:俗称”一拖多”,指的是一台室外机通过配管连接两台或两台以上室内机的空调系统,因价格较高,室内风机需跟吊顶一并考虑设置,通常用在层高>3m的高端的住宅中。
②家用分体式空调:由室内机和室外机组成,通常适用于层高在2.8~3.0m之间的普通住宅,并可分为壁挂式和立柜式两种。

户用多联机

家用分体式空调
户用多联机一般出现在精装修的高端住宅中,且一般只需一个室外空调机位,对空调室外机位设置要求较低,产品缺陷较少。故本文将聚焦最为常用的家用分体式空调研究。
▼
▼
二、空调机位设计要素
住宅空调机位的设计要素主要可归纳为五个方面,它们分别是尺寸、安装、排水、散热、位置。
1.尺寸:
空调室外机尺寸过小容易导致进、排风不畅,引起死机、制冷效率低等问题,为此,首先笔者对市场上常见空调品牌室外机尺寸进行了统计分析。

同时按照成本节约的原则,取覆盖80%机型尺寸的最大值,将市场上主流空调室外机尺寸进行了统计。

为保证空调室外机有充分的通风空间,根据空调室外机通风的基本要求(如下图),

经计算,得出室外空调机隔板的最小净尺寸。

2.安装:
为了检修安装的方便,室外机挑板应尽量靠近窗洞设置,可开启的窗户离空调室外机位一侧应<1200mm。
当空调机位需结合飘窗设置时,建议将其放置在飘窗顶板之上,一方面飘窗顶板属于此户业主,可以避免产权纠纷,另一方面可以减少室内冷媒管行走距离,避免破坏立面。
当空调需上下叠合放置在窗间墙处时,应注意窗户是否为同一户,如为同户,上层室外机可用空调室外机架安装,在减少土建成本的同时,也能利于外机的散热;如为异户,上下空调机位之间应设置混凝土隔板,并各自预留套管。
室内机的插座应注意安装位置,为避免插座位置影响空调室内机安装的现象,挂机插座应位于空调孔正上方,插座下边缘至空调孔顶100mm;柜机插座位于空调孔正上方,高度与其他普通插座相同。
3.排水:
空调安装应充分考虑空调冷凝水的排放路径,避免发生冷凝水倒灌或无法顺畅排出的现象。
空调留孔应直接通向室外,不宜穿越相邻房间。如不得不穿越其他房间,必须控制在卫生间、厨房、储藏室等辅助房间内。如果穿越距离相距较长,洞口之间应有高差,以保证冷凝水顺畅排出。
有组织排水的空调板的地漏设在内边缘靠近冷凝水管处,注明排水方向,坡度1%;无组织排水的空调机位底板面层向外找坡,内外高差20mm,并在百叶横框上预留φ10小孔,确保能顺利排出雨水。
4.散热:
为了避免影响散热效果,当两室外机对吹时,其间距不能<1800mm,否则应错位排布;当两室外机并排放置时,其间距不能<200mm。
空调外防护结构建议采用外高内低的空调百叶,热空气向上流动,此种百叶百叶更有利于热空气的气流组织,同时可起到遮挡视线,隐藏立面室外机的效果。同时为了满足排风散热要求,空调百叶要保证空隙率≥75%。

5.位置:
空调室外机的布置方式可归纳为四种,它们分别是窗间布置、阳台布置、窗上(下)布置以及独立布置。
通过以上尺寸、安装、排水、散热方面的研究,对空调室外机的设置位置,我们可以得出如下图的结论。

而对空调室内机的位置,因为长时间的空调吹头容易引起感冒,落枕,颈椎不适等症状,甚至会影响头部神经和血管病变。建议在条件允许的情况下,卧室空调机位应该尽量避免对床出风;另外从家具摆放的便利性考虑,客厅内的空调立柜机应位于电视墙墙角处。

三、图纸举例
在以上研究结论的基础上,关于空调室外机的布置方式,因为阳台布置方式较容易实现,而独立布置方式我们不建议采用,故我们对窗间布置及窗上布置方式做出了标准化的空调机位示意图,希望能给设计及设计管理提供有益的参考。
1. 窗间布置空调机位设计图:
设计前置条件:
层高按2900mm;外保温厚度取50mm;窗高为1700mm。

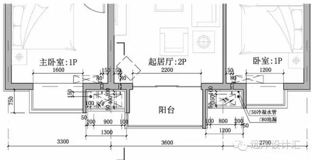
窗间布置空调机位平面示意图

窗间布置空调机位剖面图 (左)
窗间布置空调机位立面图(右)
2. 窗上布置空调机位设计图:
窗上布置空调机位与窗间布置空调机位其优、劣势如下图所示:

VS

设计前置条件如下:
层高按2900mm;外保温厚度取50mm;窗高为1700mm,飘窗外挑长度(外墙结构-飘窗板结构边缘)650mm。

窗上布置空调机位平面示意图
此处需注意:
① 此处空调百叶需“外低内高”设置;(此百叶的主要功能为挡雨,太多雨水进入会造成空调板积水及过水洞堵塞,影响冷媒水排出);
② 图左位置处的冷媒洞必须高于右侧阳台墙处的过水洞,以保证主卧空调的冷凝水可顺畅排至冷凝水管。

窗上布置空调机位1-1剖面图(左)
窗上布置空调机位2-2剖面图(右)
图面中所示的数字是经过计算得出的,如将空调机位板抬高,会导致冷凝水管倒灌,如降低,则会影响室内窗高,降低空间舒适度。
下图为该窗上布置空调机位方案的室内、外效果图,飘窗两侧可作为储存空间使用。

室内效果(注:飘窗可增加储藏空间)

参考立面
结语:
空调机位设计看似简单,却极大程度上影响了住宅设计中的平面布局、立面效果和空间感受,也是重要的客户敏感点。在方案设计初期,设计院与开发商就应认真考虑空调机位对设计的影响,切勿后置。