现在的年轻人靠自己打拼,真的不容易,拆姐儿前段时间在网上发布了一个话题:
世界各地首次购房者的平均年龄,许多国家首次购房者年龄均在35岁左右,中国则是27岁左右。
虽然是旧话题,但是再次发布,依然能引起大家的激烈讨论。许多粉丝纷纷苦逼留言:
“怎样才能让丈母娘看见”、“这个年龄是认丈母娘的年龄”、“虽然买了房子,也是需要家里资助”……

不得不说,现在的年轻人压力太大了,但是结婚丈母娘让你买房还是万年不变的规律。
这不,为了你们能选到最心仪的房子,拆姐儿又来给你们探盘啦!
今日看房项目
1、金水锦艺城
2、美景麟起城

第一站 丨 金水锦艺城(锦艺金水湾四期)
楼盘位置:
项目位于金水区索凌路与龙门路交叉口。

第一印象:

贾鲁河河景真心漂亮,虽然正在整治中,但是基本景观已经成型。
项目位置在贾鲁河南边过了连霍高速,拆姐儿当天出了售楼部沿着贾鲁河从索凌路往南走,最终到达金水锦艺城所在地。

索凌路从连霍高速上面横穿而过,在上坡的地方就是郑州丽水外国语学校;学校对面是杲村安置房,在桥面上能看到项目的北侧是个公交站。
索凌路往南的魏河路段正在修建中,往北过了贾鲁河是一片工地围挡,预计后期可以通到美景万科广场。东边是成熟小区瀚宇新城,有底商,生活配套可以满足。
基本信息:

价格:14500—15500元/平米
装修情况:毛坯
户型建面:88-140平米
所在区域:金水区
绿化率:35.00%
容积率:3.5
车位比:1:1
物业费:2.2元/平米
物业公司:郑州锦艺物业服务有限公司
开发商:河南锦家置业有限公司
置业小哥给拆姐儿算了一套88㎡的小三房,优惠后总价1450000左右,首付快40万,月供在五千多。听置业小哥说了句,项目也可以首付分期。
最新动态:

在售的金水锦艺城总占地98亩,总建面31万方,建筑密度17%,总共规划了9栋32-33层高层,一所幼儿园。
1#和10#楼已经售罄,目前在售的是3、5、6、8#楼,均为2梯4户。
据置业顾问介绍8#楼仅剩三套是别人退订的,分别是20、22、23楼的88平房源。其他几栋楼可以挑选的范围相对来说较大一些。
项目详情:
整个项目位于大北区,但是按照行政区域划分,锦艺城属于金水区。项目东侧紧挨郑州龙门实验幼儿园,南边是郑州龙门实验学校。

项目东边隔一条街(普庆路)就是金水锦艺城配套商业,大概有40万方,能满足日常吃喝玩乐,预计2022年交付。目前项目北侧1.5公里有美景万科广场。

项目距离贾鲁河步行十分钟左右可达,往南400左右是魏河,同样沿河两岸修建有滨河公园。
项目东侧是城市主干道文化北路,北侧直线距离260米是连霍高速,自驾出行方便。
对于高速对项目的影响怎么样?拆姐儿个人感觉影响不大,具体大家可以实地感受下。
项目东侧的文化路上有规划的地铁7号线,距离地铁站的步行距离在800米左右,后期出行比较方便。
项目正东紧挨丽水外国语学校,包含小学和初中。项目周边的医院距离较远,最近的在3公里左右。
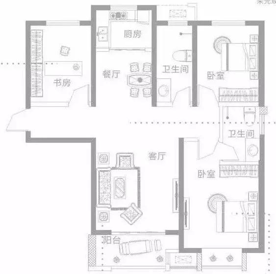
户型鉴赏:


这个88平的小三房,设计有入门玄关,便于存放东西。客厅带有阳台,可以晾衣服,主卧带有飘窗。明卫、明厨。缺点是卫生间没有干湿分区,书房和次卧的采光会较差。

120平的三房空间利用率较高,南北通透。客厅带有大阳台,光景效果极佳。但是仅有一个主卧朝南,采光会稍差。

140平的四房设计方正,三开间朝南,南北通透。动静分区,南向两个卧室都带有飘窗,赠送面积较多。整体空间局部合理。
小结:
从整体来看,项目周边配套比较完善,有现成的商业区。
后期优势更加明显,自带商业配套和临河景观,日常生活环境比较舒适。位置在金水与惠济交界处,离主城区近,也能享受主城区的配套。
其实对于金水锦艺城最大的问题还是北边的连霍高速了,最近看过一个话题,说是为什么有人喜欢住在高速旁边。
其中有个评论很有意思:业主们可以戏称自己的小区是呼啸山庄,重点是平时出门很方便,直接上高速。
当然,这个还是仁者见仁智者见智,建议购房者亲自去项目实地考察感受下。
第二站丨美景麟起城(3号院)
楼盘位置:

项目位于惠济区文化路与英才街交汇处西南角。
第一印象:

美景麟起城的位置相对金水锦艺城来说更好一些,更靠近北大学城和美景万科广场。
周边大学生会多一些,并且放学之后大多会到商场购物消费,人流量大是对周边环境的第一感受。这也是造成文化路、英才街路口经常拥堵的原因之一。

但是美景麟起城相对来说要好一些,不临英才街。
一二号院都临河,三号院位于美景万科广场的南边,中间还隔了一个惠济区实验中学。所以后期入住的话,相对会安静一些。
基本信息:

价格:14500—15000元/平米
装修情况:毛坯
户型建面:75-122平米
所在区域:惠济区
绿化率:36.19%
容积率:3.7
车位比:1:1
物业费:2.78元/平米
物业公司:武汉市万科物业服务有限公司郑州分公司
开发商:郑州美景置业有限责任公司
最新动态:

两年前行情火爆,美景麟起城凭借自己优越的位置,去化一直不错。但是从去年楼市降温以来,即便精装改成毛坯,开盘效果依然差强人意。
随着时间的推进,目前麟起城剩余房源已经不多了,进入平销期。
据置业顾问介绍在售的主要集中在3号院1#楼,还有部分82-119平房源,预计2021年8月底交房。
项目详情:

目前在售的三号院总占地约21亩,总建筑面积约71236平,共规划了两栋住宅。
其中1#楼为3个单元,2#栋1个单元,均为33层,两梯四户。3#楼是一个两层的商业楼。
目前剩余的82平小两房,89平和119平的三房。
其中,1#楼西单元南边是个两层商业,并且与金水湾二期相互错开一点距离。视野较好,高楼层应该能看到河景。
户型鉴赏:
整体来看麟起城的户型设计还可以,没有太大的硬伤。

82平小两房

89平小三房

119平大三房
其中,89平户型的阳台采光会受到次卧的影响,另外入户门正对次卧门。但是卫生间做到三段式干湿分离,还有玄关设计。
119平的户型南北通透,卫生间干湿分离。客厅带有大阳台,厨房也带有一个生活阳台,可以存放杂物。主卧还带有一个大飘窗,赠送面积较多。
周边配套:

交通方面文化路规划有7号线,第三批次已经批复,对沿线楼盘是个利好。自驾的话向南一公里就是连霍高速,如果能错开文化路英才街那段拥堵路段,出行还是很便利的。
医疗和教育方面,惠济人民医院(新院区)距离项目大概1.5公里;3号院北侧紧挨惠济区实验中学,一号院北侧是惠济区文化路小学。
周边1公里左右还有惠济区开元路小学、郑州星源外国语学校等。
景观方面除了南侧的贾鲁河以及两侧滨河公园,在惠济区实验中学的西侧还有一个40亩的中央公园。
商业方面惠济区实验中学北侧是美景万科广场,里面有海底捞、电影院等,满足日常吃喝玩乐购。项目自身还有一栋两层的商业配套。
小结:
目前1.5W左右的价格与周边项目对比并没有太大优势,并且3号院体量不大,居住氛围会稍差一点。
综合来说,个人认为项目还是可以考虑的,毕竟周边配套已经成熟,交通短期内看好。82平的小户型对于刚需过渡或者投资还是可以的。
总结:
两个项目都位于大北区的核心位置,周边的配套、交通、环境都不差,但是一个是金水区,一个是惠济区。
价格方面,金水锦艺城和美景麟起城相差并不大。但个人认为,麟起城的位置比锦艺城要好一些,或许是拆姐儿更喜欢往年轻人聚集的地方钻吧。
并且麟起城相对来说距离贾鲁河更近一些,周边的居住环境就目前的情况来看,要比金水锦艺城更好。
而金水锦艺城的优点也很明显,大社区,内部的景观更容易规划设计组团;行政区域划分上属于金水区,在教育方面有一定优势。
并且东侧的40万方大型综合商业体,对于整个大北区的商业配套都是一个利好。
对于购房者在两个项目中如何选择,拆姐儿认为就要认真的衡量自己的潜在需求了。社区、行政区域划分、环境等总有一些需要妥协。

以上建议仅供大家参考,希望大家能够结合自身的情况,斟酌选择吧。毕竟2019年又过去一半了,拆姐儿希望大家能抓紧时间找到合适的项目,赶快上车呀!