设计机构:烟台市中天装饰设计有限公司
总设计:崔海鹰
策划及撰稿人:孙华莹
///
品 质 东 方

万光·中华城“大境致诚,荣归中华”。
每一座城市,都会有那么几处标杆地块,它的存在意味着这个城市的高端圈层、顶级资源,它的名字本身就是品质生活的象征。作为烟台市品质生活的TOP级标杆——万光·中华城会所,升级了对人文、艺术、自然三大核心元素探索与理解,建造美好生活的诗与远方,向大家敬呈有质感的东方人生活方式。该项目由中天设计——作品量与完成度始终保持国内一线设计品牌行列的设计公司担纲设计。


万光中华城会所作为项目形象展示窗口,区别于市场上千篇一律的西式设计风格,以中国山水意境和世代传承的东方精神为灵感,用简洁现代的设计笔触,演绎着新时代的建筑美学。



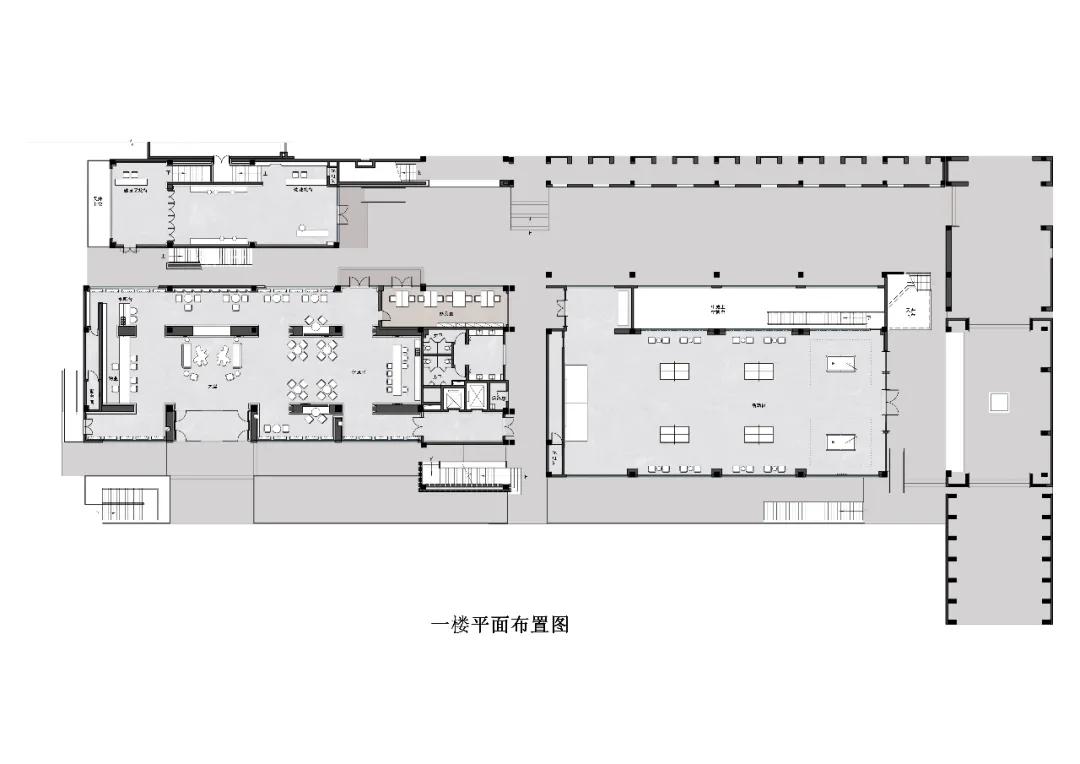
整个项目一共分为三层,一层为公共会客区,整体设计以中国山水意境为灵感,干净的色调,简单的几笔线条,勾勒出优雅的轮廓,完美诠释东方文化的雅致神韵。


东方传统的凳、窗棂、圈椅等与玻璃、布艺、金属等现代元素在设计师手中演变出无数的产物,人性化的功能设计体现出一种海纳百川的包容及融合中通的和谐。


“高高起华堂,远远引流水”。位于一层的服务中心处处洋溢着“小而精”的东方式精巧,设计师用景观的手法做室内,将传统低调的文人气质与现代高雅的艺术品味完满地融入到了一起,现代风格和城市精品气质,通过浪漫的手法浓缩于一篇精彩的现代诗当中。




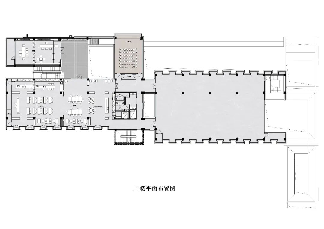
“荦荦确确白石溪,绵绵茫茫青草磎。”步入二层的艺术中心,设计师延续以原木、铅灰、本白为基础的中国宋代审美,与简约、自然、人性化的北欧风家具、灯饰交相呼应,随行走变换的角度,丰富的室内层次,尽显艺术美感。



人可以改变环境,环境可以影响人,好的设计则可以重新梳理人与环境的关系。朴素的茶室空间,追求的不仅是一种原始的茶味,更是一种简单的生活意境。看似随意简单的搭配、点缀、装饰是经过深思熟虑下的从容自在,悠闲自得。在天地方圆间,给自己寻找一片宁静的土地。

中式极简,不仅形式优雅,而且更多了一层意象之广,设计师避免简单、传统、老套的方式,选择不循规蹈矩、复杂多变的创新方式,用富于创造力的表现去改变以及去联系丰富多姿的场景形态。生于意外,又蕴于象内,更加耐人寻味。

负一层的健身中心,设计师抓住了地下空间,开阔感和采光式设计的重点。让铅灰、本白和琉璃蓝三种色泽在空间中交汇,于端重中展现出一抹活力。参差错落的灯带,交相呼应的冷暖光,在给予空间明亮度的同时彰显出了层次感和设计感。



当热闹和繁华已经成为这个时代的代名词,优雅的宁静便成了最奢侈的拥有。万华中华城会所的闲雅舒适就是美,是来者举步间的,心灵归隐。
项目名称:烟台万光·中华城会所设计机构:中天设计设计总监:崔海鹰参与设计:张蓓 刘诗钰 万世周 王海静软装设计:王薇弘项目摄影:张瑞华

中天设计成立于1998年,是一家提供高端设计服务的专业机构,专注于室内设计、软装陈设的整体解决方案,服务领域涉及别墅、高端住宅、售楼处、样板间、酒店会所、办公空间、商业空间。
在二十多年的成长过程中,赋予每个设计方案以独特的理念,完美呈现客户需求,致力于成为美的传播者,新生活方式的倡导者,积累了丰富的设计经验和良好的口碑,并与客户建立了长期稳定、相互信任、共同发展的合作伙伴关系。
- END -