在南京SKH工作室初遇刘先生,似乎对SPA没有什么概念,只是提出构想,要在南京这座美丽的城市,打造一所SPA中的爱马仕!事实证明在流量评论漫天飞舞的信息时代,他做到了,SKH小伙伴们也做到了…


林语堂先生说过,一个城市之可爱,全在这个城市的居民的生活情调。

素灰的墙面以最原始的姿态矗立其中,地面与空间在此相遇,是标杆亦是精神,更像是一种媒介,引领我们去感受上座SPA的与众不同…
做此方案时,沈老师启发我们:最好的商业空间就是这样, 我们深处其中, 却不知道自然在那里终了, 艺术在那里开始…

设计师运用原木色贯穿整个空间,有序的隔栅线条与墙面结合,达到整体效果的延伸。定制的纯铜LOGO,露出光的微茫,既突出了主题,又为空间增添了些许高级感。



曲径通幽,除了通体贯穿其间的格栅外, 灯光的指引及介入,增添了空间的层次和温润灵动的尺度,轻松为来宾们指引方向。

细节处才能彰显修为,哪怕只是包间的命名及呈现,SKH小伙伴们不单以视觉为衡量事物存在的准则,更是从空间使用者的感受出发,进而挖掘空间情感、意愿和想象。


来宾们在等待期间,被这满目的原木色包裹起来,一股暖意汹涌而至,屏风的开合之间,虚无与真实的转换,唤醒众人内心最真实的情感…

以简洁的手法勾勒出空灵意境,在需要的空间建造温暖的私人休息区,拥抱平常,享受其中,体现出悠然自得的生活态度。


转角充满思念,满目的格栅精妙的凸显出一轮半月,在这水墨诗篇间留下了动人的一笔…
每个VIP包间都呈现出不一样的视觉效果,以满足不同客户的各种需求…



独特的文化底蕴,更多的表现用一种创造式的设计思维去感知世界,大面积的原木格栅延伸至顶面,使空间实体化。结合处,突出上座SPA的精髓所在,凡事以‘人’为本…

简洁而有力量的石材,此时在这温润灯光之下,宛如满月,唯恐辜负这造物者的美意…

星空点点,简洁的灯光线条围绕其间,更富层次感。在细节上设计师也做出诠释:“围”即视线的范围,更具隐私,“透”则是视线的亮点,利于室内氛围的营造。

RAP:
有一个最具文艺范儿的城市,叫做南京
你来过南京吗 思念的南京啊
紫金山下、玄武湖旁,青春剧场牵牵小手
南京眼上、双子楼下,上座SPA独领风流
南京 南京 你啊要一起唱啊
上座 SPA 你啊要一起来啊
南京 南京
……
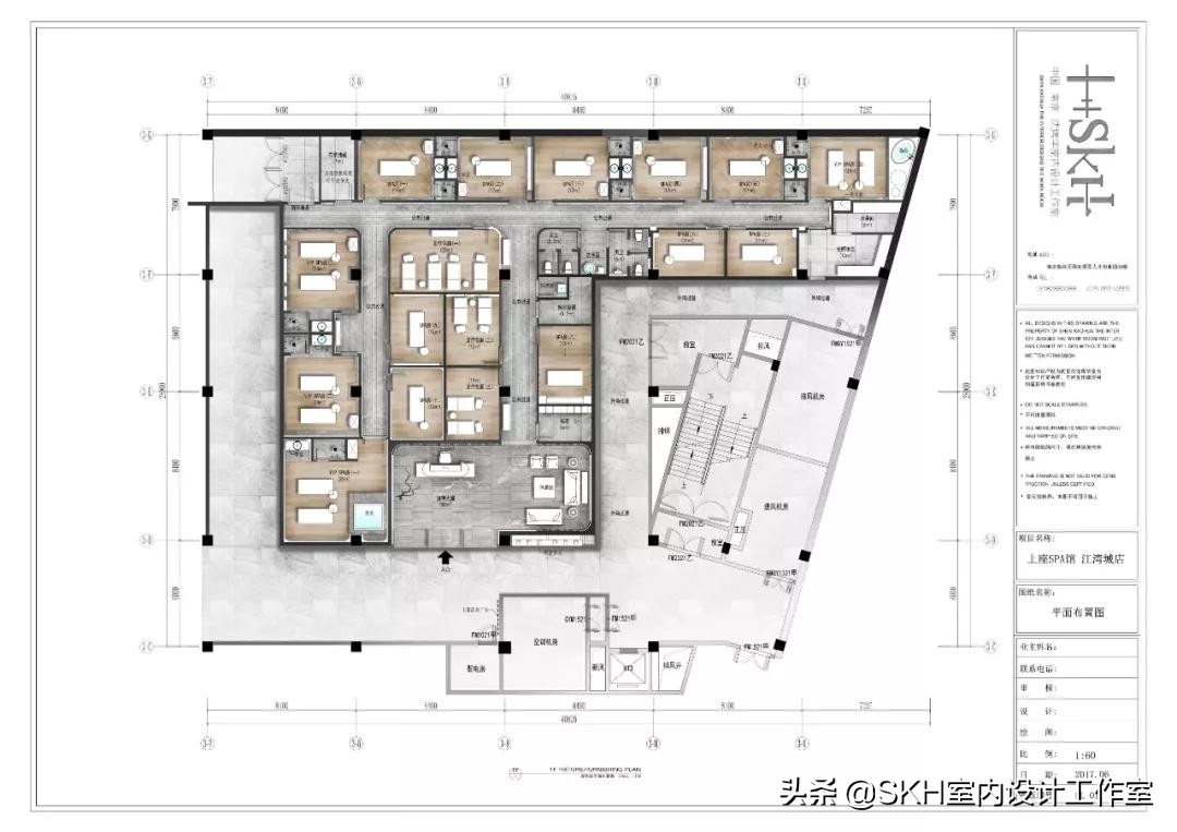
项目概况
项目地址:南京市 建邺区 乐山路 江湾新天地BL020
设计公司:南京观享际设计 · SKH室内设计团队
摄影:Ingallery TM工作室
项目面积:570m²
合作方式:全程托管
「 团队奖项 」
全国私宅全程托管模式先行者
2018 中国空间设计大赛“鹏鼎奖”中国十大当红别墅设计师
2018 光华龙腾奖 中国装饰设计业十大杰出青年提名奖
2018 年度 40 UNDER 中国(南京)设计杰出青年 评委
2018 中国优秀青年室内设计师提名
2018 中国金堂奖 优秀住宅公寓设计奖
2018 中国金堂奖 娱乐空间设计奖
2018 金外滩奖 最佳精装房奖
2017 光华龙腾奖 中国装饰设计业十大杰出青年提名奖
2017 中国人文设计大赛 最佳创意设计奖(住宅公寓类)
2017 中国金堂奖 优秀住宅公寓设计奖
2017 喜舍杯 中国住宅设计总评榜 年度优秀别墅设计奖
2017 台湾六艺奖 居住空间类 金奖提名奖
2017 金创意奖国际空间设计大奖 十大知名设计师奖
2017 第五届金创意奖 国际空间设计大赛 样板房空间设计类创意设计奖
2017 第五届金创意奖 国际空间设计大赛 特聘实战设计导师
2017 艾特国际空间设计大奖 最佳样板房设计提名奖
2017 IDS国际设计先锋榜 住宅空间金奖提名奖
2016 中国芒果别墅空间最佳创意奖
2016 中国金堂奖优秀住宅公寓设计
2016 中国(南京)室内设计新势力榜十佳设计师
2016 喜舍杯·中国住宅设计总评榜年度十佳别墅设计奖
2016 全国第七届筑巢奖
2016 第四届ID+G金创意奖国际空间设计大赛-别墅豪宅空间设计铜奖
2015 中国金堂奖优秀住宅公寓设计
2014 中国金堂奖别墅类优秀作品奖
2014-2015中国厨房产业设计特聘专家
2014“中国住宅设计风尚人物奖”全国20强荣誉称号
2013 中国侨汇杯-建E网第一届室内设计大赛 复赛评委
2013 中国年度大师工作营优秀学员席
2013 中国金陵国际家居室内设计师名师堂义工名誉副主席
2013 中国金堂奖购物空间类优秀作品奖
2013 江苏省室内设计陈设设计大奖赛银奖
2012 中国金堂奖别墅类优秀作品奖
2011 年度南京市好享家杯室内设计大奖赛 别墅工程类 一等奖
2011 年度凤凰新势力南京十大室内设计师
2010 年度南京市银牌优秀设计师称号
2007 年度作品收录于第三届中国国际艺术设计观摩展
2007 年度入围于全国室内设计“十大新锐人物"
2005 年度南京市最受欢迎十佳室内设计师
2005 年度第五届江苏省室内设计大奖赛二等奖
2003 年度第四届江苏省室内设计大奖赛 金奖
「 观享际SKH 简介 」

南京观享际 SKH室内设计 成立于2008年,是一家拥有资深背景、年轻、前卫的设计师团队,引进了国际流行设计的室内设计管理新理念,其专注于别墅、私人宅院、办公空间、展厅等。设计和施工及全程整体托管模式,拥有优质设计施工团队及配套高端材料资源,包括前期概念、施工图深化、效果图、现场施工负责、软装配饰等。从事装饰行业17年期间,累计全国近二十个城市500套装修设计案例,一直坚持个性化的装饰设计,追求时代化的创新意识,工作室正以适合自身、适应时代的前所未有的持续发展态势在装饰业界不断发展。在特色观念的鼓舞下,工作室力争在装饰设计作出自身个性,与其他企业形成差异化。独特的构思和强大的设计后盾创建了鲜明的品牌形象及良好口碑。

ANTECHAMBER|前厅▲

WAITING|等待区▲

INTERNATIONAL|VIP室▲

CONFERENCE|会议室▲



OFFICE|办公区▲

RELAX|健身区▲
南京观享际 SKH设计团队主要致力于,针对不同客户对空间审美诉求给予最准确的量身定制式设计服务,每完成一整套设计,凸显它价值的最大衡量标准就是它的唯一性和不可替代性;当客户觉得“非你不可”的时候,你的设计的可贵才由此体现,不论是“小小蜗居”还是“豪华别墅”。由客户需求出发进行设计细节到家中每一个成员的生活习惯及方式,才能造就独一无二的、获得客户肯定的设计,通过作品展现的是SKH设计团队对设计创意的执着追求,每个设计作品的命名都代表一段与人文有关的故事