
楼盘名称:F天下澳景苑
装修风格:欧式
设计师 :崔佳思
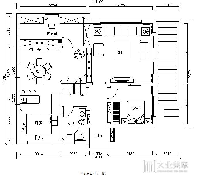
类型:别墅
户型:4室两厅一厨三卫
面积:300㎡
装修总预算:基础施工30万(不含土建)主材+软装70万(不含家电)
设计说明:
业主要求:欧式,婚房,职业飞行员+空姐;喜欢蓝白配色;预算半包30万;特殊要求就是需要各自独自的书房;储物功能要多;
设计说明:本案为别墅,建筑面积300,独立结构;大部分处在挑空结构之下,大面积的玻璃窗带来了良好的采光。墙面采用偏暖色的墙纸,地面同样也采用偏暖色的石材,以烘托豪华的效果。深色布艺沙发组合有着丝绒的质感,
将传统欧式家居的奢华与现代家居的实用性完美地结合。壁炉自然不可或缺,它被安置在空间结构的交汇处,与一幅色彩鲜艳的油画相呼应,敞开式的客厅提供了一个视觉中心,通彻明亮。
彰显主人的内心世界,突显职业给男女主人带来魅力灵感。




更多装修案例、家居经验欢迎关注微信公众号:武汉大业美家装饰 或 wh_dayehome
武汉大业美家:http://wh.dayehome.com/