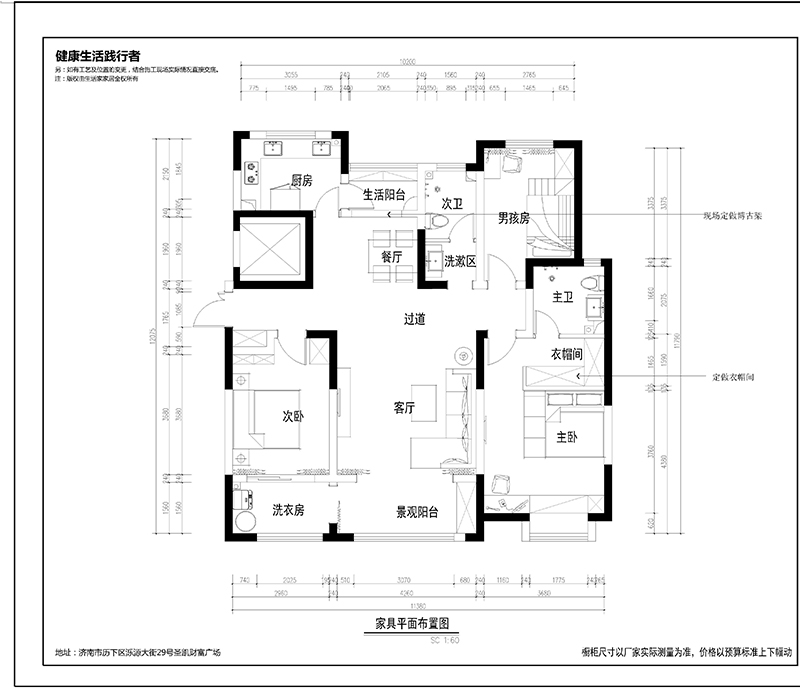
【小区名称】银丰山青苑
【房屋类型】平层
【装修风格】中式简约
【装饰公司】济南生活家装饰
【服务理念】让每一个中国人都享受健康家居











现代化,健康装,不解释。
想了解装修、设计的朋友可以加胖萝莉的微信号ppeipa123,也可订阅胖萝莉的头条号给胖萝莉评论留言讨论啊。
【小区名称】银丰山青苑
【房屋类型】平层
【装修风格】中式简约
【装饰公司】济南生活家装饰
【服务理念】让每一个中国人都享受健康家居











现代化,健康装,不解释。
想了解装修、设计的朋友可以加胖萝莉的微信号ppeipa123,也可订阅胖萝莉的头条号给胖萝莉评论留言讨论啊。