目前当值夏季,每天的高温究竟有多折磨人,我想自不必多说。尤其是对于一些压根就没有春天和秋天的地方,炎热的夏天有很长的时间,如果长期靠空调来解决室内高温的问题,自然需要高昂的电费。这并不是一个节能的策略,尤其是对于那些自建住宅来说,毕竟可以在建造之初,就通过某些技术手段来优化和改善这些问题,从而减少使用人工设备的频次。如果你目前有自己盖房的打算,并且在一个夏季炎热的地方,想要通过设计来改善内部空间的温度,知道如何实现这一目标吗?那就紧跟小编的步伐,看看接下来的这个住宅,是如何做到的?

建筑外观
该项目位于伊朗,抛却那些虚无的方案理念,这个项目的另一个目的,便是营造一个与当地气候相协调的宜人空间。极端高温的炎热夏季,是这个地方的特点,如何改善这些客观存在的气候环境,成为了设计在技术层面的关键。场地是一个长方形地块,临近道路,长边由道路向地块内部延伸。从道路看向建筑,是一个单层体量的建筑,两个服务于不同流线的大门被设置在围墙的两端。左侧是人流入口,右侧则是车库入口。

建筑夜景图

建筑外观与庭院

建筑鸟瞰图

屋顶平台

屋顶平台

侧高窗
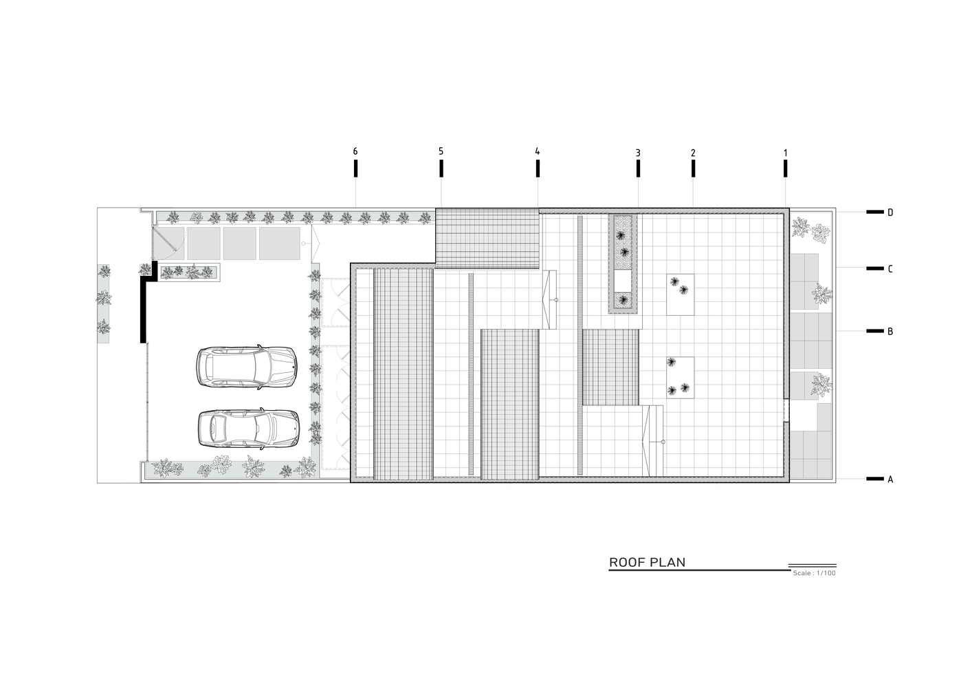
建筑在造型方面没有过多的技法,对于地块的规划,则是将其分成了三个部分,一个前院作为外部与建筑内部的过渡空间,既是庭院也是停车场。建筑主体位于中间位置,后部则是预留的小庭院空间。值得一提的是,在屋顶有几个红砖的拱形体量,很是突出,而这几个拱形体量便是解决室内高温及湿度的关键。

入口玄关与厨房

生活起居空间

生活起居空间

看向屋顶天花

厨房

厨房

后院
对于炎热的气候,主要来自于太阳光的直射,因此在屋顶的红砖拱形体量,形成了一个突出的空间,以此来缓解太阳直射形成的热量进入到内部空间的时间。在热气流在这个区域停留的时候,再通过体量侧向的高窗换气口,将这些热气流排出,由此减少那些热气流进入到内部空间,最终达到控制室内温度的目的。这些拱形体量的换气口都被安排在了北侧,既能保证内部空间在一整天的时间里保持明亮,也能让封闭的南侧最大程度地减少照射进入的热气流。

设计生成分析图

剖面阳光及气流分析图

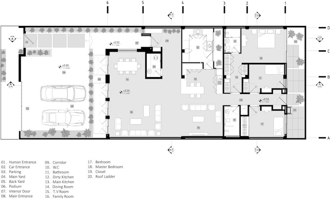
建筑平面图

屋顶平面图

立面图

立面图

剖面图

大样图
而凸起的拱形体量使用红砖,也是考虑到红砖是一种高热容的建筑材料,它有利于阻止热量进入内部空间。建筑在平面上的布置,遵循了基本的功能分区,前半部分完全作为生活起居空间,容纳了厨房、餐厅和客厅等功能,而在后半部分,则是三间并排布置的卧室,预留一条过道通往后院。在后院有一个竖向的楼梯,通往屋顶平台。
像这样解决炎热问题的住宅,你喜欢吗?在评论区给我留言,告诉我你最真实的想法!
项目信息
建筑设计: 4 Architecture Studio
面积 : 216 m²
项目年份 : 2021
摄影师 :Peyman Amirghiasvand
主创建筑师 : Mohammad Sadegh Afshar Taheri, Mohammad Yousef Salehi, Kasra Shafieezadeh
机电设计 : Poor Ramezanian
结构设计 : Iman Hazrati
City : Gonbad-e Kavus
Country : 伊朗