前言
在接手这个项目之前,业主家里水电都已经做的差不多了,然后停工停在那里。业主虽然前面也有装修的经历,但是对于效果都不是特别的满意。因为是回迁小区,所以整个小区的人基本上都是认识熟悉的,所以业主就去参观了几套已经装修好的,作为自己的装修参考。
我前期在这个小区也完成了一套,然后和那套房子的业主也已经很熟悉了(称其为A),在这个业主参观到A家后,因为风格和其他自己装修家肯定会有很大的差异,所以顿时感觉就会不一样,特别的有吸引力,然后在A的大力推荐下,我就和B认识了。
之后约了时间我和B在他的房子立面碰了面,B的一些话对我的感触还是蛮深的,他说他看了小区好几家装修好的,然后前期也没有想过还要找一个设计师还要付设计费。但是在看了A家之后想法发生了改变,他看的这几家装修的费用都是差不多的,但是A家里面给他的感觉是最舒适的,所以他就觉得既然花的装修费用都是差不多的,那为何不去尝试着找一个专业的设计师来给自己的家出谋划策呢,既可以让家更加的漂亮舒适,而且在实用上也会有很大的提高。就这样,我们很愉快的就在那个比较乱的毛坯房子里面达成合作了,一起为这个家而努力!!
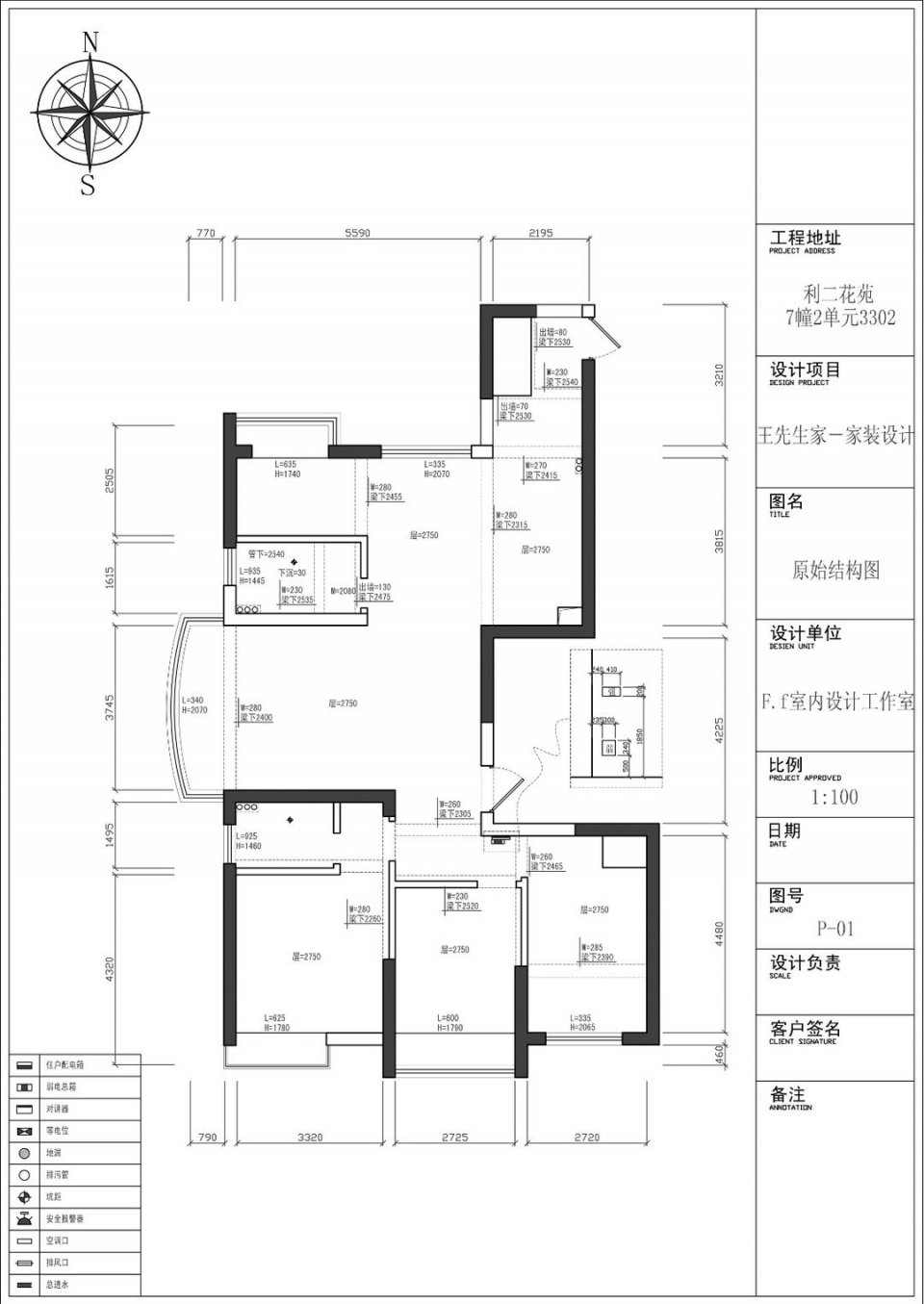
户型图

原始户型的不足点:
1、客厅阳台的朝西面的,所以西晒特别的厉害;
2、客厅的一角正对着入户门,且没有玄关;
3、沙发墙的尺寸不够长;
4、要进入北阳台必须要经过厨房,很不方便;
5、主卧长度不够,所以衣柜的位置比较麻烦。

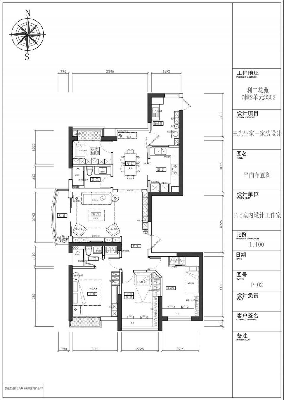
平面方案在大的空间格局上没有做改动,只是在一些小地方做了一些调整:
1、电视墙做了一组柜子,电视柜和收纳柜的组合,这样可以增加玄关墙的尺寸,也有了一个稍微合理点的入户玄关;
2、客厅和餐厅之间做了一个垭口,增加了沙发墙的尺寸,也整理出了鞋柜的位置;
3、餐厅窗户外面是一个空调外机位,所以就把这个空间包进了餐厅;
4、把厨房的长度减小了一些,留出了一个餐厅到洗衣间门的位置;
5、因为主卧宽度尺寸足够,所以把衣柜做在了电视墙的位置,还在房门背后做了一组衣柜,为了保证主卧动线的流畅,把主卫切掉了一角。
6、为了在不影响客厅采光的情况下,较小西晒,在客厅和阳台之间做了一个四扇玻璃移门。客厅

沙发墙做了木饰面的设计,木饰面是沙发墙垭口一体的;墙面是灰色的乳胶漆,地面是水泥砖,灰色调给人干净自然舒服的感受;祝沙发选了绿色的,配合这琴叶榕,给整个空间更接近自然,给人一种心旷神怡的体感。

鞋柜和电视柜的柜门用的是最简洁的白色的平板门和黑色的长拉手,原本的设计柜门是通高的,但是通高柜门的致命缺陷是会增加柜门的变形几率,最后业主为了不整天担心柜门的变形还是做了上下柜门。

鞋柜和电视柜都是白色和木色的组合,这样的组合避免了全部白色的单调容易显脏和全部木色的复杂挤压空间,还有一点就是全部木色的话工艺上会复杂很多很多。

值得一提的是这个边几,是木工师傅现场做的,用木料自己做然后刷清漆,还是很喜欢这种feel的```

虽然客厅和餐厅之间做了垭口,但不会对客餐的通透和采光有任何的影响。

鞋柜做了外露的格子,可以放一些随手的包包钥匙之类的小物件。



厨房

厨房也是选择的木色和白色的搭配,虽然在颜色上会有一点色差,但整理上还是呼应协调统一的。

餐厅

餐桌选了实木餐桌,樱桃木的。但是餐椅实木的话感觉造价有点高,业主觉得没有必要,就在淘宝上买了几把灰色和绿色的餐椅,呼应绿色沙发和灰色墙,餐厅也会显得比较的活泼。





卫生间

客卫用了水泥色的砖,白色的美缝,黑色的淋浴房和五金,整个空间干净利落。



主卫是经典的黑白配,因为空间不是很大,就选用了小尺寸的砖,墙面10*30cm的小白砖,地面是20cm的黑色六角砖,经典小清新感扑面而来。卧室

主卧床也是樱桃木的,灰色床品,床头柜也是淘宝购买。

主卧衣柜和电视柜的组合沿袭了客厅柜体的组合方式。

