买房是个技术活,有人买到好房子,幸福入住;有人不幸入坑,交房遥遥无期! 这是《郑州房观》的第40篇楼盘点评;如果没有你想了解的楼盘,欢迎留言,小编下期安排。
01前言 和润林湖美景一期,凭借一座将自然与人需结合的风景园林,2020年成功入选“郑州市园林小区”。 和润林湖美景二期,凭借靠近一号线(西三环站),是三环里的湖畔公园家,今年买,明年即可入住,近期正在热销中。 中原区有不少可以选择的楼盘项目,包括康桥玖玺园、阳光城丽景公馆、宏江瀚苑、碧桂园天悦湾、金科中原等,但是最近大家对于和润林湖美景项目热议不断,它到底怎么样?值不值得买呢?以下是详细楼盘测评。
02楼盘信息
地址:建设路与西三环向北200米路东(地铁1号线西三环站C出口)(导航和润林湖美景即可到达)

(区位图)

(鸟瞰图)
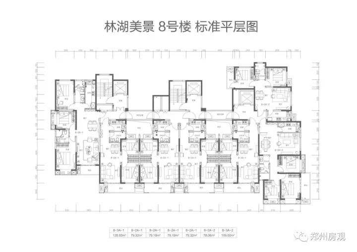
户型鉴赏













(平层图)
在售产品:
精装高层住宅
主力户型:
主要在售10号楼9号楼南北通透户型
7号楼西北户房源充足
基础信息:

楼盘配套:
【环境资源】
碧沙岗公园,雕塑公园,西流湖生态公园,周围三大公园环绕,集人文,生态,历史于一体,尽享自然生活,领略艺术魅力!
【多维交通】
地铁:1号线地铁口,连接城市东西,方便快捷,出门即达,5号线也挨近本项目
城市快速路: 三环高架畅通无阻,让城市生活更快速。
公交:B3、B29、B33等多条BRT黄金路线环绕,绿色出行,方便快捷。
【教育配套】
小区规划建有配套幼儿园,附近有郑州市实验幼儿园、郑上路小学、新街坊小学、郑州六十六中、郑州一中、七十中、六十九中等知名学校,将来您的孩子可以在这里完成一站式的精英教育服务。
【商业配套】
商业配套:中原万达、锦艺城、西元国际广场三大商圈举步可达,一站式满足“吃住游娱购”的全部需求。
【医疗配套】
郑州市中心医院是郑州市三级甲等综合医院,为您的健康生活保驾护航;郑州市儿童医院西区河南省三级甲等儿童医院,为孩子提供全方位的健康保护。
销售政策:
可用市直公积金➕组合贷
支持省直,市直公积金*款贷**
外地户口首套不限购
03楼盘点评
楼盘优势:
1.地铁口,出行便利。离一号线西三环地铁口几百米,标准的地铁口,方便快捷,出门即达,这是项目一大亮点。
2.真正三环内。中原区其他楼盘大多在三环和四环之间,而林湖美景是在三环里面,现在绿化、道路都整好了,提升得不错。
3.商业配套比较完善。中原万达、锦艺城、西元国际广场三大商圈举步可达,一站式满足“吃住游娱购”的全部需求。
楼盘劣势: 不便公开
半城点评:
总体而言,项目位于西三环内,紧邻西流湖公园,距离西三环地铁站五百米左右,出行确实交通便利。再加上中原老城区的成熟配套,位置确实还不错,精装交付,物业也可以,整体对于纯刚需来讲还是值得考虑的,毕竟没有哪个项目是十全十美的,选择适合自己的最重要!